Gamelan Walk, Hoo, Rochester, Kent, ME3
By Your Move
£ 490,000
Reviews
3 out of 5 stars
Your Move says ..
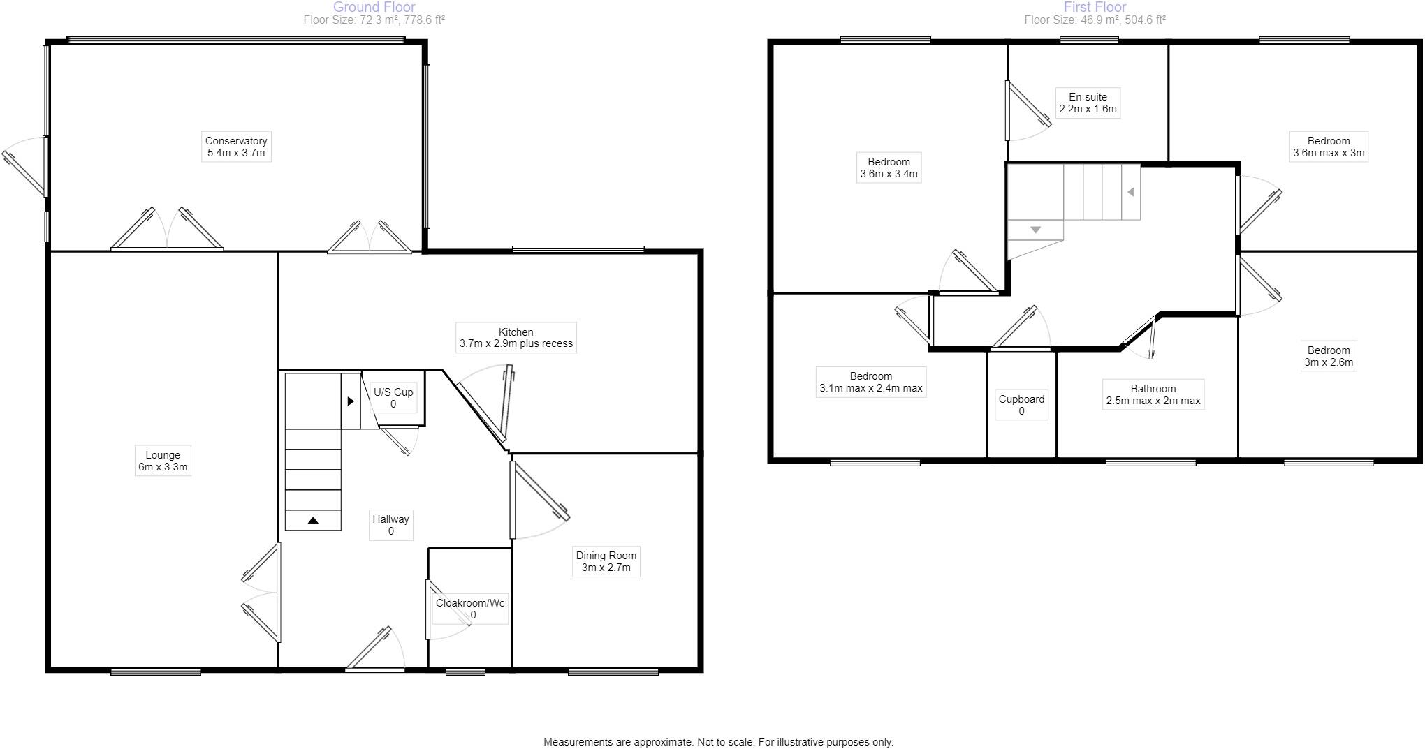
Want a kitchen that SPARKLES? Get clicking on this one! FOUR bedrooms (three DOUBLES), 17ft conservatory doubling up as informal dining/snug area. En-suite to master, allocated parking and garage among many other benefits!
Property Oracle says ..
This four-bedroom detached house in Hoo, Kent is presented in excellent condition. The property boasts a modern and updated interior, with a recently fitted kitchen, modern bathrooms, and a well-maintained conservatory. The photos show a contemporary style throughout, indicating likely recent renovations and updates which are highly desirable in the current market. The inclusion of a conservatory increases the available living space and adds value, and the property’s description highlights ‘allocated parking and garage’. This could be a significant selling point.
The location in Hoo offers a balance between village life and proximity to the larger towns of Rochester and Chatham for access to more amenities. Local primary schools receive good Ofsted ratings, making it an attractive option for families. The proximity to the Southeastern railway line also provides good transportation links, although commuters should consider the travel time to larger cities.
While the garden is a positive, its size is unclear from the images. In general, the property seems well-presented and appropriate for the price point. A lack of property specific square footage is unfortunately present making it challenging to give the property a more definitive price score. The general lack of sq ft data in surrounding listings also makes comparing average prices per sq ft difficult. A full professional valuation would be necessary to ascertain the full value of the property and provide a definitive analysis.
Therefore, we give this property 6 / 10. *Disclaimer: This is our option and does constitute a recommendation or financial advice. Do your own research. *
- Price
- 7
- Condition
- 8
- Location
- 7
- Land
- 4
- Bedrooms
- 4
- Bathrooms
- 2
- Sqft (est)
- 1,283.06
The heatmap indicates the level of crime in the area. The color of the heatmap indicates the crime severity and recency.
Metrics Year-on-Year
- Average area value
- 557,097.00 £Increased by 12.74 %
- Est sale value
- 903,274.24 £Increased by 22.65 %
- Average area rental value
- 2,359.00 £/moIncreased by 2.83 %
- Est letting value
- 2,566.12 £/moUnchanged by 0.00 %
- Est rental Yield
- 5.08 %Decreased by 8.80 %
- Crime Rate
- 27.00 %Unchanged by 0.00 %
Agent Activity
Your Move created the listing.
Nearby Schools
| Name | Type | Ofsted | Distance |
|---|---|---|---|
| Hoo St Werburgh Primary School And Marlborough Centre | Academy Converter | Good | 1.21 KM |
| The Hundred Of Hoo Academy | Academy Sponsor Led | Good | 1.57 KM |
| High Halstow Primary Academy | Academy Converter | Good | 2.83 KM |
| St Mary'S Island Church Of England (Aided) Primary School | Voluntary Aided School | Good | 3.44 KM |
| Waterfront Utc | University Technical College | 3.49 KM |
Images
Nearby Streets
| Name | Average Price | Average Sqft | Distance |
|---|---|---|---|
| Knights North Close | £ 0 | 0 | 0.00 KM |
| Wandiede Gardens | £ 0 | 0 | 0.00 KM |
| Saffron Court | £ 0 | 0 | 0.00 KM |
| Walnut Tree Grove | £ 0 | 0 | 0.00 KM |
| St Johns Road | £ 0 | 0 | 0.00 KM |
Nearby Transport
| Name | NLC | TLC | Distance |
|---|---|---|---|
| Gillingham (Kent) | 5169 | GLM | 4.53 KM |
| Chatham | 5199 | CTM | 6.85 KM |
| Rochester | 5203 | RTR | 7.38 KM |
| Strood (Kent) | 5191 | SOO | 7.73 KM |
| Rainham (Kent) | 5177 | RAI | 8.34 KM |
Nearby Listings
| Address | Price | Type | Score | Distance |
|---|---|---|---|---|
| Gamelan Walk, Hoo, Rochester, Kent, ME3 | £ 490,000 | BUY | 6 / 10 | 0.00 KM |
| Gamelan Crescent, Hoo, Rochester, Kent, ME3 | £ 440,000 | BUY | 7 / 10 | 0.05 KM |
| Gamelan Crescent, Hoo, Rochester, ME3 9FN | £ 475,000 | BUY | 7 / 10 | 0.06 KM |
| Gamelan Crescent, Hoo, Rochester, ME3 9FN | £ 400,000 | BUY | 7 / 10 | 0.06 KM |
| Kingsnorth Close, Hoo, Rochester, Kent, ME3 | £ 290,000 | BUY | 6 / 10 | 0.13 KM |
Nearby Properties
| Address | Price | Distance |
|---|---|---|
| 3 Gamelan Walk | £ 290,000 | 0.02 KM |
| 33 Gamelan Crescent | £ 305,000 | 0.05 KM |
| 21 Gamelan Crescent | £ 139,775 | 0.05 KM |
| 25 Gamelan Crescent | £ 335,000 | 0.05 KM |
| 7 Gamelan Crescent | £ 260,000 | 0.05 KM |