69 Penny Hill Park, Penrith, Cumbria
H&H Land & Estates logo

69 Penny Hill Park, Penrith, Cumbria

By H&H Land & Estates

£ 250,000

Reviews

3 out of 5 stars

H&H Land & Estates says ..

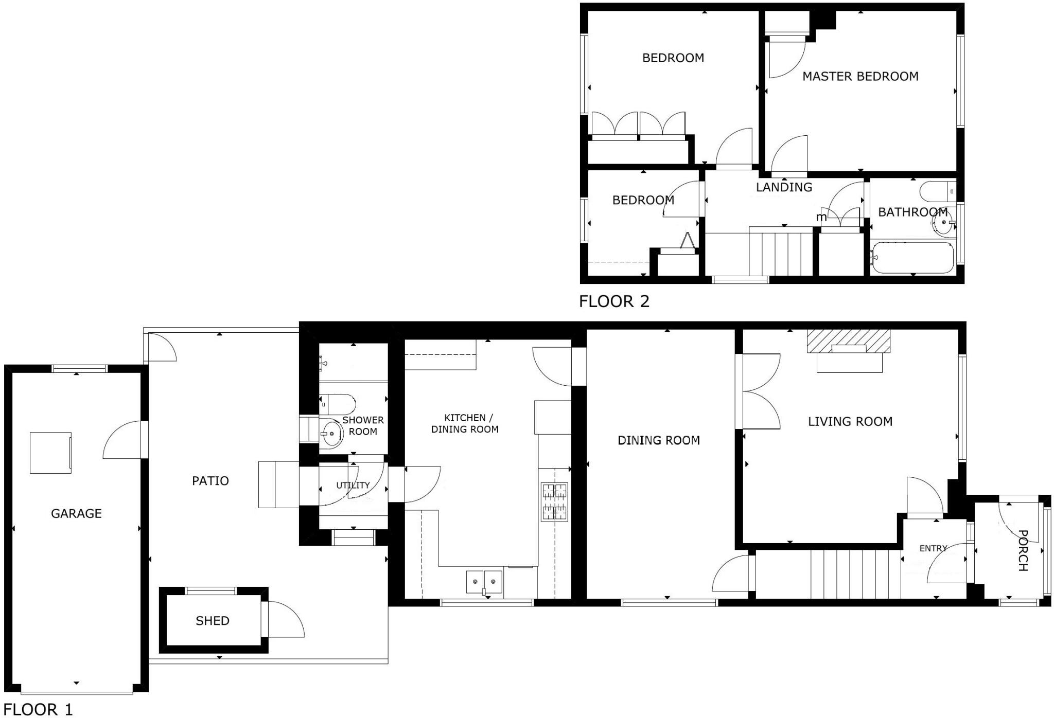
Situated in this always popular & sought after area, to the northern fringe of Penrith, with easy access to routes north & south & the facilities & amenities of the town centre, a well presented, 3 bedroom, semi-detached family home having been extended with 2 reception rooms &...

Property Oracle says ..

This semi-detached property at 69 Penny Hill Park in Penrith offers a balanced living environment. The house features three bedrooms and two bathrooms, making it suitable for a small family or couple. The property’s location provides good access to local schools and transportation links, including the Penrith (North Lakes) train station. While the property appears to be in generally good condition, some areas could benefit from modernization. The inclusion of a garden and outdoor space enhances its appeal. Considering the size, location, and condition, the asking price of £250,000 represents reasonable value in the current market.

Therefore, we give this property 7 / 10. *Disclaimer: This is our option and does constitute a recommendation or financial advice. Do your own research. *

Price
8
Condition
7
Location
7
Land
6
Bedrooms
3
Bathrooms
2
Sqft (est)
1,416.00

The heatmap indicates the level of crime in the area. The color of the heatmap indicates the crime severity and recency.

Metrics Year-on-Year

Average area value
722,194.00 £
Increased by 1.02 %
from 714,889.00 £
Est sale value
662,688.00 £
Increased by 2.63 %
from 645,696.00 £
Average area rental value
2,810.00 £/mo
Decreased by 41.46 %
from 4,800.00 £/mo
Est letting value
1,416.00 £/mo
Decreased by 66.67 %
from 4,248.00 £/mo
Est rental Yield
4.67 %
Decreased by 42.06 %
from 8.06 %
Crime Rate
1.00 %
Unchanged by 0.00 %
from 1.00 %

Agent Activity

  • H&H Land & Estates created the listing.

Nearby Schools

NameTypeOfstedDistance
St Catherine'S Catholic Primary SchoolVoluntary Aided SchoolGood0.93 KM
Brunswick SchoolCommunity SchoolGood1.22 KM
Queen Elizabeth Grammar School PenrithAcademy Converter1.63 KM
North Eden Surestart Children'S CentreChildren's Centre2.02 KM
Ullswater Community CollegeFoundation SchoolRequires improvement2.17 KM

Images

69 Penny Hill Park Living Room Living Room Living Room Dining Room Dining Room Dining Room Dining Room Kitchen Dining Room Kitchen Dining Room Bedroom 2 Bathroom 69 Penny Hill Park Kitchen Dining Room Rear Hall Downstairs Shower Rm Landing Bedroom 1 Bedroom 3 69 Penny Hill Park 69 Penny Hill Park

Nearby Streets

NameAverage PriceAverage SqftDistance
Thacka Lane £ 350,00000.00 KM
Raiselands Croft Link £ 000.00 KM
Mallard Close £ 000.00 KM
Cross Lane £ 000.00 KM
Holyoake Terrace £ 000.00 KM

Nearby Transport

NameNLCTLCDistance
Penrith (North Lakes)2102PNR1.32 KM

Nearby Listings

AddressPriceTypeScoreDistance
69 Penny Hill Park, Penrith, Cumbria £ 250,000BUY7 / 100.00 KM
65 Penny Hill Park, Penrith, Cumbria £ 175,000BUY7 / 100.04 KM
Penny Hill Park, Penrith £ 199,000BUY7 / 100.14 KM
Raiselands Croft, Penrith, CA11 £ 195,000BUY7 / 100.17 KM
Raiselands Croft, Penrith, CA11 £ 210,000BUY7 / 100.19 KM

Nearby Properties

AddressPriceDistance
89 Penny Hill Park £ 138,5000.07 KM
49 Penny Hill Park £ 160,0000.07 KM
71 Penny Hill Park £ 162,0000.07 KM
37 Penny Hill Park £ 172,5000.07 KM
40 Penny Hill Park £ 131,5000.07 KM