Bessels Way, Sevenoaks, TN13
By Langford Rae O'Neill
£ 495,000
Reviews
3 out of 5 stars
Langford Rae O'Neill says ..
A beautifully presented, mid terrace house offering deceptively spacious accommodation with the benefit of a garage and off road parking.
Property Oracle says ..
The property is located in Sevenoaks, Kent, a desirable area in South East England. Sevenoaks is known for its good schools, and the property is within a reasonable distance of several highly-rated primary schools, including Riverhead Infants’ School (Outstanding Ofsted rating) and Amherst School (Good Ofsted rating). The proximity to Sevenoaks train station, providing links to London, is also a positive factor for commuters.
Based on the provided photographs, the property appears to be in good condition. It has been recently updated with a modern kitchen and bathroom, and the interior is presented well. There is no visible evidence of significant repairs or renovations needed. The garden is a notable feature, offering a good-sized outdoor space.
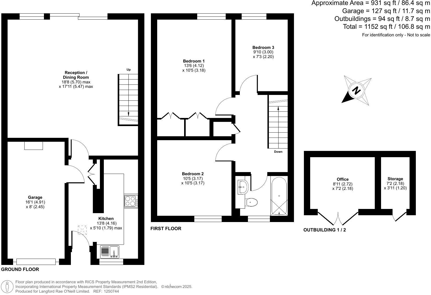
The list price of £495,000 is considerably lower than the average price of £748,309 for properties in the area. While the property is smaller than the average (931 sqft vs 1,517 sqft), the lower price point might be justified by its slightly smaller size and the fact that it is a terraced property. However, considering the property’s good condition, location, and garden, the price could be considered reasonable, potentially representing good value for money, especially when compared to similar properties on Bessels Way. The nearby properties on Bessels Way, with comparable sizes and types, show prices ranging from £235,000 to £486,500, suggesting the £495,000 price is at the higher end of the range but still within the market value.
Therefore, we give this property 7 / 10. *Disclaimer: This is our option and does constitute a recommendation or financial advice. Do your own research. *
- Price
- 7
- Condition
- 8
- Location
- 9
- Land
- 7
- Bedrooms
- 3
- Bathrooms
- 1
- Sqft (est)
- 931.00
The heatmap indicates the level of crime in the area. The color of the heatmap indicates the crime severity and recency.
Metrics Year-on-Year
- Average area value
- 1,056,667.00 £Increased by 9.22 %
- Est sale value
- 730,835.00 £Increased by 34.88 %
- Average area rental value
- 6,495.00 £/moIncreased by 171.98 %
- Est letting value
- 3,724.00 £/moIncreased by 300.00 %
- Est rental Yield
- 7.38 %Increased by 149.32 %
- Crime Rate
- 7.00 %Unchanged by 0.00 %
Agent Activity
Langford Rae O'Neill created the listing.
Nearby Schools
| Name | Type | Ofsted | Distance |
|---|---|---|---|
| Amherst School | Academy Converter | Good | 0.78 KM |
| Riverhead Infants' School | Community School | Outstanding | 1.40 KM |
| Chevening, St Botolph'S Church Of England Voluntary Aided Primary School | Voluntary Aided School | Good | 1.50 KM |
| Dunton Green Primary School | Community School | Good | 2.19 KM |
| The Granville School | Other Independent School | 2.93 KM |
Images
Nearby Streets
| Name | Average Price | Average Sqft | Distance |
|---|---|---|---|
| Cold Arbor Road | £ 0 | 0 | 0.00 KM |
| The Terrace | £ 0 | 0 | 0.00 KM |
| Witches Lane | £ 0 | 0 | 0.00 KM |
| Back Lane | £ 0 | 0 | 0.00 KM |
| Church Field | £ 0 | 0 | 0.00 KM |
Nearby Transport
| Name | NLC | TLC | Distance |
|---|---|---|---|
| Dunton Green | 5102 | DNG | 2.55 KM |
| Sevenoaks | 5124 | SEV | 2.80 KM |
| Bat And Ball | 5090 | BBL | 4.36 KM |
| Otford | 5071 | OTF | 5.89 KM |
| Shoreham (Kent) | 5074 | SEH | 6.96 KM |
Nearby Listings
| Address | Price | Type | Score | Distance |
|---|---|---|---|---|
| Bessels Way, Sevenoaks, TN13 | £ 475,000 | BUY | 6 / 10 | 0.04 KM |
| Bessels Way, Sevenoaks, Kent | £ 475,000 | BUY | 6 / 10 | 0.04 KM |
| Bessels Way, Sevenoaks, Kent | £ 550,000 | BUY | 7 / 10 | 0.04 KM |
| Bessels Way, Sevenoaks, Kent | £ 475,000 | BUY | 7 / 10 | 0.07 KM |
| Bessels Way, Sevenoaks, TN13 | £ 675,000 | BUY | Unknown | 0.08 KM |
Nearby Properties
| Address | Price | Distance |
|---|---|---|
| 8 Bessels Way | £ 235,000 | 0.03 KM |
| 11 Bessels Way | £ 486,500 | 0.03 KM |
| 12 Bessels Way | £ 412,000 | 0.03 KM |
| 6 Bessels Way | £ 232,000 | 0.03 KM |
| 1 Bessels Way | £ 424,000 | 0.03 KM |