Abode says ..
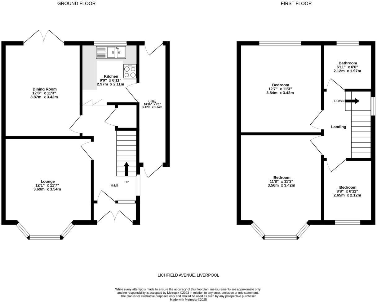
This semi-detached house presents an excellent opportunity for families and investors alike. Boasting three well-proportioned bedrooms, this property offers ample space for comfortable living. The layout features a welcoming front reception room, rear dining room alongside a separate kitchen with...
Property Oracle says ..
Therefore, we give this property 6 / 10. *Disclaimer: This is our option and does constitute a recommendation or financial advice. Do your own research. *
- Price
- 7
- Condition
- 4
- Location
- 8
- Land
- 7
- Bedrooms
- 3
- Bathrooms
- 1
- Sqft (est)
- 796.59
The heatmap indicates the level of crime in the area. The color of the heatmap indicates the crime severity and recency.
Metrics Year-on-Year
- Average area value
- 273,072.00 £Decreased by 1.50 %
- Est sale value
- 269,247.42 £Increased by 29.01 %
- Average area rental value
- 1,340.00 £/moIncreased by 9.39 %
- Est letting value
- 796.59 £/moUnchanged by 0.00 %
- Est rental Yield
- 5.89 %Increased by 11.13 %
- Crime Rate
- 9.00 %Unchanged by 0.00 %
from 277,242.00 £
from 208,706.58 £
from 1,225.00 £/mo
from 796.59 £/mo
from 5.30 %
from 9.00 %
Agent Activity
Abode created the listing.
Nearby Schools
| Name | Type | Ofsted | Distance |
|---|---|---|---|
| St Edmund'S And St Thomas' Catholic Primary School | Voluntary Aided School | Good | 0.63 KM |
| St John'S Church Of England Primary School | Voluntary Aided School | Good | 0.64 KM |
| Merchant Taylors' Boys' School | Other Independent School | 0.68 KM | |
| St. Mary'S College | Other Independent School | 0.81 KM | |
| Merchant Taylors' Girls' School | Other Independent School | 0.95 KM |
Images
Nearby Streets
| Name | Average Price | Average Sqft | Distance |
|---|---|---|---|
| Pine Grove | £ 280,000 | 0 | 0.00 KM |
| Tudor Road | £ 340,000 | 0 | 0.00 KM |
| Brompton Avenue | £ 0 | 0 | 0.00 KM |
| Courtenay Road | £ 0 | 0 | 0.00 KM |
| Belvidere Road | £ 500,000 | 0 | 0.00 KM |
Nearby Transport
| Name | NLC | TLC | Distance |
|---|---|---|---|
| Blundellsands And Crosby | 2123 | BLN | 1.07 KM |
| Waterloo (Merseyside) | 2133 | WLO | 1.12 KM |
| Hall Road | 2229 | HLR | 2.58 KM |
| Seaforth And Litherland | 2250 | SFL | 3.40 KM |
| Bootle New Strand | 2195 | BNW | 5.23 KM |
Nearby Listings
| Address | Price | Type | Score | Distance |
|---|---|---|---|---|
| Lichfield Avenue, Liverpool | £ 240,000 | BUY | 6 / 10 | 0.00 KM |
| Brooke Road East, Liverpool | £ 290,000 | BUY | 6 / 10 | 0.07 KM |
| Brooke Road East, Liverpool, Merseyside, L22 | £ 280,000 | BUY | Unknown | 0.09 KM |
| Brooke Road East, Waterloo, Merseyside, L22 | £ 270,000 | BUY | 7 / 10 | 0.09 KM |
| Shrewsbury Avenue, Waterloo, Liverpool, L22 | £ 290,000 | BUY | 6 / 10 | 0.09 KM |
Nearby Properties
| Address | Price | Distance |
|---|---|---|
| 19 Lichfield Avenue | £ 245,000 | 0.07 KM |
| 13 Lichfield Avenue | £ 225,000 | 0.07 KM |
| 23 Lichfield Avenue | £ 177,500 | 0.07 KM |
| 10 Lichfield Avenue | £ 265,500 | 0.07 KM |
| 15 Lichfield Avenue | £ 158,800 | 0.07 KM |