Holsworthy, Devon
BO

Holsworthy, Devon

By Bond Oxborough Phillips

£ 235,000

Reviews

2 out of 5 stars

Bond Oxborough Phillips says ..

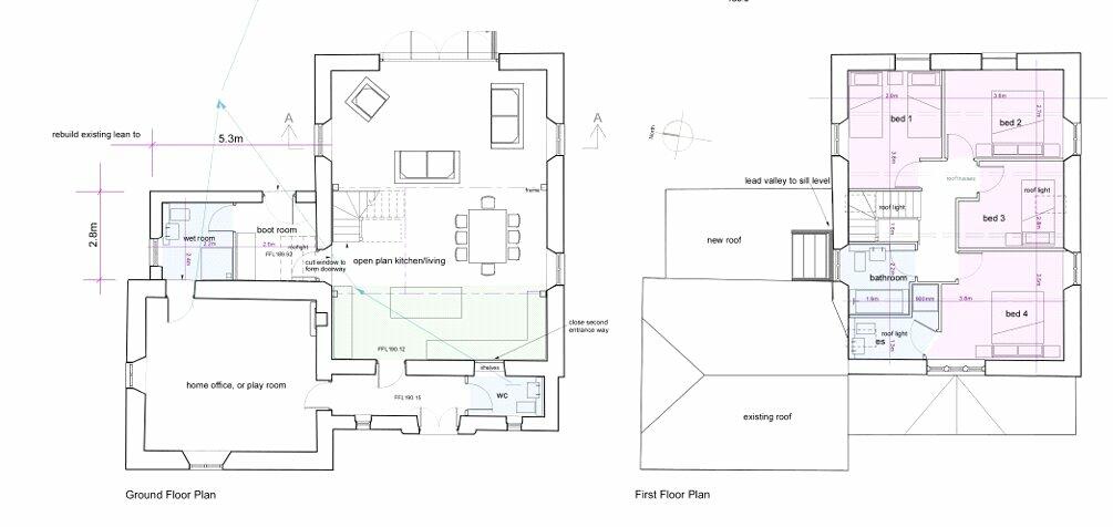
An exciting opportunity for those looking to develop this former methodist chapel located near the popular Market Town of Holsworthy. The building has planning permmision granted for change of use into a residential dwelling. The proposed accommodation outlines 4 bedrooms and 2 reception rooms ar...

Property Oracle says ..

This property is a detached former chapel located in Holsworthy, Devon. The listing price is £235,000, and the property is in need of significant renovation. The building itself is quite large at 1,894.77 sqft, offering potential for conversion into a substantial dwelling. The land surrounding the property appears to be sizeable, though the exact plot size is not specified. While the location is relatively rural, there are a number of schools within a reasonable distance, as shown in the provided data. However, details on transport links are missing. Given the extensive renovation needed, the lack of specified plot size, and the relatively low price compared to area averages, the final price may be reasonable depending on the cost of renovations and the final size of the land. Further investigation into the specifics of the plot size and access to amenities would be beneficial.

Therefore, we give this property 5 / 10. *Disclaimer: This is our option and does constitute a recommendation or financial advice. Do your own research. *

Price
7
Condition
3
Location
6
Land
7
Bedrooms
0
Bathrooms
0
Sqft (est)
1,894.77

The heatmap indicates the level of crime in the area. The color of the heatmap indicates the crime severity and recency.

Metrics Year-on-Year

Average area value
434,165.00 £
Increased by 5.81 %
from 410,315.00 £
Est sale value
684,011.97 £
Increased by 1.12 %
from 676,432.89 £
Average area rental value
1,103.00 £/mo
Increased by 21.21 %
from 910.00 £/mo
Est letting value
0.00 £/mo
from 0.00 £/mo
Est rental Yield
3.05 %
Increased by 14.66 %
from 2.66 %
Crime Rate
0.00 %
from 0.00 %

Agent Activity

  • Bond Oxborough Phillips created the listing.

Nearby Schools

NameTypeOfstedDistance
Holsworthy Church Of England Primary SchoolVoluntary Controlled SchoolGood4.64 KM
Holsworthy & District Children'S CentreChildren's Centre4.75 KM
The Copper AcademyOther Independent Special School4.82 KM
Holsworthy Community CollegeAcademy Converter4.88 KM
Bradworthy Primary AcademyAcademy ConverterGood8.36 KM

Images

Picture No. 11 Picture No. 21 Picture No. 23 Picture No. 22 Picture No. 07 Picture No. 03 Picture No. 01 Picture No. 08 Picture No. 04 Picture No. 05 Picture No. 06 Picture No. 09 Picture No. 10 Picture No. 13 Picture No. 14 Picture No. 16 Picture No. 15 Picture No. 17 Picture No. 18 Picture No. 19 Picture No. 20 Picture No. 24

Nearby Streets

NameAverage PriceAverage SqftDistance
Beech Park £ 000.00 KM
Cross Ways £ 000.00 KM
Thuborough Cottages £ 000.00 KM

Nearby Listings

AddressPriceTypeScoreDistance
Holsworthy, Devon £ 235,000BUY5 / 100.00 KM
Holsworthy, Devon £ 285,000BUY6 / 100.17 KM
Holsworthy, Devon £ 950,000BUY8 / 101.52 KM
Holsworthy, Devon, EX22 £ 675,000BUY7 / 101.70 KM

Nearby Properties

AddressPriceDistance
1 Beech Park £ 145,0000.01 KM
7 Beech Park £ 160,0000.01 KM
10 Beech Park £ 221,0000.01 KM
8 Beech Park £ 120,0000.01 KM