The Alexander - Plot 11, The Ropery, Argyle St, Hebburn
By WalkersXchange
£ 239,950
Reviews
3 out of 5 stars
WalkersXchange says ..
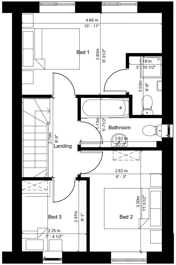
Plot 11, The Alexander a 3 bedroom semi-detached family home. This thoughtfully planned community development of around 90 houses incorporates a variety of house styles that are designed to captivate today's discerning buyers, offering a blend of modern...
Property Oracle says ..
The property is a new build semi-detached house located in Hebburn, South Tyneside. It benefits from a convenient location near schools and transportation links. While the plot size is small, the property itself is modern and well-presented, suggesting it is in excellent condition. The list price is relatively high compared to the average price per square foot in the area, but comparable to similar properties in the immediate vicinity. Further investigation into the specific features and finishes of the property may help to justify the price.
Therefore, we give this property 6 / 10. *Disclaimer: This is our option and does constitute a recommendation or financial advice. Do your own research. *
- Price
- 6
- Condition
- 10
- Location
- 7
- Land
- 3
- Bedrooms
- 3
- Bathrooms
- 2
- Sqft (est)
- 413.76
The heatmap indicates the level of crime in the area. The color of the heatmap indicates the crime severity and recency.
Metrics Year-on-Year
- Average area value
- 410,714.00 £Increased by 0.52 %
- Est sale value
- 173,779.20 £Increased by 4.48 %
- Average area rental value
- 1,363.00 £/moDecreased by 8.52 %
- Est letting value
- 413.76 £/moUnchanged by 0.00 %
- Est rental Yield
- 3.98 %Decreased by 9.13 %
- Crime Rate
- 7.00 %Unchanged by 0.00 %
Agent Activity
WalkersXchange created the listing.
Nearby Schools
| Name | Type | Ofsted | Distance |
|---|---|---|---|
| St Aloysius Catholic Infant School, Hebburn | Academy Converter | 0.58 KM | |
| St Aloysius Catholic Junior School Academy | Academy Converter | Outstanding | 0.62 KM |
| The Sue Hedley Nursery School | Local Authority Nursery School | Outstanding | 1.20 KM |
| South Tyneside Early Excellence Centre | Children's Centre | 1.28 KM | |
| Keelman'S Way School | Foundation Special School | Good | 1.36 KM |
Images
Nearby Streets
| Name | Average Price | Average Sqft | Distance |
|---|---|---|---|
| Thomas Drive | £ 330,000 | 0 | 0.00 KM |
| Thistle Street | £ 175,000 | 0 | 0.00 KM |
| B1297 | £ 0 | 0 | 0.00 KM |
| Alfred Street | £ 0 | 0 | 0.00 KM |
| Victoria Street | £ 25,000 | 0 | 0.00 KM |
Nearby Transport
| Name | NLC | TLC | Distance |
|---|---|---|---|
| Heworth | 7766 | HEW | 4.77 KM |
| Manors | 7603 | MAS | 9.29 KM |
Nearby Listings
| Address | Price | Type | Score | Distance |
|---|---|---|---|---|
| The Tavor - Plot 66, The Ropery, Hebburn | £ 204,950 | BUY | Unknown | 0.00 KM |
| The Alexander - Plot 11, The Ropery, Argyle St, Hebburn | £ 239,950 | BUY | 6 / 10 | 0.00 KM |
| The Dan - Plot 68, The Ropery, Hebburn | £ 171,950 | BUY | 6 / 10 | 0.00 KM |
| The Alexander - Plot 12, The Ropery, Argyle St, Hebburn | £ 241,950 | BUY | 7 / 10 | 0.00 KM |
| The Tavor - Plot 65, The Ropery, Hebburn | £ 204,950 | BUY | Unknown | 0.00 KM |
Nearby Properties
| Address | Price | Distance |
|---|---|---|
| 34 Albert Street | £ 90,000 | 0.17 KM |
| 32 Albert Street | £ 110,000 | 0.17 KM |
| 38 Landfall Drive | £ 107,950 | 0.22 KM |
| 22 Landfall Drive | £ 182,400 | 0.22 KM |
| 82 Landfall Drive | £ 110,458 | 0.22 KM |