Gorsley, Ross-On-Wye
By Steve Gooch Estate Agents
£ 1,250,000
Reviews
3 out of 5 stars
Steve Gooch Estate Agents says ..
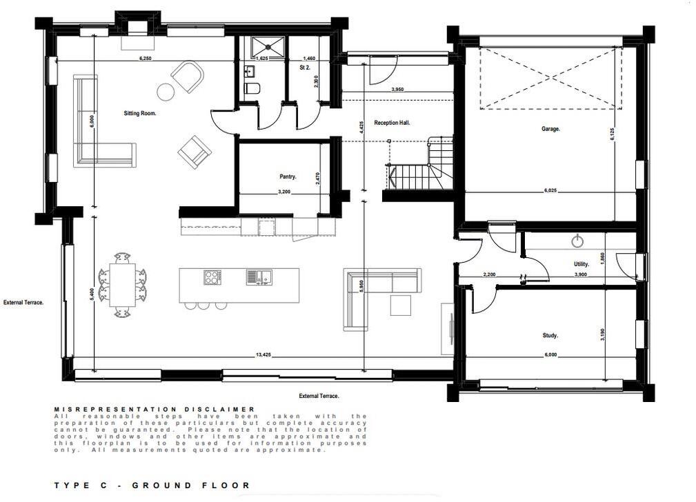
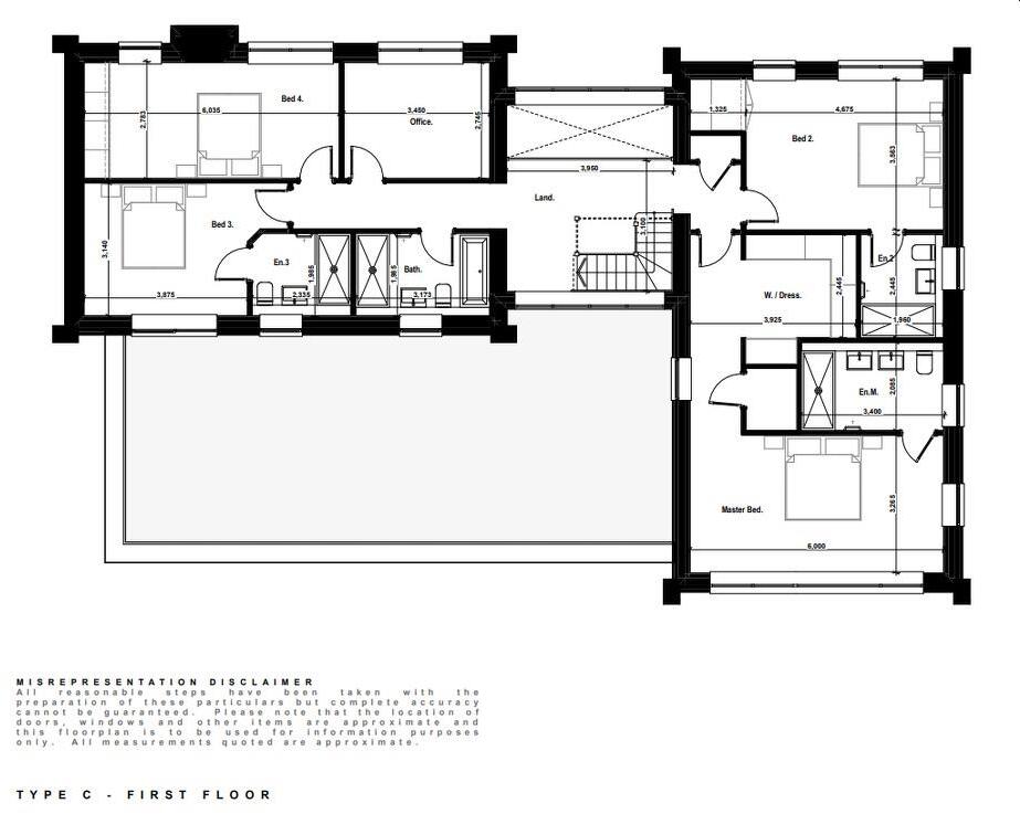
A FIVE BEDROOM DETACHED BRAND NEW FAMILY HOME boasting EXCEPTIONAL ECO CREDENTIALS and HIGH SPECIFICATION FINISHES, OPEN PLAN KITCHEN / DINING / FAMILY ROOM plus SITTING ROOM AND STUDY, MASTER EN-SUITE with DRESSING ROOM, TWO FURTHER EN-SUITES, DOUBLE GARAGE and OFF ROAD PARKING,10 YEAR BUILD ZON...
Property Oracle says ..
Gorsley is a desirable village location in Herefordshire, known for its peaceful atmosphere and proximity to the market town of Ross-on-Wye. The presence of Gorsley Goffs Primary School within a short distance adds to the family-friendly appeal of the area. While the provided data lacks details on transportation links, the relative quietude of the village suggests a car-dependent lifestyle.
The property itself is a modern detached house, exhibiting a contemporary design. The images reveal a high standard of finish in areas such as the kitchen and bathrooms, which are modern and well-appointed. However, other areas of the house are still under construction, with flooring and some internal finishes incomplete. This suggests the property is not yet fully completed. The presence of building materials in the garage further supports this.
The property benefits from a substantial plot size, offering ample outdoor space, including a sizeable garden. This is a significant advantage in the current market, where properties with gardens are highly sought after.
The list price of £1,250,000 is significantly higher than the average house price in the area (£448,744). However, the property’s size (30,785 sqft) is substantially larger than the average (1,040 sqft). The lack of sqft data for nearby comparable properties makes a precise price per sqft comparison difficult. Nevertheless, considering the modern build, high-end fixtures and fittings (where complete), and the large plot size, the price, while high, may not be unreasonable within the context of the luxury housing market in this location. Further investigation into comparable properties with similar specifications would be beneficial to determine a more precise assessment of value.
Therefore, we give this property 7 / 10. *Disclaimer: This is our option and does constitute a recommendation or financial advice. Do your own research. *
- Price
- 6
- Condition
- 7
- Location
- 8
- Land
- 10
- Bedrooms
- 5
- Bathrooms
- 5
- Sqft (est)
- 30,785.00
The heatmap indicates the level of crime in the area. The color of the heatmap indicates the crime severity and recency.
Metrics Year-on-Year
- Average area value
- 225,619.00 £Decreased by 6.60 %
- Est sale value
- 6,680,345.00 £Decreased by 18.73 %
- Average area rental value
- 850.00 £/moDecreased by 4.92 %
- Est letting value
- 0.00 £/mo
- Est rental Yield
- 4.52 %Increased by 1.80 %
- Crime Rate
- 50.00 %Unchanged by 0.00 %
Agent Activity
Steve Gooch Estate Agents created the listing.
Nearby Schools
| Name | Type | Ofsted | Distance |
|---|---|---|---|
| Gorsley Goffs Primary School | Voluntary Controlled School | Good | 1.19 KM |
| Lea Cofe Primary School | Voluntary Aided School | Good | 5.64 KM |
| The Family Tree Children'S Centre (Branches) | Children's Centre | 5.85 KM | |
| Ann Cam Church Of England Primary School | Voluntary Aided School | Good | 5.88 KM |
| Hope Brook Cofe Primary School | Voluntary Controlled School | Good | 6.09 KM |
Images
Nearby Streets
| Name | Average Price | Average Sqft | Distance |
|---|---|---|---|
| Lovers Walk | £ 0 | 0 | 0.00 KM |
| Quarry Lane | £ 587,475 | 0 | 0.00 KM |
| Ivy House Lane | £ 895,000 | 0 | 0.00 KM |
| Chapel Green | £ 825,000 | 0 | 0.00 KM |
| Chapel View | £ 0 | 0 | 0.00 KM |
Nearby Listings
| Address | Price | Type | Score | Distance |
|---|---|---|---|---|
| Gorsley, Ross-On-Wye | £ 1,250,000 | BUY | 7 / 10 | 0.00 KM |
| Gorsley, Ross-On-Wye | £ 899,950 | BUY | 7 / 10 | 0.01 KM |
| Gorsley, Ross-On-Wye | £ 899,950 | BUY | Unknown | 0.01 KM |
| Gorsley, Ross-On-Wye | £ 825,000 | BUY | Unknown | 0.02 KM |
| Gorsley, Ross-On-Wye | £ 799,950 | BUY | 6 / 10 | 0.02 KM |
Nearby Properties
| Address | Price | Distance |
|---|---|---|
| The Shires | £ 493,000 | 0.15 KM |
| The Bungalow | £ 343,500 | 0.15 KM |
| Holmbury | £ 346,000 | 0.46 KM |
| Woodside | £ 390,000 | 0.46 KM |
| Rosebank | £ 352,500 | 0.65 KM |