Hamilton Piers says ..
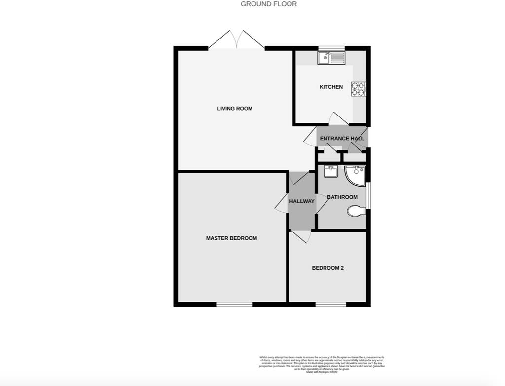
Boasting NO ONWARD CHAIN and benefiting from a private UNOVERLOOKED rear garden, RECENTLY REFITTED KITCHEN and driveway parking for 2-3 vehicles is this two bedroom semi-detached BUNGALOW. Offered with VACANT POSSESSION and available to OVER 55's, this well-proportioned retirement property is ide...
Property Oracle says ..
The property is a well-maintained two-bedroom bungalow in Braintree, Essex, listed at a price that appears lower than the average for the area, potentially due to its size and the fact that it is for over 55s. The property benefits from a recently refitted kitchen and a manageable garden. Transport links and nearby schools are positive aspects of the location. However, a more detailed assessment of the local amenities and neighbourhood character would be beneficial.
Therefore, we give this property 6 / 10. *Disclaimer: This is our option and does constitute a recommendation or financial advice. Do your own research. *
- Price
- 8
- Condition
- 7
- Location
- 7
- Land
- 5
- Bedrooms
- 2
- Bathrooms
- 1
- Sqft (est)
- 805.00
The heatmap indicates the level of crime in the area. The color of the heatmap indicates the crime severity and recency.
Metrics Year-on-Year
- Average area value
- 225,714.00 £Decreased by 12.20 %
- Est sale value
- 233,450.00 £Decreased by 7.35 %
- Average area rental value
- 1,347.00 £/moIncreased by 11.60 %
- Est letting value
- 805.00 £/moUnchanged by 0.00 %
- Est rental Yield
- 7.16 %Increased by 27.18 %
- Crime Rate
- 26.00 %Unchanged by 0.00 %
Agent Activity
Hamilton Piers created the listing.
Nearby Schools
| Name | Type | Ofsted | Distance |
|---|---|---|---|
| Alec Hunter Academy | Academy Sponsor Led | Good | 0.53 KM |
| Beckers Green Primary School | Academy Converter | 0.61 KM | |
| Bra6 Carousel Family Hub | Children's Centre | 1.51 KM | |
| Lyons Hall School | Academy Converter | 1.66 KM | |
| Cressing Primary School | Academy Converter | 1.81 KM |
Images
Nearby Streets
| Name | Average Price | Average Sqft | Distance |
|---|---|---|---|
| Braintree Bypass | £ 0 | 0 | 0.00 KM |
| Hunter Drive | £ 475,000 | 0 | 0.00 KM |
| Blackbread Close | £ 525,000 | 0 | 0.00 KM |
| Reed Meadows | £ 0 | 0 | 0.00 KM |
| Reed Meadows | £ 375,000 | 0 | 0.00 KM |
Nearby Transport
| Name | NLC | TLC | Distance |
|---|---|---|---|
| Braintree Freeport | 2053 | BTP | 1.20 KM |
| Cressing (Essex) | 6837 | CES | 1.87 KM |
| Braintree | 6801 | BTR | 2.59 KM |
| White Notley | 6846 | WNY | 3.83 KM |
| Witham | 6844 | WTM | 9.65 KM |
Nearby Listings
| Address | Price | Type | Score | Distance |
|---|---|---|---|---|
| Lea Close, Braintree | £ 230,000 | BUY | 6 / 10 | 0.00 KM |
| Lea Close, Braintree, Essex, CM7 | £ 230,000 | BUY | 6 / 10 | 0.01 KM |
| Lea Close, Braintree | £ 250,000 | BUY | 6 / 10 | 0.02 KM |
| Lea Close, Braintree | £ 240,000 | BUY | Unknown | 0.02 KM |
| Lea Close, Braintree, CM7 | £ 230,000 | BUY | 6 / 10 | 0.05 KM |
Nearby Properties
| Address | Price | Distance |
|---|---|---|
| 104 Chelmer Road | £ 44,500 | 0.05 KM |
| 102 Chelmer Road | £ 186,000 | 0.05 KM |
| 109 Chelmer Road | £ 345,000 | 0.05 KM |
| 13 Lea Close | £ 130,000 | 0.05 KM |
| 15 Lea Close | £ 250,000 | 0.05 KM |