Ben Rose says ..
Ben Rose Estate Agents are pleased to present to the market this well-presented two-bedroom ground-floor apartment, offered with no onward chain. Ideally suited to buyers seeking a comfortable and low-maintenance home, the property is located on the quiet outskirts of Chorley and is surrounded by...
Property Oracle says ..
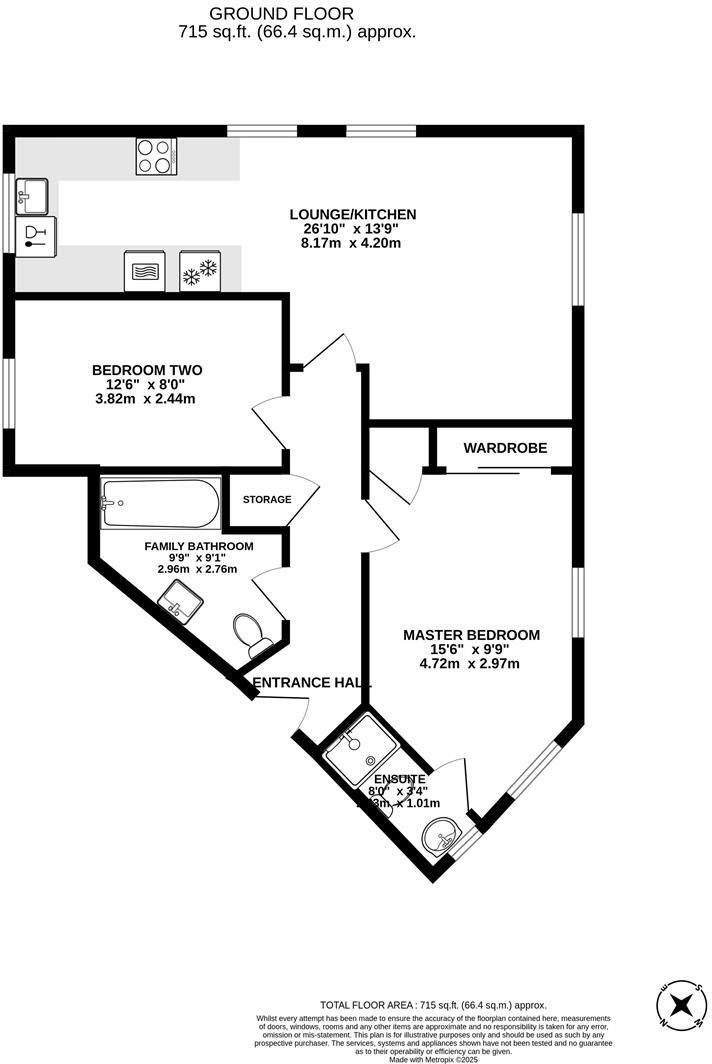
This is a two-bedroom apartment located on Pilgrim Drive, Chorley. It features two bathrooms and has a square footage of 715. The property is listed for £139,995. The apartment is in a good location, with nearby schools and transportation links. The condition of the property appears to be modern and well-maintained. The property includes access to communal garden. The price seems very competitive compared to the average price per square foot in the area.
Therefore, we give this property 7 / 10. *Disclaimer: This is our option and does constitute a recommendation or financial advice. Do your own research. *
- Price
- 9
- Condition
- 8
- Location
- 7
- Land
- 6
- Bedrooms
- 2
- Bathrooms
- 2
- Sqft (est)
- 715.00
The heatmap indicates the level of crime in the area. The color of the heatmap indicates the crime severity and recency.
Metrics Year-on-Year
- Average area value
- 445,205.00 £Decreased by 3.69 %
- Est sale value
- 461,175.00 £Increased by 20.34 %
- Average area rental value
- 1,836.00 £/moIncreased by 4.79 %
- Est letting value
- 1,430.00 £/moUnchanged by 0.00 %
- Est rental Yield
- 4.95 %Increased by 8.79 %
- Crime Rate
- 9.00 %Unchanged by 0.00 %
Agent Activity
Ben Rose created the listing.
Nearby Schools
| Name | Type | Ofsted | Distance |
|---|---|---|---|
| Holy Cross Catholic High School | Voluntary Aided School | Good | 0.98 KM |
| St Gregory'S Catholic Primary School, Chorley | Voluntary Aided School | Good | 1.04 KM |
| Chorley All Saints Church Of England Primary School And Nursery Unit | Voluntary Aided School | Good | 1.16 KM |
| Westmorland School | Other Independent Special School | Outstanding | 1.24 KM |
| Shaftesbury High School | Pupil Referral Unit | Good | 1.33 KM |
Images
Nearby Streets
| Name | Average Price | Average Sqft | Distance |
|---|---|---|---|
| Burgh Lane South | £ 0 | 0 | 0.00 KM |
| Burgh Lane South | £ 0 | 0 | 0.00 KM |
| Myles Standish Way | £ 475,000 | 0 | 0.00 KM |
| Former Burgh Colliery Railway | £ 0 | 0 | 0.00 KM |
| The Copse | £ 476,663 | 0 | 0.00 KM |
Nearby Transport
| Name | NLC | TLC | Distance |
|---|---|---|---|
| Chorley | 2745 | CRL | 2.60 KM |
| Adlington (Lancashire) | 2641 | ADL | 4.16 KM |
| Euxton Balshaw Lane | 2080 | EBA | 5.14 KM |
| Buckshaw Parkway | 7501 | BSV | 5.44 KM |
| Blackrod | 2732 | BLK | 8.58 KM |
Nearby Listings
| Address | Price | Type | Score | Distance |
|---|---|---|---|---|
| Pilgrim Drive, Chorley | £ 139,995 | BUY | 7 / 10 | 0.00 KM |
| Pilgrim Drive, Chorley | £ 219,995 | BUY | 7 / 10 | 0.09 KM |
| Pilgrim Drive, Chorley | £ 300,000 | BUY | 6 / 10 | 0.12 KM |
| 24 Mayflower Gardens, Chorley, PR7 3TR | £ 335,000 | BUY | 7 / 10 | 0.12 KM |
| Mayflower Gardens, Chorley, PR7 | £ 339,995 | BUY | Unknown | 0.12 KM |
Nearby Properties
| Address | Price | Distance |
|---|---|---|
| 23 Yew Tree Close | £ 135,000 | 0.08 KM |
| 24 Yew Tree Close | £ 156,000 | 0.08 KM |
| 12 Yew Tree Close | £ 169,950 | 0.08 KM |
| 2 Yew Tree Close | £ 165,000 | 0.08 KM |
| 38 Yew Tree Close | £ 105,000 | 0.08 KM |