CH
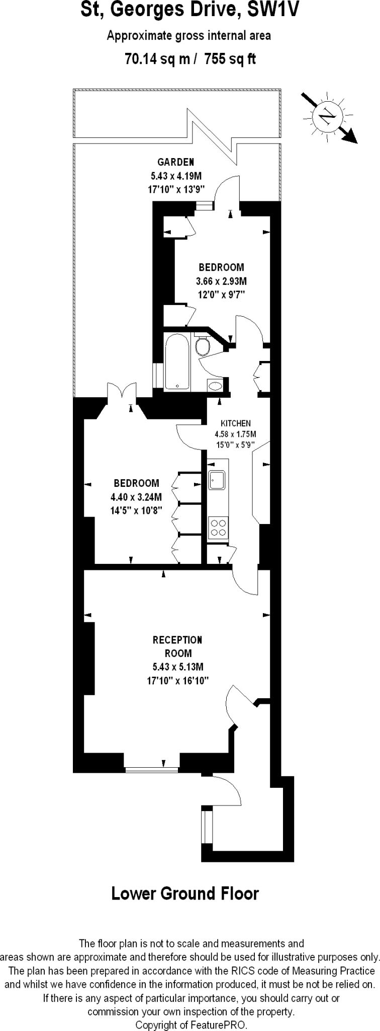
St Georges Drive, Pimlico, SW1V
By Chestertons Estate Agents
£ 4,200
Chestertons Estate Agents says ..
(SHORT LET) The property has its own main entrance and benefits from two double bedrooms with built in storage, spacious reception with wooden floors leading onto a semi open plan kitchen, modern bathroom and private garden. Pet Friendly
- Bedrooms
- 2
- Bathrooms
- 1
The heatmap indicates the level of crime in the area. The color of the heatmap indicates the crime severity and recency.
Metrics Year-on-Year
- Average area value
- 1,189,286.00 £Increased by 2.36 %
- Average area rental value
- 2,412.00 £/moDecreased by 1.51 %
- Est rental Yield
- 2.43 %Decreased by 3.95 %
- Crime Rate
- 10.00 %Unchanged by 0.00 %
from 1,161,896.00 £
from 2,449.00 £/mo
from 2.53 %
from 10.00 %
Agent Activity
Chestertons Estate Agents created the listing.
Nearby Schools
| Name | Type | Ofsted | Distance |
|---|---|---|---|
| South Locality Hub Lead - Churchill Gardens Children'S Centre | Children's Centre | 0.22 KM | |
| Churchill Gardens Primary Academy | Academy Sponsor Led | Good | 0.27 KM |
| St Gabriel'S Cofe Primary School | Voluntary Aided School | Good | 0.37 KM |
| Pimlico Primary | Free Schools | Outstanding | 0.40 KM |
| Pimlico Academy | Academy Sponsor Led | Outstanding | 0.40 KM |
Images
Nearby Streets
| Name | Average Price | Average Sqft | Distance |
|---|---|---|---|
| Ranelagh Road | £ 0 | 0 | 0.00 KM |
| Glasgow Terrace | £ 415,000 | 0 | 0.00 KM |
| Saint George's Drive | £ 0 | 0 | 0.00 KM |
| Dell's Mews | £ 0 | 0 | 0.00 KM |
| Tachbrook Street Market | £ 0 | 0 | 0.00 KM |
Nearby Transport
| Name | NLC | TLC | Distance |
|---|---|---|---|
| Victoria | 5426 | VIC | 0.81 KM |
| Battersea Park | 5420 | BAK | 1.55 KM |
| Queenstown Road (Battersea) | 5596 | QRB | 1.71 KM |
| Vauxhall | 5597 | VXH | 1.99 KM |
| Wandsworth Road | 5372 | WWR | 2.11 KM |
Nearby Listings
| Address | Price | Type | Score | Distance |
|---|---|---|---|---|
| St Georges Drive, Pimlico, SW1V | £ 4,200 | RENT | Unknown | 0.00 KM |
| St Georges Drive, Pimlico, SW1V | £ 2,100 | RENT | Unknown | 0.00 KM |
| St Georges Drive, Pimlico, SW1V | £ 3,500 | RENT | Unknown | 0.00 KM |
| St Georges Drive, Pimlico, SW1V | £ 2,000 | RENT | Unknown | 0.00 KM |
| St. Georges Drive, Pimlico, SW1V | £ 2,750 | RENT | Unknown | 0.01 KM |
Nearby Properties
| Address | Price | Distance |
|---|---|---|
| 77 St Georges Drive | £ 285,000 | 0.01 KM |
| 75 St Georges Drive | £ 376,000 | 0.01 KM |
| 97 St Georges Drive | £ 1,225,000 | 0.01 KM |
| 141b Cambridge Street | £ 460,000 | 0.04 KM |
| 131 Cambridge Street | £ 250,000 | 0.04 KM |