CB
Isis Lake, Cotswold Lakes, Gloucestershire
By CBSlade
£ 325,000
Reviews
3 out of 5 stars
CBSlade says ..
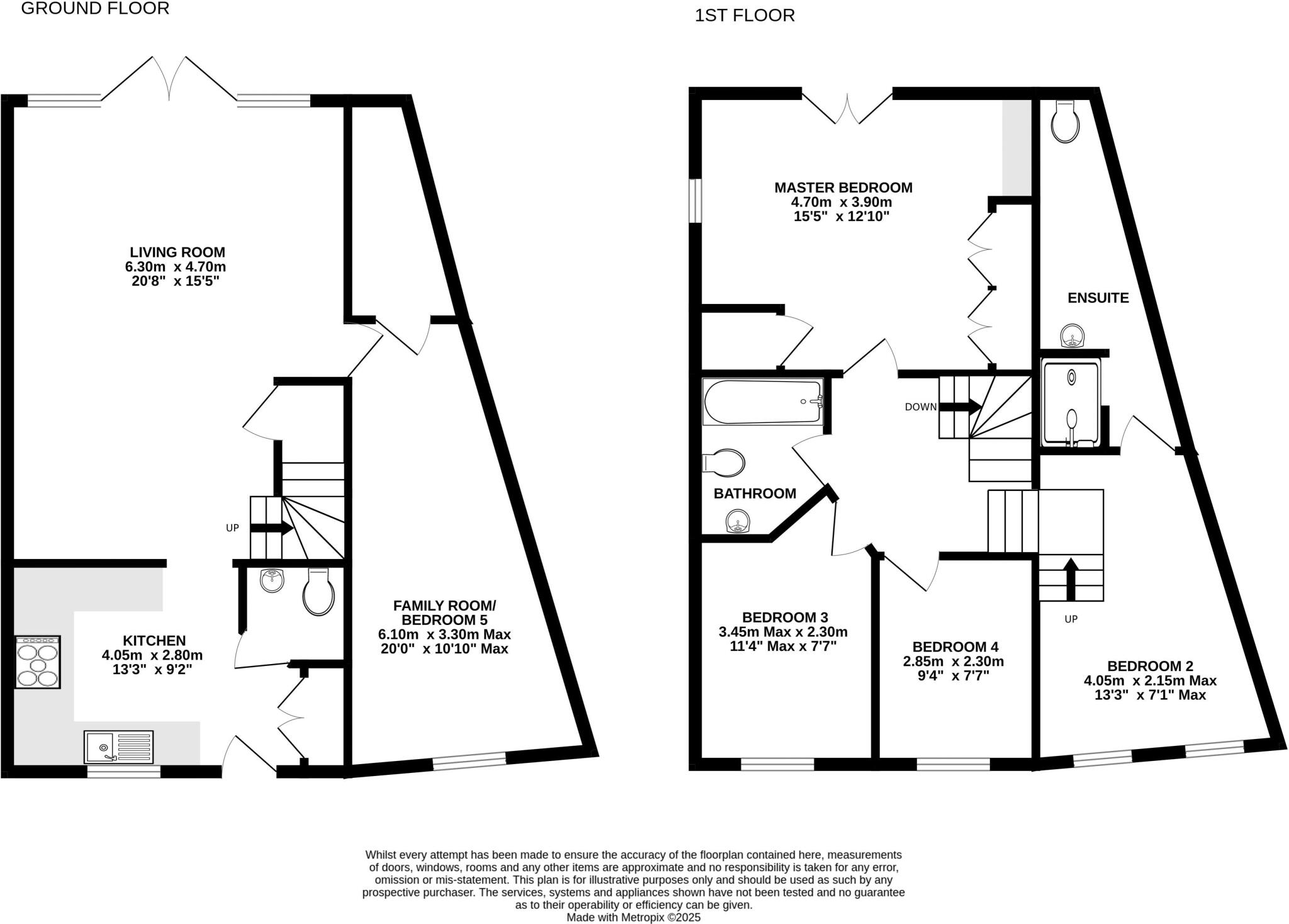
Fabulous lake views from this larger than average holiday home in this desirable, security controlled environment with parking, gardens and a wealth of leisure facilities, both on site and beyond. The accommodation includes four first floor bedrooms with ensuite shower room and family bathroom, w...
Property Oracle says ..
Therefore, we give this property 7 / 10. *Disclaimer: This is our option and does constitute a recommendation or financial advice. Do your own research. *
- Price
- 8
- Condition
- 8
- Location
- 7
- Land
- 6
- Bedrooms
- 5
- Bathrooms
- 2
The heatmap indicates the level of crime in the area. The color of the heatmap indicates the crime severity and recency.
Metrics Year-on-Year
- Average area value
- 460,000.00 £Decreased by 2.99 %
- Average area rental value
- 1,350.00 £/moDecreased by 16.51 %
- Est rental Yield
- 3.52 %Decreased by 13.94 %
- Crime Rate
- 6.00 %Unchanged by 0.00 %
from 474,184.00 £
from 1,617.00 £/mo
from 4.09 %
from 6.00 %
Agent Activity
CBSlade created the listing.
Nearby Schools
| Name | Type | Ofsted | Distance |
|---|---|---|---|
| Ann Edwards Church Of England Primary School | Voluntary Controlled School | Good | 3.83 KM |
| Ashton Keynes Church Of England Primary School | Voluntary Controlled School | Good | 4.84 KM |
| Down Ampney Church Of England Primary School | Voluntary Controlled School | Good | 5.07 KM |
| Ampney Crucis Church Of England Primary School | Voluntary Aided School | Outstanding | 5.32 KM |
| Cricklade Children'S Centre | Children's Centre | 5.84 KM |
Images
Nearby Streets
| Name | Average Price | Average Sqft | Distance |
|---|---|---|---|
| Isis Lake | £ 360,250 | 0 | 0.00 KM |
| Summer Lake | £ 980,000 | 0 | 0.00 KM |
| Waters Edge | £ 835,000 | 0 | 0.00 KM |
| Spring Lake | £ 324,439 | 0 | 0.00 KM |
| Fosse Farm Bungalow | £ 0 | 0 | 0.00 KM |
Nearby Listings
| Address | Price | Type | Score | Distance |
|---|---|---|---|---|
| Isis Lakes, Cotswold Lakes, Gloucestershire | £ 300,000 | BUY | 6 / 10 | 0.00 KM |
| Isis Lake, Cotswold Lakes, Gloucestershire | £ 325,000 | BUY | 7 / 10 | 0.00 KM |
| Isis Lake, Cotswold Water Park, Gloucestershire | £ 295,000 | BUY | 5 / 10 | 0.01 KM |
| Isis Lake, Cotswold Water Park, Gloucestershire | £ 320,000 | BUY | 7 / 10 | 0.03 KM |
| Isis Lakes, Spine Road, South Cerney GL7 5TL | £ 265,000 | BUY | 7 / 10 | 0.03 KM |
Nearby Properties
| Address | Price | Distance |
|---|---|---|
| 74 Spring Lake | £ 211,000 | 1.08 KM |
| Meadowview | £ 640,000 | 1.44 KM |
| Fosseleigh | £ 550,000 | 1.60 KM |
| Quarry Barn | £ 465,000 | 1.60 KM |
| 9 Lakeside | £ 325,000 | 1.97 KM |