Silk Mill Way, Leeds, West Yorkshire, LS16
By Hardisty & co
£ 150,000
Reviews
3 out of 5 stars
Hardisty & co says ..
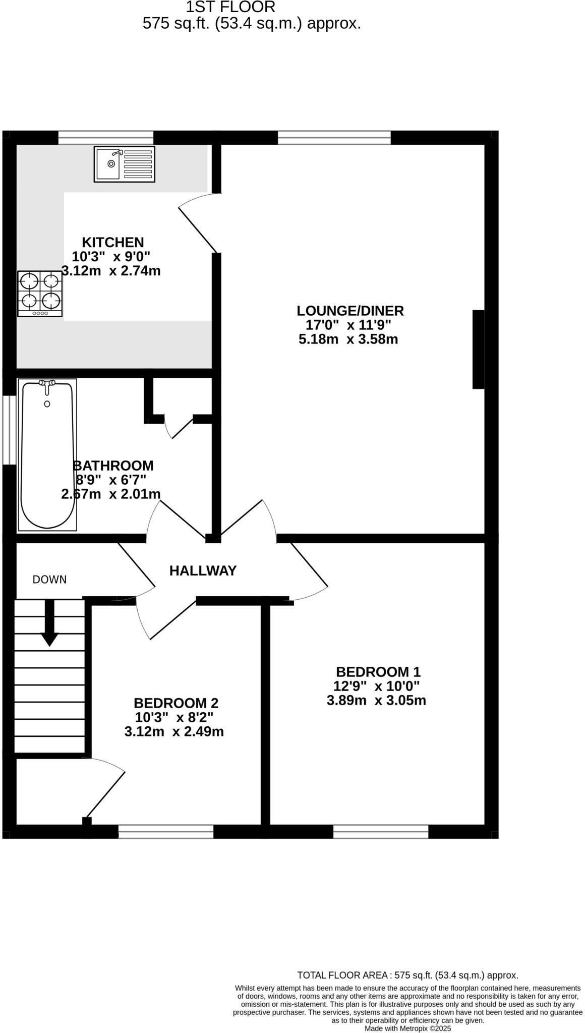
NO CHAIN !This well-presented two-bedroom apartment is set in a quiet cul-de-sac just a stone’s throw from the popular Clayton Wood area. Situated on the first floor with its own private entrance, this home offers a peaceful setting with leafy views, practical living space, and excellent ac...
Property Oracle says ..
This two-bedroom flat on Silk Mill Way, Leeds, presents a promising opportunity for buyers seeking an affordable property in a well-connected location. The property benefits from its proximity to local schools, transportation links, and shops, making it suitable for families and commuters alike. While the property is in reasonable condition, there is scope for cosmetic improvements to enhance its appeal. The inclusion of a garden with a shed adds further value, providing outdoor space for relaxation and storage. Overall, this property offers a blend of affordability, convenience, and potential, making it an attractive option in the Leeds property market.
Therefore, we give this property 6 / 10. *Disclaimer: This is our option and does constitute a recommendation or financial advice. Do your own research. *
- Price
- 8
- Condition
- 6
- Location
- 7
- Land
- 6
- Bedrooms
- 2
- Bathrooms
- 1
The heatmap indicates the level of crime in the area. The color of the heatmap indicates the crime severity and recency.
Metrics Year-on-Year
- Average area value
- 425,754.00 £Increased by 28.76 %
- Average area rental value
- 1,157.00 £/moIncreased by 11.79 %
- Est rental Yield
- 3.26 %Decreased by 13.30 %
- Crime Rate
- 6.00 %Unchanged by 0.00 %
Agent Activity
Hardisty & co created the listing.
Nearby Schools
| Name | Type | Ofsted | Distance |
|---|---|---|---|
| Lighthouse School Leeds | Free Schools Special | Good | 0.70 KM |
| Cookridge Primary School | Foundation School | Good | 1.10 KM |
| Cookridge Holy Trinity Church Of England Primary School | Voluntary Aided School | Good | 1.41 KM |
| St Mary'S Catholic Primary School, Horsforth | Academy Converter | 1.55 KM | |
| Iveson Primary School | Foundation School | Good | 1.57 KM |
Images
Nearby Streets
| Name | Average Price | Average Sqft | Distance |
|---|---|---|---|
| Oak Park Mount | £ 0 | 0 | 0.00 KM |
| Black Wood Rise | £ 0 | 0 | 0.00 KM |
| Millstone Way | £ 0 | 0 | 0.00 KM |
| Grove Farm Crescent | £ 0 | 0 | 0.00 KM |
| Back Low Lane | £ 0 | 0 | 0.00 KM |
Nearby Transport
| Name | NLC | TLC | Distance |
|---|---|---|---|
| Horsforth | 8499 | HRS | 1.22 KM |
| Kirkstall Forge | 6544 | KLF | 2.55 KM |
| Headingley | 8498 | HDY | 4.21 KM |
| Bramley (West Yorkshire) | 8496 | BLE | 4.98 KM |
| Burley Park | 8500 | BUY | 5.98 KM |
Nearby Listings
| Address | Price | Type | Score | Distance |
|---|---|---|---|---|
| Silk Mill Way, Leeds, West Yorkshire, LS16 | £ 150,000 | BUY | 6 / 10 | 0.00 KM |
| Bedford Mount, Cookridge, Leeds, LS16 | £ 200,000 | BUY | 7 / 10 | 0.04 KM |
| Bedford Grove, Cookridge, LS16 | £ 260,000 | BUY | 6 / 10 | 0.10 KM |
| Bedford Grove, Cookridge, LS16 | £ 205,000 | BUY | Unknown | 0.13 KM |
| Oak Park Terrace, Cookridge, Leeds, LS16 | £ 295,000 | BUY | Unknown | 0.27 KM |
Nearby Properties
| Address | Price | Distance |
|---|---|---|
| 24 Bedford Mount | £ 80,000 | 0.04 KM |
| 22 Bedford Mount | £ 212,000 | 0.04 KM |
| 6 Bedford Mount | £ 150,000 | 0.04 KM |
| 2 Bedford Mount | £ 121,000 | 0.04 KM |
| 52 Bedford Mount | £ 80,000 | 0.04 KM |