Carkington Road, Liverpool, L25
By Purplebricks
£ 280,000
Reviews
3 out of 5 stars
Purplebricks says ..
Welcome to this delightful 3-bedroom semi-detached property, perfectly situated in the highly sought-after area of Woolton Village. Offering a wonderful blend of modern living and the potential for future expansion, this home is ideal for families, professionals, or those seeking a peaceful retre...
Property Oracle says ..
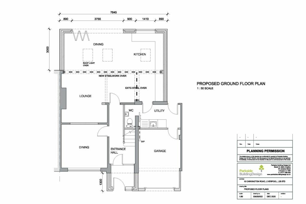
This 3-bedroom semi-detached house located on Carkington Road in Liverpool’s Woolton Village presents a compelling case for prospective buyers. The property benefits from its location within a sought-after neighbourhood known for its family-friendly atmosphere and good local schools. The proximity to Hunts Cross train station offers easy access to both city centre and commuter routes. The house itself exhibits a blend of modern updates and traditional features. The bathroom, in particular, demonstrates recent renovation efforts. While some areas could potentially benefit from further improvements, the overall condition is satisfactory. The presence of a garden adds to its appeal. The list price appears reasonably competitive when compared to similar properties in the same vicinity, although the lack of accurate square footage data makes definitive assessments about value challenging. The property’s potential for further development, as outlined in the provided planning permission drawings for an extension, adds to its long-term appeal, enhancing its potential for future value increases. Overall, this semi-detached home provides a good balance of modern convenience and appealing residential setting.
Therefore, we give this property 6 / 10. *Disclaimer: This is our option and does constitute a recommendation or financial advice. Do your own research. *
- Price
- 7
- Condition
- 6
- Location
- 7
- Land
- 5
- Bedrooms
- 3
- Bathrooms
- 1
The heatmap indicates the level of crime in the area. The color of the heatmap indicates the crime severity and recency.
Metrics Year-on-Year
- Average area value
- 329,499.00 £Decreased by 1.25 %
- Average area rental value
- 1,555.00 £/moIncreased by 30.23 %
- Est rental Yield
- 5.66 %Increased by 31.93 %
- Crime Rate
- 1.00 %Unchanged by 0.00 %
Agent Activity
Purplebricks marked this listing as sold.
Purplebricks created the listing.
Nearby Schools
| Name | Type | Ofsted | Distance |
|---|---|---|---|
| Cherry Tree Sscc | Children's Centre Linked Site | 0.74 KM | |
| Much Woolton Catholic Primary School | Voluntary Aided School | Good | 0.79 KM |
| Holy Family Catholic Primary School | Voluntary Aided School | Good | 0.99 KM |
| Formerly Hunts Cross Children'S Centre | Children's Centre Linked Site | 1.10 KM | |
| Hunts Cross Primary School | Community School | Requires improvement | 1.16 KM |
Images
Nearby Streets
| Name | Average Price | Average Sqft | Distance |
|---|---|---|---|
| Manor Way | £ 270,000 | 0 | 0.00 KM |
| Pinfold Road | £ 350,000 | 0 | 0.00 KM |
| Manor Crescent | £ 316,667 | 0 | 0.00 KM |
| Woodbine Road | £ 0 | 0 | 0.00 KM |
| Roedean Close | £ 310,000 | 0 | 0.00 KM |
Nearby Transport
| Name | NLC | TLC | Distance |
|---|---|---|---|
| Hunts Cross | 2235 | HNX | 0.83 KM |
| Halewood | 2295 | HED | 2.84 KM |
| Liverpool South Parkway | 9709 | LPY | 3.89 KM |
| Roby | 2261 | ROB | 4.66 KM |
| Huyton | 2160 | HUY | 4.82 KM |
Nearby Listings
| Address | Price | Type | Score | Distance |
|---|---|---|---|---|
| Carkington Road, Liverpool, L25 | £ 210,000 | BUY | 7 / 10 | 0.00 KM |
| Carkington Road, Woolton, Liverpool. | £ 360,000 | BUY | Unknown | 0.01 KM |
| Carkington Road, Woolton, L25 | £ 270,000 | BUY | Unknown | 0.06 KM |
| Crown Acres Road, Woolton, Liverpool | £ 200,000 | BUY | Unknown | 0.06 KM |
| Carkington Road, Liverpool, L25 | £ 375,000 | BUY | Unknown | 0.12 KM |
Nearby Properties
| Address | Price | Distance |
|---|---|---|
| 18 Carkington Road | £ 269,950 | 0.00 KM |
| 40 Carkington Road | £ 157,000 | 0.00 KM |
| 2 Carkington Road | £ 245,000 | 0.00 KM |
| 10 Carkington Road | £ 160,000 | 0.00 KM |
| 24 Carkington Road | £ 257,500 | 0.00 KM |