CO
Admirals Mead, Butleigh, Butleigh, BA6
By Cooper & Tanner
£ 399,950
Reviews
3 out of 5 stars
Cooper & Tanner says ..
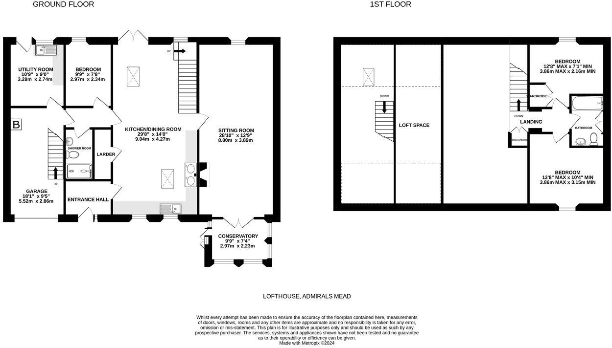
This attractive barn conversion is situated in a private position at the end of a popular cul-de-sac and is brought to market with no onward chain.
Property Oracle says ..
Therefore, we give this property 7 / 10. *Disclaimer: This is our option and does constitute a recommendation or financial advice. Do your own research. *
- Price
- 8
- Condition
- 6
- Location
- 7
- Land
- 7
- Bedrooms
- 3
- Bathrooms
- 2
- Sqft (est)
- 1,417.91
The heatmap indicates the level of crime in the area. The color of the heatmap indicates the crime severity and recency.
Metrics Year-on-Year
- Average area value
- 861,056.00 £Increased by 28.74 %
- Est sale value
- 612,537.12 £Increased by 10.77 %
- Average area rental value
- 1,522.00 £/moDecreased by 11.25 %
- Est letting value
- 0.00 £/moDecreased by 100.00 %
- Est rental Yield
- 2.12 %Decreased by 31.17 %
- Crime Rate
- 26.00 %Unchanged by 0.00 %
from 668,808.00 £
from 552,984.90 £
from 1,715.00 £/mo
from 1,417.91 £/mo
from 3.08 %
from 26.00 %
Agent Activity
Cooper & Tanner created the listing.
Nearby Schools
| Name | Type | Ofsted | Distance |
|---|---|---|---|
| Butleigh Church Of England Primary School | Voluntary Controlled School | Good | 0.22 KM |
| Baltonsborough Church Of England Voluntary Controlled Primary School | Voluntary Controlled School | Good | 3.55 KM |
| Millfield Preparatory School | Other Independent School | 4.37 KM | |
| Keinton Mandeville Primary School | Community School | Good | 5.15 KM |
| Charlton Mackrell Cofe Primary School | Voluntary Controlled School | Good | 5.43 KM |
Images
Nearby Streets
| Name | Average Price | Average Sqft | Distance |
|---|---|---|---|
| Water Lane | £ 0 | 0 | 0.00 KM |
| Grenville Close | £ 0 | 0 | 0.00 KM |
| Wood Lane | £ 0 | 0 | 0.00 KM |
| Banbury Lane | £ 0 | 0 | 0.00 KM |
Nearby Listings
| Address | Price | Type | Score | Distance |
|---|---|---|---|---|
| Admirals Mead, Butleigh, Butleigh, BA6 | £ 399,950 | BUY | 7 / 10 | 0.00 KM |
| West Park, Butleigh, Glastonbury, Somerset, BA6 | £ 725,000 | BUY | 7 / 10 | 0.08 KM |
| High Street, Butleigh | £ 900,000 | BUY | 7 / 10 | 0.09 KM |
| West Park, Glastonbury, BA6 | £ 775,000 | BUY | 7 / 10 | 0.09 KM |
| High Street, Butleigh, Somerset, BA6 8SY | £ 400,000 | BUY | Unknown | 0.12 KM |
Nearby Properties
| Address | Price | Distance |
|---|---|---|
| 3 Admirals Mead | £ 350,000 | 0.06 KM |
| 10 Admirals Mead | £ 413,000 | 0.06 KM |
| 9 Admirals Mead | £ 935,000 | 0.06 KM |
| 5 Admirals Mead | £ 442,000 | 0.06 KM |
| Lofthouse | £ 342,000 | 0.06 KM |