RO
Crowthorne Road, Bracknell, Berkshire
By Romans
£ 230,000
Reviews
3 out of 5 stars
Romans says ..
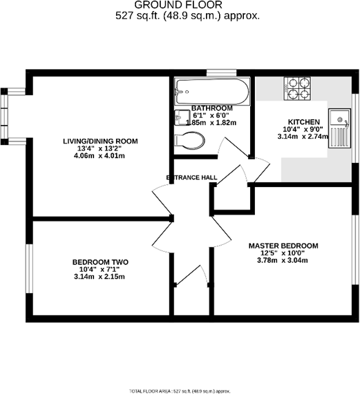
***NO ONWARD CHAIN*** Located close to Bracknell town centre is this two bedroom ground floor apartment benefitting from residents parking and communal gardens. The property comprises two large double bedrooms, a bay fronted reception room, separate bathroom and kitchen.
Property Oracle says ..
Therefore, we give this property 6 / 10. *Disclaimer: This is our option and does constitute a recommendation or financial advice. Do your own research. *
- Price
- 7
- Condition
- 6
- Location
- 8
- Land
- 5
- Bedrooms
- 2
- Bathrooms
- 1
- Sqft (est)
- 526.36
The heatmap indicates the level of crime in the area. The color of the heatmap indicates the crime severity and recency.
Metrics Year-on-Year
- Average area value
- 335,000.00 £Increased by 5.62 %
- Est sale value
- 267,390.88 £Increased by 46.82 %
- Average area rental value
- 1,350.00 £/moIncreased by 2.12 %
- Est letting value
- 1,052.72 £/moIncreased by 100.00 %
- Est rental Yield
- 4.84 %Decreased by 3.20 %
- Crime Rate
- 2.00 %Unchanged by 0.00 %
from 317,177.00 £
from 182,120.56 £
from 1,322.00 £/mo
from 526.36 £/mo
from 5.00 %
from 2.00 %
Agent Activity
Romans created the listing.
Nearby Schools
| Name | Type | Ofsted | Distance |
|---|---|---|---|
| The Brakenhale School | Academy Sponsor Led | Good | 0.58 KM |
| Wildridings Primary School | Community School | Requires improvement | 0.59 KM |
| Rowans And Sycamores Children'S Centre | Children's Centre | 0.66 KM | |
| Fox Hill Primary School | Community School | Good | 0.73 KM |
| St Michael'S Easthampstead Church Of England Voluntary Aided Primary School | Voluntary Aided School | Good | 0.86 KM |
Images
Nearby Streets
| Name | Average Price | Average Sqft | Distance |
|---|---|---|---|
| Rainforest Walk | £ 0 | 0 | 0.00 KM |
| Crowthorne Road North | £ 0 | 0 | 0.00 KM |
| Bagshot Road | £ 296,000 | 0 | 0.00 KM |
| Bagshot Road | £ 0 | 0 | 0.00 KM |
| Western Roundabout | £ 400,000 | 0 | 0.00 KM |
Nearby Transport
| Name | NLC | TLC | Distance |
|---|---|---|---|
| Bracknell | 5693 | BCE | 0.73 KM |
| Martins Heron | 5692 | MAO | 3.50 KM |
| Camberley | 5682 | CAM | 8.10 KM |
| Crowthorne | 5628 | CRN | 8.37 KM |
| Sandhurst (Berks) | 5646 | SND | 8.67 KM |
Nearby Listings
| Address | Price | Type | Score | Distance |
|---|---|---|---|---|
| Crowthorne Road, Bracknell, Berkshire | £ 230,000 | BUY | 6 / 10 | 0.00 KM |
| Crowthorne Road, Bracknell, Berkshire | £ 230,000 | BUY | 5 / 10 | 0.01 KM |
| Glendower, Crowthorne Road, Bracknell | £ 260,000 | BUY | 6 / 10 | 0.04 KM |
| Crowthorne Road, Bracknell, Berkshire, RG12 | £ 995,000 | BUY | 7 / 10 | 0.07 KM |
| Windermere Gate, Bracknell, RG12 | £ 92,000 | BUY | 7 / 10 | 0.08 KM |
Nearby Properties
| Address | Price | Distance |
|---|---|---|
| Coryletum | £ 975,000 | 0.07 KM |
| Tanglewood | £ 670,000 | 0.07 KM |
| Tokai Mura | £ 425,000 | 0.07 KM |
| 15 Windermere Gate | £ 342,500 | 0.08 KM |
| 12 Windermere Gate | £ 373,000 | 0.08 KM |