AU
Bridge Street, Oldham, Greater Manchester, OL1
By Auction House
£ 190,000
Reviews
2 out of 5 stars
Auction House says ..
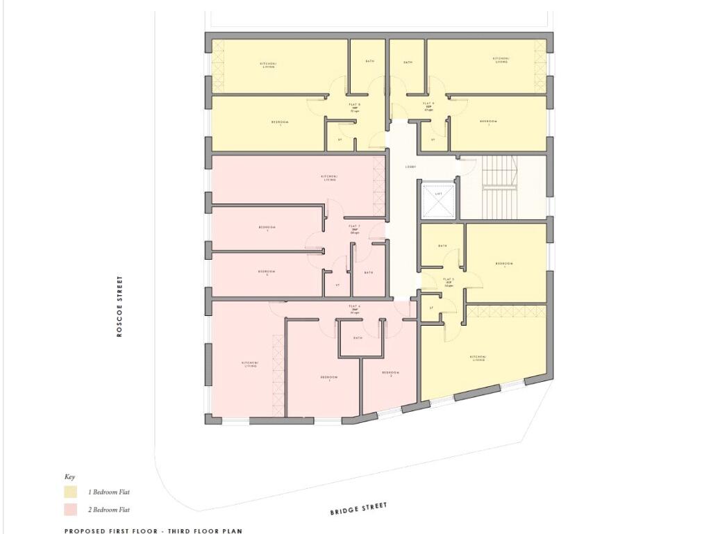
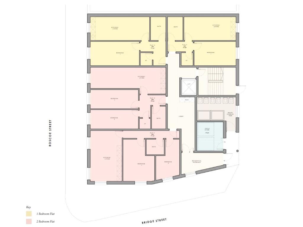
FOR SALE BY LIVE STREAM AUCTION ON TUESDAY 2ND SEPTEMBER 2025 AT 12PM *GUIDE PRICE £190,000+ Parcel of land with Planning Permission granted under reference: FUL/350819/23 for the development of 19 residential units (8 two-bed flats and 11 one-bed flats). Er...
Property Oracle says ..
Therefore, we give this property 4 / 10. *Disclaimer: This is our option and does constitute a recommendation or financial advice. Do your own research. *
- Price
- 6
- Condition
- 2
- Location
- 7
- Land
- 3
- Bedrooms
- 0
- Bathrooms
- 0
The heatmap indicates the level of crime in the area. The color of the heatmap indicates the crime severity and recency.
Metrics Year-on-Year
- Average area value
- 524,714.00 £Increased by 15.54 %
- Average area rental value
- 1,989.00 £/moIncreased by 4.74 %
- Est rental Yield
- 4.55 %Decreased by 9.36 %
- Crime Rate
- 0.00 %
from 454,148.00 £
from 1,899.00 £/mo
from 5.02 %
from 0.00 %
Agent Activity
Auction House created the listing.
Nearby Schools
| Name | Type | Ofsted | Distance |
|---|---|---|---|
| Hollinwood Academy | Academy Special Sponsor Led | Outstanding | 0.43 KM |
| Greenhill Academy | Academy Converter | Good | 0.45 KM |
| The Blue Coat Cofe School | Academy Converter | Outstanding | 0.58 KM |
| Holy Cross Ceva Primary School | Voluntary Aided School | Good | 0.71 KM |
| Beever Primary School | Community School | Requires improvement | 0.76 KM |
Images
Nearby Streets
| Name | Average Price | Average Sqft | Distance |
|---|---|---|---|
| Bridge Street | £ 0 | 0 | 0.00 KM |
| Bow Street | £ 0 | 0 | 0.00 KM |
| Waterloo Street | £ 85,000 | 0 | 0.00 KM |
| Marlborough Street | £ 0 | 0 | 0.00 KM |
| Rock Street | £ 80,000 | 0 | 0.00 KM |
Nearby Transport
| Name | NLC | TLC | Distance |
|---|---|---|---|
| Ashton-Under-Lyne | 2790 | AHN | 5.69 KM |
| Mills Hill (Manchester) | 2920 | MIH | 7.25 KM |
| Moston | 2973 | MSO | 7.36 KM |
| Guide Bridge | 2955 | GUI | 7.41 KM |
| Mossley (Manchester) | 2903 | MSL | 7.80 KM |
Nearby Listings
| Address | Price | Type | Score | Distance |
|---|---|---|---|---|
| Bridge Street, Oldham, Greater Manchester, OL1 | £ 190,000 | BUY | 4 / 10 | 0.00 KM |
| Land at 2 Bridge Street, Oldham, Greater Manchester, OL1 | £ 140,000 | BUY | 4 / 10 | 0.00 KM |
| Union Street, OLDHAM | £ 47,000 | BUY | 4 / 10 | 0.11 KM |
| Union Street, Oldham, Greater Manchester, OL1 | £ 42,000 | BUY | 4 / 10 | 0.11 KM |
| Union Street, Oldham, Greater Manchester, OL1 | £ 62,000 | BUY | 4 / 10 | 0.11 KM |
Nearby Properties
| Address | Price | Distance |
|---|---|---|
| 18 Waterloo Street | £ 264,000 | 0.21 KM |
| 6 Waterloo Street | £ 56,500 | 0.23 KM |
| 141 Yorkshire Street | £ 57,500 | 0.23 KM |
| 139 Yorkshire Street | £ 49,000 | 0.23 KM |
| 17 Queen Street | £ 46,000 | 0.33 KM |