Links Close, Wallasey, CH45
By Express Estate Agency
£ 405,000
Reviews
3 out of 5 stars
Express Estate Agency says ..
We are proud to offer this Two Bedroom Detached Bungalow – all interest and OFFERS are INVITED.*Guide Price £425,000 - £405,000*
Property Oracle says ..
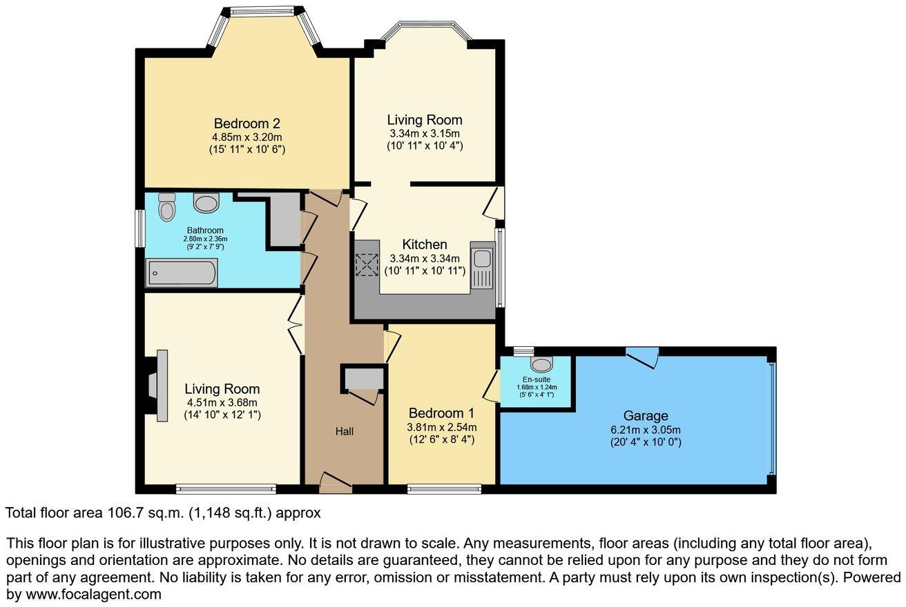
This is a detached bungalow in Wallasey, Merseyside. It has two bedrooms and two bathrooms, with 1,148.51 sqft of living space. The property includes a garden and a garage. Nearby, there are several schools with ‘Good’ Ofsted ratings. The property is also located close to transportation links, including the New Brighton and Wallasey Grove Road train stations. The listing price is £405,000.
Therefore, we give this property 6 / 10. *Disclaimer: This is our option and does constitute a recommendation or financial advice. Do your own research. *
- Price
- 6
- Condition
- 7
- Location
- 7
- Land
- 7
- Bedrooms
- 2
- Bathrooms
- 2
- Sqft (est)
- 1,148.51
The heatmap indicates the level of crime in the area. The color of the heatmap indicates the crime severity and recency.
Metrics Year-on-Year
- Average area value
- 283,568.00 £Increased by 1.75 %
- Est sale value
- 254,969.22 £Increased by 2.30 %
- Average area rental value
- 825.00 £/moDecreased by 19.67 %
- Est letting value
- 0.00 £/mo
- Est rental Yield
- 3.49 %Decreased by 21.04 %
- Crime Rate
- 4.00 %Unchanged by 0.00 %
Agent Activity
Express Estate Agency created the listing.
Nearby Schools
| Name | Type | Ofsted | Distance |
|---|---|---|---|
| Elleray Park School | Community Special School | Outstanding | 0.80 KM |
| New Brighton Children'S Centre | Children's Centre | 0.97 KM | |
| Mount Primary School | Community School | Good | 0.97 KM |
| St George'S Primary School | Community School | Good | 1.20 KM |
| St Mary'S Catholic College, A Voluntary Academy | Academy Sponsor Led | Requires improvement | 1.25 KM |
Images
Nearby Streets
| Name | Average Price | Average Sqft | Distance |
|---|---|---|---|
| Links View | £ 0 | 0 | 0.00 KM |
| Mount Road | £ 0 | 0 | 0.00 KM |
| Oldfield Road | £ 270,000 | 0 | 0.00 KM |
| Tavistock Road | £ 0 | 0 | 0.00 KM |
| Leyburn Road | £ 312,500 | 0 | 0.00 KM |
Nearby Transport
| Name | NLC | TLC | Distance |
|---|---|---|---|
| New Brighton | 2152 | NBN | 1.27 KM |
| Wallasey Grove Road | 2154 | WLG | 1.35 KM |
| Wallasey Village | 2265 | WLV | 1.63 KM |
| Birkenhead North | 2145 | BKN | 3.20 KM |
| Bidston | 2136 | BID | 3.46 KM |
Nearby Listings
| Address | Price | Type | Score | Distance |
|---|---|---|---|---|
| Links Close, Wallasey, Wirral | £ 450,000 | BUY | 8 / 10 | 0.00 KM |
| Links Close, Wallasey, CH45 | £ 405,000 | BUY | 6 / 10 | 0.00 KM |
| Linksway, Wallasey, Wirral, CH45 | £ 475,000 | BUY | 6 / 10 | 0.06 KM |
| Sea Road, Wallasey, Wirral | £ 585,000 | BUY | 7 / 10 | 0.11 KM |
| Warren Drive, Wallasey, Wirral | £ 1,100,000 | BUY | 8 / 10 | 0.11 KM |
Nearby Properties
| Address | Price | Distance |
|---|---|---|
| 33 Warren Drive | £ 445,000 | 0.04 KM |
| 37 Warren Drive | £ 585,000 | 0.04 KM |
| 35 Warren Drive | £ 375,000 | 0.04 KM |
| 25 Warren Drive | £ 750,000 | 0.04 KM |
| 27b Warren Drive | £ 470,000 | 0.04 KM |