BR
Orchard House, 7 Orchard Gardens, Teignmouth, Devon
By Bradleys
£ 270,000
Reviews
2 out of 5 stars
Bradleys says ..
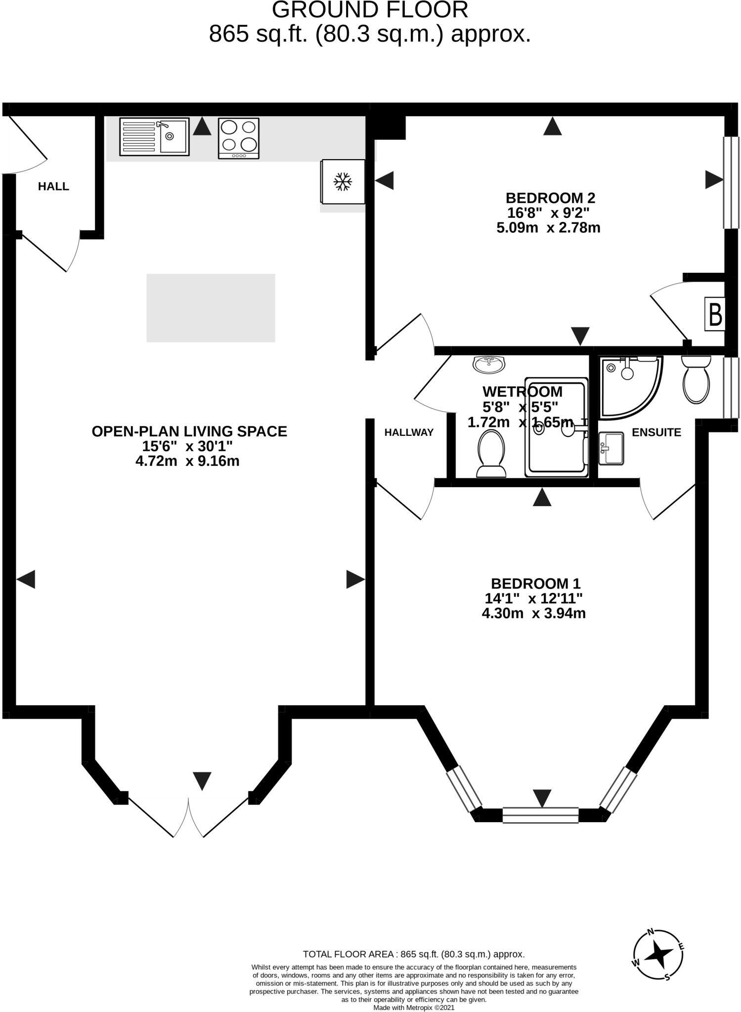
Orchard House – Period Elegance Meets Modern Comfort! Two bedroom ground floor apartment, town location and parking Offered with no onward chain. Vacant property! A beautifully presented and spacious ground-floor flat, set within a stunning Grade II listed Victorian building ...
Property Oracle says ..
Therefore, we give this property 5 / 10. *Disclaimer: This is our option and does constitute a recommendation or financial advice. Do your own research. *
- Price
- 6
- Condition
- 8
- Location
- 7
- Land
- 1
- Bedrooms
- 2
- Bathrooms
- 2
- Sqft (est)
- 865.00
The heatmap indicates the level of crime in the area. The color of the heatmap indicates the crime severity and recency.
Metrics Year-on-Year
- Average area value
- 288,750.00 £Decreased by 25.15 %
- Est sale value
- 198,085.00 £Decreased by 22.90 %
- Average area rental value
- 821.00 £/moDecreased by 25.30 %
- Est letting value
- 0.00 £/mo
- Est rental Yield
- 3.41 %Decreased by 0.29 %
- Crime Rate
- 83.00 %Unchanged by 0.00 %
from 385,756.00 £
from 256,905.00 £
from 1,099.00 £/mo
from 0.00 £/mo
from 3.42 %
from 83.00 %
Agent Activity
Bradleys created the listing.
Nearby Schools
| Name | Type | Ofsted | Distance |
|---|---|---|---|
| Teignmouth Community School, Exeter Road | Academy Converter | Requires improvement | 0.84 KM |
| Trinity School | Other Independent School | 1.16 KM | |
| Shaldon Primary School | Academy Converter | 1.57 KM | |
| Our Lady And St Patrick'S Roman Catholic Primary School | Academy Sponsor Led | Good | 1.63 KM |
| Dawlish Children'S Centre | Children's Centre | 1.64 KM |
Images
Nearby Streets
| Name | Average Price | Average Sqft | Distance |
|---|---|---|---|
| Wellington Street | £ 0 | 0 | 0.00 KM |
| Bank Street | £ 0 | 0 | 0.00 KM |
| Den Road | £ 0 | 0 | 0.00 KM |
| Shute Hill | £ 0 | 0 | 0.00 KM |
| Hollands Road | £ 0 | 0 | 0.00 KM |
Nearby Transport
| Name | NLC | TLC | Distance |
|---|---|---|---|
| Teignmouth | 3430 | TGM | 0.23 KM |
| Dawlish | 3408 | DWL | 5.14 KM |
| Dawlish Warren | 3409 | DWW | 8.19 KM |
| Torre | 3432 | TRR | 9.89 KM |
Nearby Listings
| Address | Price | Type | Score | Distance |
|---|---|---|---|---|
| Orchard House, 7 Orchard Gardens, Teignmouth, Devon | £ 270,000 | BUY | 5 / 10 | 0.00 KM |
| Orchard Gardens, Teignmouth, Devon | £ 245,000 | BUY | 5 / 10 | 0.00 KM |
| Teignmouth | £ 800,000 | BUY | 6 / 10 | 0.00 KM |
| Orchard Gardens, Teignmouth, Devon, TQ14 | £ 77,000 | BUY | 6 / 10 | 0.01 KM |
| 4 Orchard Gardens, Teignmouth, TQ14 8DP | £ 100,000 | BUY | 4 / 10 | 0.01 KM |
Nearby Properties
| Address | Price | Distance |
|---|---|---|
| 13 Orchard Gardens | £ 152,500 | 0.01 KM |
| Tideteller Cottage | £ 165,000 | 0.07 KM |
| The Olive Tree | £ 120,000 | 0.07 KM |
| 16 Orchard Gardens | £ 90,456 | 0.07 KM |
| 15 Bickford Lane | £ 150,000 | 0.09 KM |