Sussex Gardens, Bayswater, London, W2
By Foxtons
£ 1,500,000
Reviews
3 out of 5 stars
Foxtons says ..
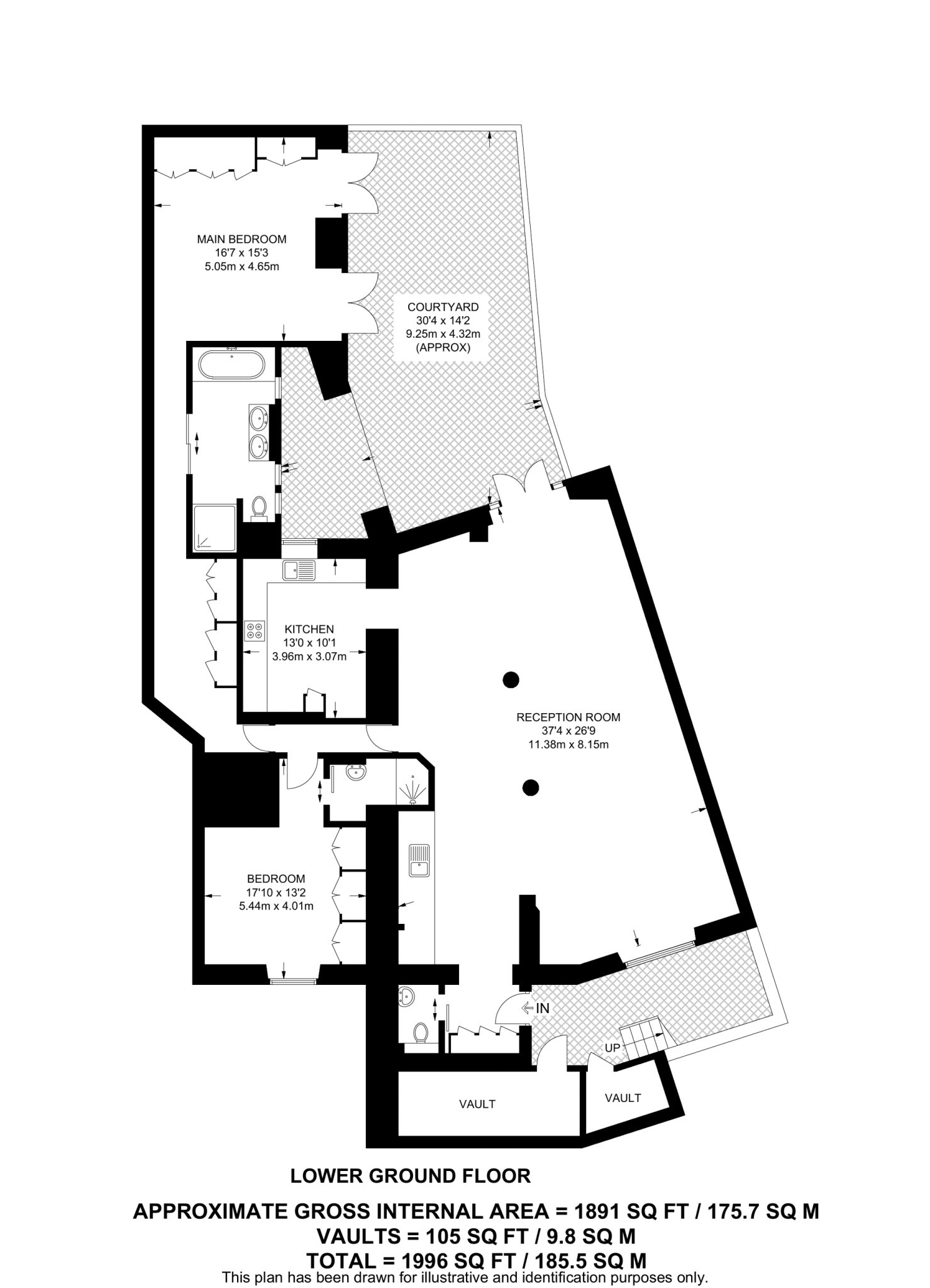
Situated within a period building, this fantastic 2 bedroom apartment offers a contemporary and ample living space throughout, featuring a spacious courtyard and an expansive 37' reception.
Property Oracle says ..
This property is a 2 bedroom 2 bathroom flat located in Sussex Gardens, Bayswater, London. The property is in excellent condition and benefits from a private patio. The location is superb, being close to Hyde Park and with excellent transport links. However, the plot size is very small. While the list price is above the average for the area, the excellent condition and desirable location justify this to some extent.
Therefore, we give this property 7 / 10. *Disclaimer: This is our option and does constitute a recommendation or financial advice. Do your own research. *
- Price
- 7
- Condition
- 10
- Location
- 10
- Land
- 2
- Bedrooms
- 2
- Bathrooms
- 2
- Sqft (est)
- 1,996.00
The heatmap indicates the level of crime in the area. The color of the heatmap indicates the crime severity and recency.
Metrics Year-on-Year
- Average area value
- 1,276,398.00 £Decreased by 24.34 %
- Est sale value
- 2,688,612.00 £Increased by 18.57 %
- Average area rental value
- 2,120.00 £/moDecreased by 9.05 %
- Est letting value
- 3,992.00 £/moIncreased by 100.00 %
- Est rental Yield
- 1.99 %Increased by 19.88 %
- Crime Rate
- 6.00 %Unchanged by 0.00 %
Agent Activity
Foxtons created the listing.
Nearby Schools
| Name | Type | Ofsted | Distance |
|---|---|---|---|
| Hospital Home And Education Units Co St Mary'S Hospitial Tuition Unit | Miscellaneous | 0.46 KM | |
| St James & St John Church Of England Primary School | Voluntary Aided School | Good | 0.47 KM |
| Marylebone Boys' School | Free Schools | Good | 0.67 KM |
| Micky Star Children'S Centre | Children's Centre Linked Site | 0.73 KM | |
| United Colleges Group | Further Education | Requires improvement | 0.93 KM |
Images
Nearby Streets
| Name | Average Price | Average Sqft | Distance |
|---|---|---|---|
| Cerney Mews | £ 2,441,667 | 0 | 0.00 KM |
| Chilworth Street | £ 0 | 0 | 0.00 KM |
| North Wharf Road Footbridge | £ 0 | 0 | 0.00 KM |
| North Wharf Road | £ 5,558,333 | 0 | 0.00 KM |
| Hyde Park Square | £ 0 | 0 | 0.00 KM |
Nearby Transport
| Name | NLC | TLC | Distance |
|---|---|---|---|
| Paddington | 3087 | PAD | 0.34 KM |
| Marylebone | 1475 | MYB | 1.73 KM |
| South Hampstead | 1451 | SOH | 3.18 KM |
| Kilburn High Road | 1415 | KBN | 3.28 KM |
| West Brompton | 8875 | WBP | 3.67 KM |
Nearby Listings
| Address | Price | Type | Score | Distance |
|---|---|---|---|---|
| Sussex Gardens, Bayswater, London, W2 | £ 1,500,000 | BUY | 7 / 10 | 0.00 KM |
| Sussex Gardens, London, W2 | £ 1,100,000 | BUY | 6 / 10 | 0.02 KM |
| Sussex Gardens, Hyde Park | £ 1,125,000 | BUY | 8 / 10 | 0.02 KM |
| Sussex Gardens, Bayswater, London, W2 | £ 1,125,000 | BUY | 9 / 10 | 0.02 KM |
| Sussex Gardens, London, Greater London, W2 2RL | £ 1,150,000 | BUY | 7 / 10 | 0.02 KM |
Nearby Properties
| Address | Price | Distance |
|---|---|---|
| 223a Sussex Gardens | £ 825,000 | 0.02 KM |
| 235b Sussex Gardens | £ 305,000 | 0.02 KM |
| 233a Sussex Gardens | £ 157,501 | 0.02 KM |
| 223 Sussex Gardens | £ 1,550,000 | 0.02 KM |
| 229a Sussex Gardens | £ 216,500 | 0.02 KM |