Buckhurst Close, Eastbourne, BN20 9EF
By Leaper Stanbrook
£ 725,000
Reviews
3 out of 5 stars
Leaper Stanbrook says ..
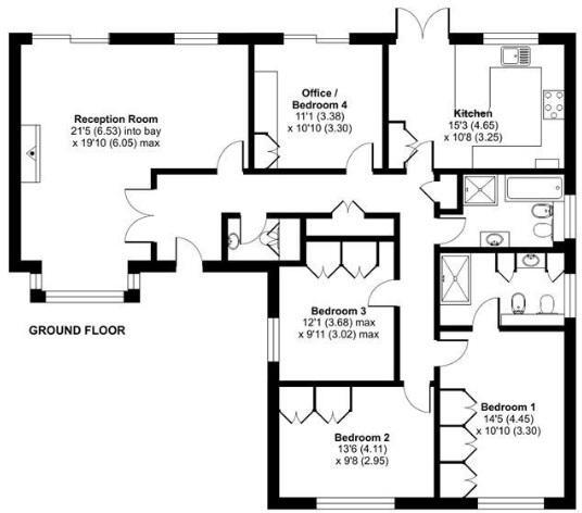
A beautifully presented four bedroom detached bungalow occupying an elevated position and nestled in a quiet cul-de-sac within the sought after Willingdon Village area of Eastbourne.
Property Oracle says ..
This is a detached bungalow in the Ratton area of Eastbourne. The property features 4 bedrooms and 1 bathroom, with a square footage of 1,120.91 sqft. It benefits from a large garden and off-street parking, including a garage. The interior appears to be modern and well-maintained. While the location is generally good, with a reputable school nearby, the price seems a little high compared to local averages.
Therefore, we give this property 7 / 10. *Disclaimer: This is our option and does constitute a recommendation or financial advice. Do your own research. *
- Price
- 6
- Condition
- 8
- Location
- 7
- Land
- 9
- Bedrooms
- 4
- Bathrooms
- 1
- Sqft (est)
- 1,120.91
The heatmap indicates the level of crime in the area. The color of the heatmap indicates the crime severity and recency.
Metrics Year-on-Year
- Average area value
- 590,421.00 £Increased by 34.04 %
- Est sale value
- 573,905.92 £Increased by 31.96 %
- Average area rental value
- 1,427.00 £/moDecreased by 43.31 %
- Est letting value
- 1,120.91 £/moDecreased by 50.00 %
- Est rental Yield
- 2.90 %Decreased by 57.73 %
- Crime Rate
- 1.00 %Unchanged by 0.00 %
Agent Activity
Leaper Stanbrook created the listing.
Nearby Schools
| Name | Type | Ofsted | Distance |
|---|---|---|---|
| Ratton School | Academy Converter | Good | 1.04 KM |
| Ocklynge Junior School | Academy Sponsor Led | 1.18 KM | |
| Willingdon Primary School | Community School | Requires improvement | 1.78 KM |
| The Lindfield School | Academy Special Converter | Outstanding | 1.92 KM |
| The Cavendish School | Academy Converter | Good | 1.97 KM |
Images
Nearby Streets
| Name | Average Price | Average Sqft | Distance |
|---|---|---|---|
| The Croft | £ 0 | 0 | 0.00 KM |
| Exeter Close | £ 0 | 0 | 0.00 KM |
| Shortlands Close | £ 650,000 | 0 | 0.00 KM |
| Gloucester Close | £ 0 | 0 | 0.00 KM |
| Avard Crescent | £ 299,950 | 0 | 0.00 KM |
Nearby Transport
| Name | NLC | TLC | Distance |
|---|---|---|---|
| Polegate | 5455 | PLG | 2.95 KM |
| Hampden Park (Sussex) | 5450 | HMD | 3.11 KM |
| Eastbourne | 5448 | EBN | 4.41 KM |
| Pevensey And Westham | 5461 | PEV | 8.44 KM |
Nearby Listings
| Address | Price | Type | Score | Distance |
|---|---|---|---|---|
| Buckhurst Close, Eastbourne, BN20 9EF | £ 725,000 | BUY | 7 / 10 | 0.00 KM |
| Buckhurst Close, Eastbourne, BN20 9EF | £ 800,000 | BUY | 8 / 10 | 0.00 KM |
| Buckhurst Close, Eastbourne, BN20 | £ 850,000 | BUY | Unknown | 0.06 KM |
| Wedderburn Road, Willingdon, Eastbourne, East Sussex, BN20 | £ 675,000 | BUY | 6 / 10 | 0.08 KM |
| Wedderburn Road, East Sussex, BN20 | £ 875,000 | BUY | 7 / 10 | 0.09 KM |
Nearby Properties
| Address | Price | Distance |
|---|---|---|
| 9 Buckhurst Close | £ 249,950 | 0.01 KM |
| 12 Buckhurst Close | £ 345,000 | 0.01 KM |
| 6 Buckhurst Close | £ 81,000 | 0.01 KM |
| 11 Buckhurst Close | £ 240,000 | 0.01 KM |
| 17a Buckhurst Close | £ 610,000 | 0.01 KM |