Knowl Road, Golcar, HUDDERSFIELD
By Barnard Marcus
£ 270,000
Reviews
2 out of 5 stars
Barnard Marcus says ..
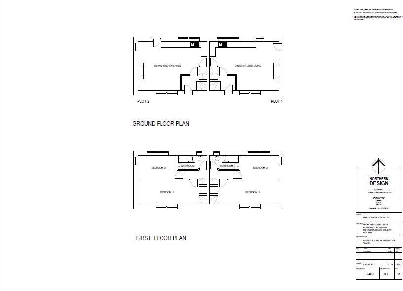
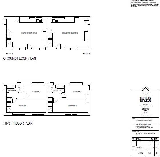
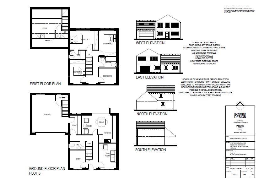
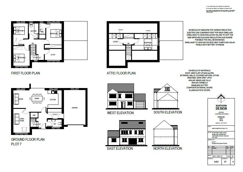
AUCTION SALE 18 November 2025 - Freehold residential development site within a sought-after residential location, Full planning consent for the development of 7 dwellings (4 semi-detached and 3 detached), Site extends to approx 0.685 acres (2,771 M2), Full vacant possession,By order of the Fixed ...
Property Oracle says ..
This property, located on Knowl Road in Golcar, Huddersfield, presents a unique opportunity for development. Currently listed as land, it requires significant renovation. The location offers proximity to schools and local amenities, though transportation links are somewhat limited. The property’s price appears reasonable given its size and potential. The substantial land area provides opportunities for expansion or landscaping. However, the current condition necessitates a comprehensive renovation project.
Therefore, we give this property 5 / 10. *Disclaimer: This is our option and does constitute a recommendation or financial advice. Do your own research. *
- Price
- 7
- Condition
- 2
- Location
- 6
- Land
- 7
- Bedrooms
- 0
- Bathrooms
- 0
- Sqft (est)
- 900.00
The heatmap indicates the level of crime in the area. The color of the heatmap indicates the crime severity and recency.
Metrics Year-on-Year
- Average area value
- 217,722.00 £Decreased by 2.66 %
- Est sale value
- 223,200.00 £Increased by 6.90 %
- Average area rental value
- 802.00 £/moIncreased by 8.82 %
- Est letting value
- 0.00 £/mo
- Est rental Yield
- 4.42 %Increased by 11.90 %
- Crime Rate
- 7.00 %Unchanged by 0.00 %
Agent Activity
Barnard Marcus created the listing.
Nearby Schools
| Name | Type | Ofsted | Distance |
|---|---|---|---|
| Golcar Junior Infant And Nursery School | Foundation School | Good | 0.41 KM |
| St John'S Church Of England Voluntary Aided Junior And Infant School | Voluntary Aided School | Good | 0.49 KM |
| Wellhouse Junior And Infant School | Community School | Good | 0.93 KM |
| Golcar, Cowlersley And Milnsbridge Children'S Centre | Children's Centre | 0.95 KM | |
| Linthwaite Ardron Cofe (Voluntary Aided) Junior And Infant School | Voluntary Aided School | Requires improvement | 1.49 KM |
Images
Nearby Streets
| Name | Average Price | Average Sqft | Distance |
|---|---|---|---|
| Myrtle Road | £ 0 | 0 | 0.00 KM |
| Chapel Lane | £ 0 | 0 | 0.00 KM |
| Birch Grove | £ 0 | 0 | 0.00 KM |
| Kaye Lane | £ 0 | 0 | 0.00 KM |
| Laburnum Grove | £ 0 | 0 | 0.00 KM |
Nearby Transport
| Name | NLC | TLC | Distance |
|---|---|---|---|
| Slaithwaite | 8450 | SWT | 3.81 KM |
| Lockwood | 8443 | LCK | 5.48 KM |
| Berry Brow | 8431 | BBW | 6.56 KM |
| Huddersfield | 8437 | HUD | 7.34 KM |
| Honley | 8436 | HOY | 8.35 KM |
Nearby Listings
| Address | Price | Type | Score | Distance |
|---|---|---|---|---|
| Knowl Road, Golcar, HUDDERSFIELD | £ 270,000 | BUY | 5 / 10 | 0.00 KM |
| Knowl Road, Golcar, Huddersfield, HD7 | £ 140,000 | BUY | Unknown | 0.01 KM |
| JAMES STREET, GOLCAR, HUDDERSFIELD, HD7 | £ 465,000 | BUY | 5 / 10 | 0.09 KM |
| Handel Street, Golcar, Huddersfield | £ 200,000 | BUY | 6 / 10 | 0.09 KM |
| Bromyard, Herefordshire, HD7 4DH | £ 120,000 | BUY | Unknown | 0.10 KM |
Nearby Properties
| Address | Price | Distance |
|---|---|---|
| 8 Knowl Road | £ 69,000 | 0.00 KM |
| 6 Knowl Road | £ 82,500 | 0.00 KM |
| 83 Knowl Road | £ 65,000 | 0.00 KM |
| 18 Knowl Road | £ 176,000 | 0.00 KM |
| 95 Knowl Road | £ 118,000 | 0.00 KM |