Charlton Grace says ..
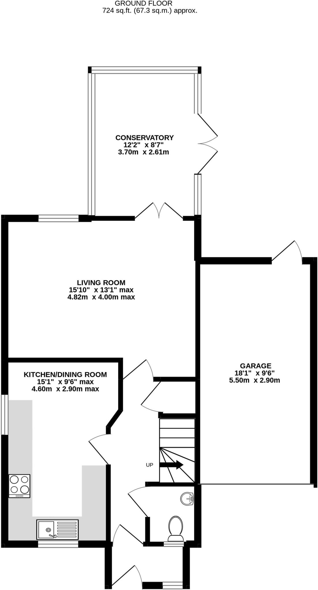
Charlton Grace are delighted to present to the market this truly unique and well-presented three bedroom detached family house, situated within this peaceful non-estate location in the beautiful and picturesque village of Winchfield. The property offers no onward chain.
Property Oracle says ..
Therefore, we give this property 6 / 10. *Disclaimer: This is our option and does constitute a recommendation or financial advice. Do your own research. *
- Price
- 3
- Condition
- 7
- Location
- 7
- Land
- 7
- Bedrooms
- 3
- Bathrooms
- 2
- Sqft (est)
- 260.16
The heatmap indicates the level of crime in the area. The color of the heatmap indicates the crime severity and recency.
Metrics Year-on-Year
- Average area value
- 605,000.00 £Decreased by 12.61 %
- Est sale value
- 196,420.80 £Increased by 45.19 %
- Average area rental value
- 1,924.00 £/moDecreased by 7.72 %
- Est letting value
- 520.32 £/moIncreased by 100.00 %
- Est rental Yield
- 3.82 %Increased by 5.82 %
- Crime Rate
- 7.00 %Unchanged by 0.00 %
from 692,261.00 £
from 135,283.20 £
from 2,085.00 £/mo
from 260.16 £/mo
from 3.61 %
from 7.00 %
Agent Activity
Charlton Grace marked this listing as sold.
Charlton Grace created the listing.
Nearby Schools
| Name | Type | Ofsted | Distance |
|---|---|---|---|
| Dogmersfield Church Of England Primary School | Voluntary Aided School | Good | 1.28 KM |
| Little Saplings And Wisteria Children'S Centre | Children's Centre | 2.63 KM | |
| Calthorpe Park School | Community School | Good | 2.66 KM |
| Oakwood Infant School | Community School | Outstanding | 2.79 KM |
| Greenfields Junior School | Community School | Good | 3.12 KM |
Images
Nearby Streets
| Name | Average Price | Average Sqft | Distance |
|---|---|---|---|
| The Willows | £ 512,500 | 0 | 0.00 KM |
| Kestrel Walk | £ 775,000 | 0 | 0.00 KM |
Nearby Transport
| Name | NLC | TLC | Distance |
|---|---|---|---|
| Winchfield | 5528 | WNF | 2.33 KM |
| Fleet | 5522 | FLE | 6.25 KM |
| Hook | 5523 | HOK | 8.32 KM |
Nearby Listings
| Address | Price | Type | Score | Distance |
|---|---|---|---|---|
| The Hurst, Winchfield | £ 650,000 | BUY | 6 / 10 | 0.00 KM |
| The Hurst, Winchfield | £ 750,000 | BUY | 6 / 10 | 0.10 KM |
| The Hurst, Winchfield, Hook, RG27 | £ 600,000 | BUY | 5 / 10 | 0.15 KM |
| Barley Mow Close, Winchfield, Hook | £ 650,000 | BUY | Unknown | 0.15 KM |
| Winchfield Court, Winchfield, Hook, Hampshire, RG27 | £ 845,000 | BUY | 7 / 10 | 0.52 KM |
Nearby Properties
| Address | Price | Distance |
|---|---|---|
| Fairholme | £ 347,500 | 0.08 KM |
| Bell Cottage | £ 735,000 | 0.08 KM |
| Barley Croft | £ 571,000 | 0.14 KM |
| Long Acre | £ 880,000 | 0.14 KM |
| 9 Barley Mow Close | £ 247,500 | 0.15 KM |