Haworth Street, Rishton, Blackburn
By The Auction Group Limited
£ 55,000
The Auction Group Limited says ..
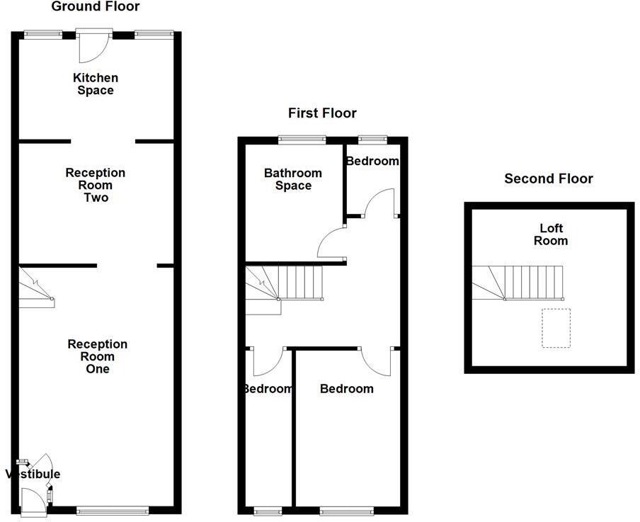
THREE BEDROOM MID TERRACE PROPERTY WITH ADDED LOFT ROOM To Be sold via online Auction powered by The Auction Group Situated on Haworth Street in the area of Rishton, Blackburn, this delightful mid-terrace house presents an exciting opportunity for those seeking a property with ...
- Bedrooms
- 3
- Bathrooms
- 0
- Sqft (est)
- 1,069.00
The heatmap indicates the level of crime in the area. The color of the heatmap indicates the crime severity and recency.
Metrics Year-on-Year
- Average area value
- 170,000.00 £Decreased by 4.52 %
- Est sale value
- 184,937.00 £Decreased by 2.26 %
- Average area rental value
- 648.00 £/moDecreased by 22.30 %
- Est letting value
- 0.00 £/mo
- Est rental Yield
- 4.57 %Decreased by 18.68 %
- Crime Rate
- 93.00 %Unchanged by 0.00 %
from 178,040.00 £
from 189,213.00 £
from 834.00 £/mo
from 0.00 £/mo
from 5.62 %
from 93.00 %
Agent Activity
The Auction Group Limited created the listing.
Nearby Schools
| Name | Type | Ofsted | Distance |
|---|---|---|---|
| St Charles' Rc School | Voluntary Aided School | Good | 0.28 KM |
| Rishton Methodist Primary School | Voluntary Controlled School | Good | 0.35 KM |
| Copperhouse Children'S Centre | Children's Centre | 0.40 KM | |
| The Hyndburn Academy | Academy Sponsor Led | 0.56 KM | |
| Rishton St Peter And St Paul'S Church Of England Primary School | Voluntary Aided School | Good | 0.56 KM |
Images
Nearby Streets
| Name | Average Price | Average Sqft | Distance |
|---|---|---|---|
| Maple Street | £ 0 | 0 | 0.00 KM |
| St Paul's Road | £ 0 | 0 | 0.00 KM |
| Beech Close | £ 0 | 0 | 0.00 KM |
| Princes Street | £ 0 | 0 | 0.00 KM |
| Church Street | £ 0 | 0 | 0.00 KM |
Nearby Transport
| Name | NLC | TLC | Distance |
|---|---|---|---|
| Rishton | 2580 | RIS | 0.60 KM |
| Church And Oswaldtwistle | 2556 | CTW | 3.35 KM |
| Accrington | 2552 | ACR | 5.41 KM |
| Langho | 2735 | LHO | 5.49 KM |
| Whalley (Lancashire) | 2736 | WHE | 6.30 KM |
Nearby Listings
| Address | Price | Type | Score | Distance |
|---|---|---|---|---|
| Haworth Street, Rishton, Blackburn | £ 55,000 | BUY | Unknown | 0.00 KM |
| 10 Haworth Street, Rishton, Blackburn, BB1 4HZ | £ 10,000 | BUY | 5 / 10 | 0.00 KM |
| Noble Street, Rishton, Blackburn | £ 90,000 | BUY | 5 / 10 | 0.03 KM |
| Howarth Street, Rishton, BB1 | £ 79,995 | BUY | 6 / 10 | 0.04 KM |
| Knowles Street, Rishton, Blackburn, BB1 4JA | £ 115,000 | BUY | 6 / 10 | 0.08 KM |
Nearby Properties
| Address | Price | Distance |
|---|---|---|
| 24 Haworth Street | £ 82,500 | 0.05 KM |
| 19 Haworth Street | £ 50,000 | 0.05 KM |
| 45 Haworth Street | £ 66,000 | 0.05 KM |
| 17 Haworth Street | £ 65,000 | 0.05 KM |
| 47 Haworth Street | £ 65,000 | 0.05 KM |