Sell My Group says ..
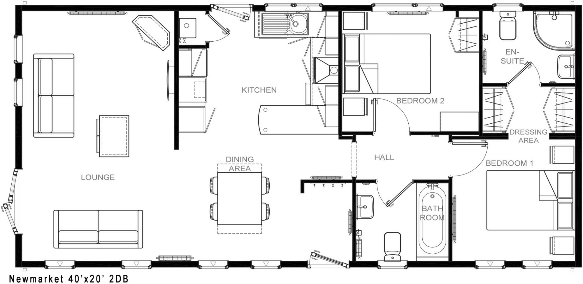
BRAND NEW Park Home (40'x20') | Residential Development | Fully Furnished | Corner Plot | Decking | Safe and Secure Community Of LikeMinded People | Rural Location With Stunning Views | Close to Okehampton With Great Transport Links | Walking Distance to Amenities | Part Exchange Available
Property Oracle says ..
Therefore, we give this property 7 / 10. *Disclaimer: This is our option and does constitute a recommendation or financial advice. Do your own research. *
- Price
- 7
- Condition
- 9
- Location
- 8
- Land
- 7
- Bedrooms
- 2
- Bathrooms
- 2
- Sqft (est)
- 812.00
- Lot (est)
- 800.00
The heatmap indicates the level of crime in the area. The color of the heatmap indicates the crime severity and recency.
Metrics Year-on-Year
- Average area value
- 319,000.00 £Increased by 2.65 %
- Est sale value
- 292,320.00 £Increased by 3.75 %
- Average area rental value
- 833.00 £/moIncreased by 0.48 %
- Est letting value
- 0.00 £/mo
- Est rental Yield
- 3.13 %Decreased by 2.19 %
- Crime Rate
- 2.00 %Unchanged by 0.00 %
from 310,773.00 £
from 281,764.00 £
from 829.00 £/mo
from 0.00 £/mo
from 3.20 %
from 2.00 %
Agent Activity
Sell My Group created the listing.
Nearby Schools
| Name | Type | Ofsted | Distance |
|---|---|---|---|
| Okehampton Primary School And Foundation Unit | Academy Converter | 0.08 KM | |
| Okehampton College | Academy Converter | 0.85 KM | |
| Okehampton Area Children'S Centre | Children's Centre | 0.85 KM | |
| St James Church Of England Primary And Nursery School | Free Schools | 1.92 KM | |
| Exbourne Church Of England Primary School | Academy Converter | 6.85 KM |
Images
Nearby Streets
| Name | Average Price | Average Sqft | Distance |
|---|---|---|---|
| Oakfield Residential Park | £ 146,000 | 0 | 0.00 KM |
| Old Market Way | £ 0 | 0 | 0.00 KM |
| Ranelagh Road | £ 0 | 0 | 0.00 KM |
| Market Street | £ 0 | 0 | 0.00 KM |
| Darkey Lane | £ 185,000 | 0 | 0.00 KM |
Nearby Transport
| Name | NLC | TLC | Distance |
|---|---|---|---|
| Okehampton | 5786 | OKE | 1.46 KM |
| Sampford Courtenay | 8724 | SMC | 7.00 KM |
Nearby Listings
| Address | Price | Type | Score | Distance |
|---|---|---|---|---|
| Okehampton, Devon, EX20 | £ 249,950 | BUY | 8 / 10 | 0.00 KM |
| Okehampton, Devon, EX20 | £ 234,950 | BUY | 7 / 10 | 0.00 KM |
| Oaklands Park, Glendale Road, Okehampton | £ 125,000 | BUY | 7 / 10 | 0.12 KM |
| Oaklands Residential Park, Okehampton | £ 230,000 | BUY | Unknown | 0.14 KM |
| Hatherleigh Road, Okehampton, Devon, EX20 | £ 225,000 | BUY | 6 / 10 | 0.20 KM |
Nearby Properties
| Address | Price | Distance |
|---|---|---|
| 3 Glendale Road | £ 237,000 | 0.09 KM |
| 3 Kestrel Close | £ 250,000 | 0.18 KM |
| 19 Kestrel Close | £ 440,000 | 0.18 KM |
| 12 Kestrel Close | £ 250,000 | 0.18 KM |
| 15 Kestrel Close | £ 129,000 | 0.18 KM |