FO
Antill Terrace, Stepney, London, E1
By Foxtons
£ 800,000
Reviews
2 out of 5 stars
Foxtons says ..
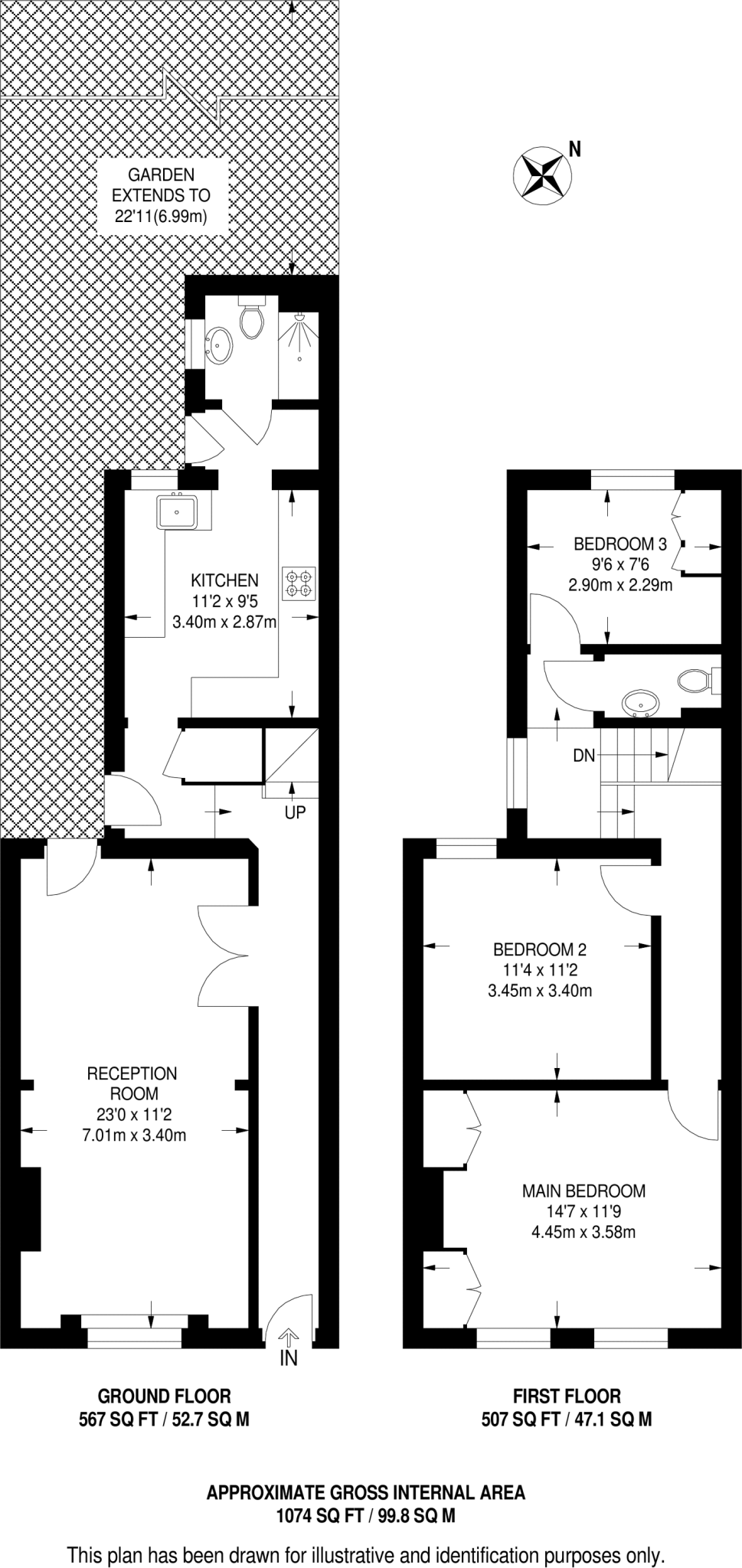
A lovely 3 bedroom house arranged over 2 floors, boasting bright and well proportioned accommodation throughout and a private paved garden.
Property Oracle says ..
Therefore, we give this property 4 / 10. *Disclaimer: This is our option and does constitute a recommendation or financial advice. Do your own research. *
- Price
- 3
- Condition
- 4
- Location
- 7
- Land
- 5
- Bedrooms
- 3
- Bathrooms
- 1
- Sqft (est)
- 730.33
The heatmap indicates the level of crime in the area. The color of the heatmap indicates the crime severity and recency.
Metrics Year-on-Year
- Average area value
- 375,000.00 £Decreased by 38.35 %
- Est sale value
- 452,074.27 £Decreased by 11.32 %
- Average area rental value
- 2,543.00 £/moIncreased by 18.06 %
- Est letting value
- 2,921.32 £/moIncreased by 100.00 %
- Est rental Yield
- 8.14 %Increased by 91.53 %
- Crime Rate
- 4.00 %Unchanged by 0.00 %
from 608,271.00 £
from 509,770.34 £
from 2,154.00 £/mo
from 1,460.66 £/mo
from 4.25 %
from 4.00 %
Agent Activity
Foxtons created the listing.
Nearby Schools
| Name | Type | Ofsted | Distance |
|---|---|---|---|
| Marion Richardson Primary School | Community School | Good | 0.12 KM |
| Old Church Nursery School | Local Authority Nursery School | Outstanding | 0.29 KM |
| Old Church Nursery School | Children's Centre Linked Site | 0.29 KM | |
| Bishop Challoner Boys' School | Voluntary Aided School | Requires improvement | 0.31 KM |
| Stepney All Saints Church Of England Secondary School | Voluntary Aided School | Outstanding | 0.37 KM |
Images
Nearby Streets
| Name | Average Price | Average Sqft | Distance |
|---|---|---|---|
| Head Street | £ 0 | 0 | 0.00 KM |
| Barnardo Street | £ 0 | 0 | 0.00 KM |
| Ewhurst Close | £ 0 | 0 | 0.00 KM |
| Pique Mews | £ 0 | 0 | 0.00 KM |
| Tottam Terrace | £ 400,000 | 0 | 0.00 KM |
Nearby Transport
| Name | NLC | TLC | Distance |
|---|---|---|---|
| Limehouse | 7491 | LHS | 0.81 KM |
| Shadwell | 1082 | SDE | 1.18 KM |
| Wapping | 1085 | WPE | 1.52 KM |
| Whitechapel | 4935 | ZLW | 1.53 KM |
| Rotherhithe | 1039 | ROE | 1.64 KM |
Nearby Listings
| Address | Price | Type | Score | Distance |
|---|---|---|---|---|
| Antill Terrace, Stepney, London, E1 | £ 800,000 | BUY | 4 / 10 | 0.00 KM |
| Senrab Street, Stepney Green, London, E1 | £ 850,000 | BUY | 6 / 10 | 0.07 KM |
| Commercial Road, London, E1 | £ 300,000 | BUY | 6 / 10 | 0.09 KM |
| Senrab Street, Stepney Green, E1 | £ 525,000 | BUY | 7 / 10 | 0.10 KM |
| Senrab Street, London E1 | £ 425,000 | BUY | 5 / 10 | 0.11 KM |
Nearby Properties
| Address | Price | Distance |
|---|---|---|
| 48 Senrab Street | £ 565,000 | 0.06 KM |
| 47a Senrab Street | £ 178,000 | 0.06 KM |
| 33a Senrab Street | £ 535,000 | 0.06 KM |
| 35a Senrab Street | £ 220,000 | 0.06 KM |
| 52 Senrab Street | £ 308,000 | 0.06 KM |