King Edward Avenue, Dartford
By Livermores The Estate Agents
£ 300,000
Reviews
3 out of 5 stars
Livermores The Estate Agents says ..
No summary available.
Property Oracle says ..
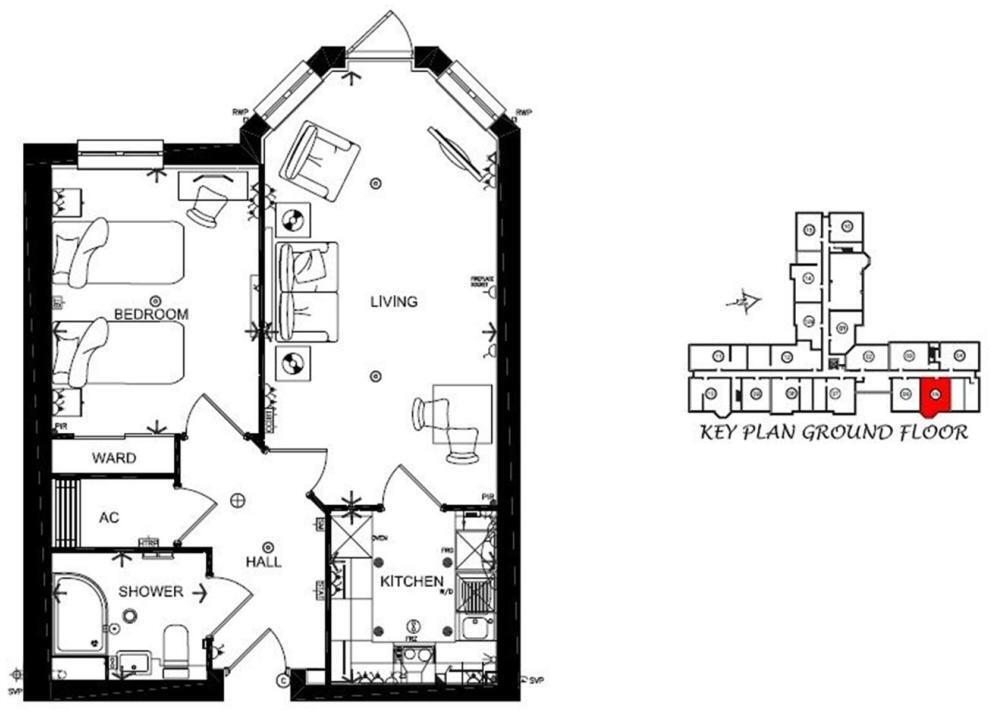
This property is a retirement property located in Dartford, Kent. The property is well presented and in good condition, with modern fixtures and fittings. It benefits from a communal garden. The location is convenient, with nearby schools and transportation links. However, the list price of £300,000 seems high considering the size of the property (338 sq ft) and the average price per square foot in the area (£713). Similar properties in the area are listed at lower prices. Further investigation into comparable properties is recommended to determine a more accurate market value.
Therefore, we give this property 6 / 10. *Disclaimer: This is our option and does constitute a recommendation or financial advice. Do your own research. *
- Price
- 4
- Condition
- 9
- Location
- 8
- Land
- 3
- Bedrooms
- 1
- Bathrooms
- 1
- Sqft (est)
- 338.00
The heatmap indicates the level of crime in the area. The color of the heatmap indicates the crime severity and recency.
Metrics Year-on-Year
- Average area value
- 522,333.00 £Decreased by 15.71 %
- Est sale value
- 242,008.00 £Increased by 4.22 %
- Average area rental value
- 2,481.00 £/moDecreased by 21.34 %
- Est letting value
- 1,014.00 £/moUnchanged by 0.00 %
- Est rental Yield
- 5.70 %Decreased by 6.71 %
- Crime Rate
- 6.00 %Unchanged by 0.00 %
Agent Activity
Livermores The Estate Agents created the listing.
Nearby Schools
| Name | Type | Ofsted | Distance |
|---|---|---|---|
| Our Lady'S Catholic Primary School, Dartford | Voluntary Aided School | Good | 0.10 KM |
| Dartford Grammar School | Academy Converter | 0.36 KM | |
| Westgate Primary School | Academy Sponsor Led | Good | 0.45 KM |
| Dartford Grammar School For Girls | Academy Converter | Outstanding | 0.59 KM |
| West Hill Primary Academy | Academy Converter | Good | 0.70 KM |
Images
Nearby Streets
| Name | Average Price | Average Sqft | Distance |
|---|---|---|---|
| West Hill Rise | £ 307,500 | 0 | 0.00 KM |
| Trinity Gardens | £ 0 | 0 | 0.00 KM |
| Zion Cottages | £ 0 | 0 | 0.00 KM |
| Priory Road | £ 0 | 0 | 0.00 KM |
| Spital Street | £ 0 | 0 | 0.00 KM |
Nearby Transport
| Name | NLC | TLC | Distance |
|---|---|---|---|
| Dartford | 5101 | DFD | 1.19 KM |
| Slade Green | 5154 | SGR | 3.13 KM |
| Crayford | 5100 | CRY | 3.29 KM |
| Purfleet | 7453 | PFL | 4.98 KM |
| Erith | 5104 | ERH | 5.42 KM |
Nearby Listings
| Address | Price | Type | Score | Distance |
|---|---|---|---|---|
| King Edward Avenue, Dartford | £ 300,000 | BUY | 6 / 10 | 0.00 KM |
| Alexandra Terrace, Dartford | £ 465,000 | BUY | 6 / 10 | 0.02 KM |
| Sanctuary Close, Dartford, DA1 | £ 325,000 | BUY | 5 / 10 | 0.04 KM |
| Sanctuary Close, Dartford | £ 365,000 | BUY | 6 / 10 | 0.05 KM |
| Keyes Lodge, Dartford | £ 289,950 | BUY | Unknown | 0.05 KM |
Nearby Properties
| Address | Price | Distance |
|---|---|---|
| 4 Sanctuary Close | £ 134,000 | 0.06 KM |
| 3 Sanctuary Close | £ 320,000 | 0.06 KM |
| 6 Sanctuary Close | £ 57,500 | 0.06 KM |
| 7 Sanctuary Close | £ 405,000 | 0.06 KM |
| 2 Sanctuary Close | £ 166,000 | 0.06 KM |