Smart Estate Agent says ..
**BRAND NEW PLOT - GUIDE PRICE £950,000 less 50% STAMP DUTY PAID BY DEVELOPER IF RESERVED IN MAY 2025 (conditions apply)** Opportunity to design a bespoke kitchen and integrated annex
Property Oracle says ..
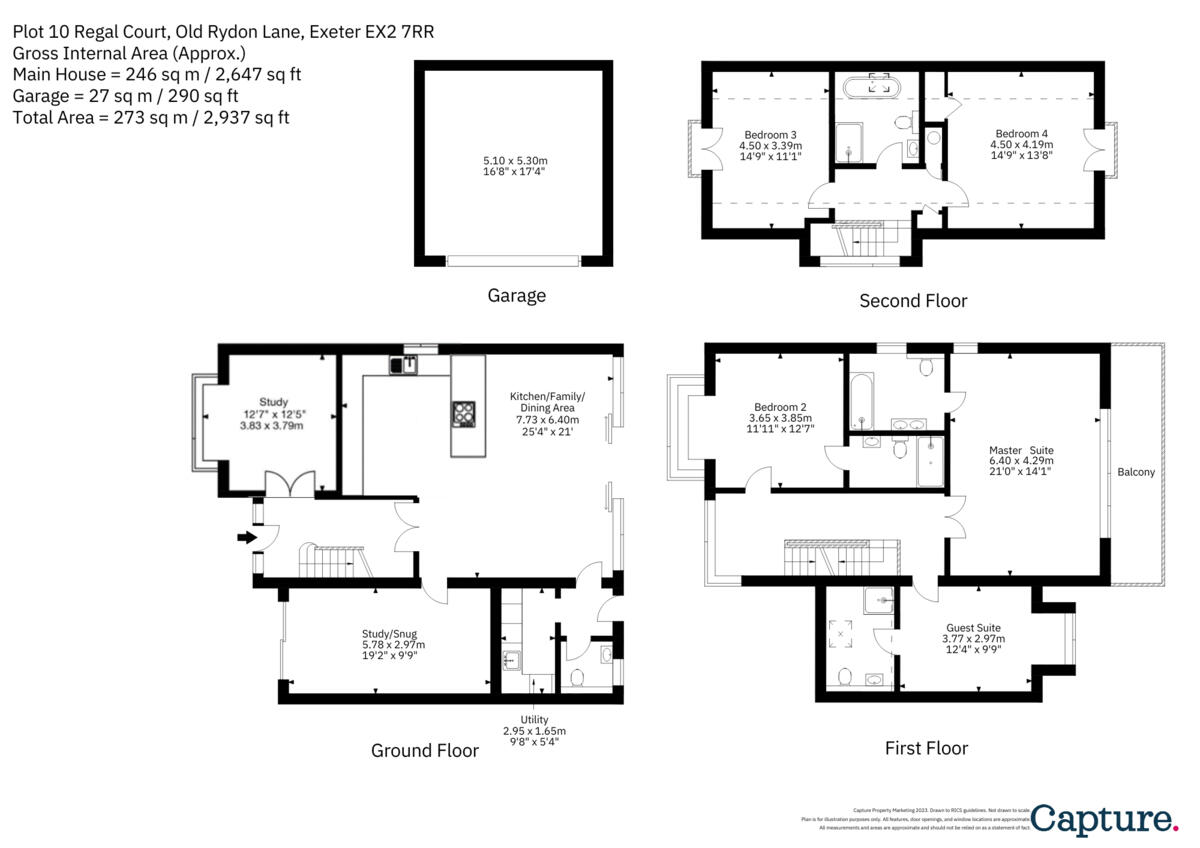
This property is a modern detached house located in Topsham, Exeter. It boasts 5 bedrooms and 4 bathrooms, and is situated on a plot of 2,938.55 sqft. The house appears to be in excellent condition, with modern fixtures and fittings throughout. The location is desirable, with good access to transportation links and schools. The average house price in the area is £512,958, with an average price per sqft of £419. While the list price of £950,000 is significantly higher than the average, the property’s size, modern condition, and desirable location could justify the higher price. More information on comparable properties would be needed to determine if it represents good value.
Therefore, we give this property 8 / 10. *Disclaimer: This is our option and does constitute a recommendation or financial advice. Do your own research. *
- Price
- 7
- Condition
- 10
- Location
- 9
- Land
- 7
- Bedrooms
- 5
- Bathrooms
- 4
- Sqft (est)
- 2,512.94
- Lot (est)
- 2,938.55
The heatmap indicates the level of crime in the area. The color of the heatmap indicates the crime severity and recency.
Metrics Year-on-Year
- Average area value
- 528,231.00 £Increased by 3.23 %
- Est sale value
- 1,610,794.54 £Increased by 28.71 %
- Average area rental value
- 1,833.00 £/moIncreased by 1.05 %
- Est letting value
- 5,025.88 £/moIncreased by 100.00 %
- Est rental Yield
- 4.16 %Decreased by 2.12 %
- Crime Rate
- 0.00 %
Agent Activity
Smart Estate Agent created the listing.
Nearby Schools
| Name | Type | Ofsted | Distance |
|---|---|---|---|
| Trinity Church Of England Voluntary Aided Primary And Nursery School | Voluntary Aided School | 0.62 KM | |
| Clyst Heath Nursery And Community Primary School | Community School | Good | 1.16 KM |
| Stansfield Academy | Academy Alternative Provision Sponsor Led | 1.21 KM | |
| St Peter'S Church Of England Aided School | Voluntary Aided School | Good | 1.95 KM |
| Clyst Vale Children'S Centre | Children's Centre | 1.96 KM |
Images
Nearby Streets
| Name | Average Price | Average Sqft | Distance |
|---|---|---|---|
| Beech Copse | £ 0 | 0 | 0.00 KM |
| Luna Road | £ 0 | 0 | 0.00 KM |
| Marine Drive | £ 0 | 0 | 0.00 KM |
| Artillery Avenue | £ 750,000 | 0 | 0.00 KM |
| Carrick Mill | £ 875,000 | 0 | 0.00 KM |
Nearby Transport
| Name | NLC | TLC | Distance |
|---|---|---|---|
| Newcourt | 9589 | NCO | 0.16 KM |
| Digby And Sowton | 5753 | DIG | 0.96 KM |
| Topsham | 5758 | TOP | 2.29 KM |
| Pinhoe | 5757 | PIN | 3.58 KM |
| Polsloe Bridge | 3422 | POL | 4.41 KM |
Nearby Listings
| Address | Price | Type | Score | Distance |
|---|---|---|---|---|
| Regal Court, Exeter, EX2 | £ 950,000 | BUY | 8 / 10 | 0.00 KM |
| Regal Court, Exeter | £ 800,000 | BUY | 8 / 10 | 0.04 KM |
| Beech Copse, Exeter | £ 750,000 | BUY | 8 / 10 | 0.28 KM |
| Newcourt, Exeter | £ 300,000 | BUY | Unknown | 0.31 KM |
| Rhode Island Drive, The Rydons, Exeter | £ 400,000 | BUY | 7 / 10 | 0.33 KM |
Nearby Properties
| Address | Price | Distance |
|---|---|---|
| Woodbury View | £ 595,000 | 0.13 KM |
| Yen Dor | £ 425,000 | 0.13 KM |
| Sandylands | £ 367,500 | 0.13 KM |
| Lloret | £ 425,000 | 0.13 KM |
| Clyst Brake | £ 385,000 | 0.13 KM |