Springfield Close, Crich, Matlock
MA

Springfield Close, Crich, Matlock

By Matthew Thomas Residential

£ 340,000

Reviews

3 out of 5 stars

Matthew Thomas Residential says ..

***BEING SOLD CHAIN FREE*** is this deceptively spacious and very well maintained three bedroom detached bungalow situated in a highly sought after location.

Property Oracle says ..

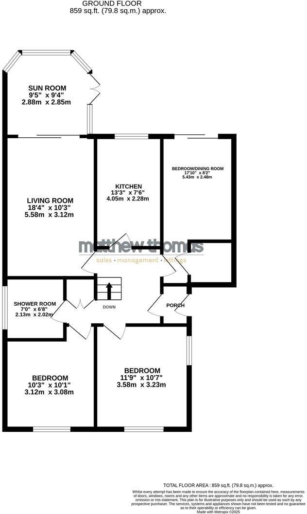
The property is a 3-bedroom detached bungalow situated in Springfield Close, Crich, Derbyshire. It benefits from a good location, being close to local amenities and well-regarded schools such as Crich Junior School (Outstanding Ofsted rating) and Crich Church of England Infant School (Good Ofsted rating), both within a short distance. The nearby railway stations at Ambergate and Whatstandwell provide convenient access to other areas. Based on the provided images, the property appears to be in good condition. The kitchen has been recently updated with modern cabinets and flooring. The conservatory offers additional living space and enjoys views over the garden. The property has a well-maintained garden with a patio area and shed, indicating a good level of outdoor space. Considering the average house price in the area is £221,234 and the average price per square foot is £236, the list price of £340,000 for this 858.96 sqft property seems slightly higher than the average. However, this is a detached bungalow in a desirable location with a good-sized garden, which can command a premium. Nearby comparable properties support this higher price point, although the lack of sqft data for these properties makes a direct comparison difficult. Therefore, while the price is above average, it is not unreasonable given the property’s features and location.

Therefore, we give this property 7 / 10. *Disclaimer: This is our option and does constitute a recommendation or financial advice. Do your own research. *

Price
7
Condition
8
Location
9
Land
7
Bedrooms
3
Bathrooms
1
Sqft (est)
858.96

The heatmap indicates the level of crime in the area. The color of the heatmap indicates the crime severity and recency.

Metrics Year-on-Year

Average area value
178,750.00 £
Decreased by 27.19 %
from 245,507.00 £
Est sale value
202,714.56 £
Increased by 5.36 %
from 192,407.04 £
Average area rental value
583.00 £/mo
Decreased by 41.05 %
from 989.00 £/mo
Est letting value
0.00 £/mo
from 0.00 £/mo
Est rental Yield
3.91 %
Decreased by 19.05 %
from 4.83 %
Crime Rate
17.00 %
Unchanged by 0.00 %
from 17.00 %

Agent Activity

  • Matthew Thomas Residential created the listing.

Nearby Schools

NameTypeOfstedDistance
Crich Junior SchoolCommunity SchoolOutstanding0.17 KM
Crich Church Of England Infant SchoolVoluntary Controlled SchoolGood0.42 KM
Fritchley Cofe (Aided) Primary & Nursery SchoolVoluntary Aided SchoolGood1.43 KM
Ambergate Primary SchoolCommunity SchoolGood2.87 KM
Crich Carr Cofe Primary SchoolVoluntary Controlled SchoolGood2.89 KM

Images

Photo 28-03-2025, 13 14 53.jpg Photo 28-03-2025, 13 24 22.jpg Photo 28-03-2025, 13 27 05.jpg Photo 28-03-2025, 13 27 21.jpg Photo 28-03-2025, 13 23 16.jpg Photo 28-03-2025, 13 23 40.jpg Photo 28-03-2025, 13 21 43.jpg Photo 28-03-2025, 13 22 28.jpg Photo 28-03-2025, 13 22 50.jpg Photo 28-03-2025, 13 28 12.jpg Photo 28-03-2025, 13 25 28.jpg Photo 28-03-2025, 13 25 40.jpg Photo 28-03-2025, 13 26 01.jpg

Nearby Streets

NameAverage PriceAverage SqftDistance
Fairview Rise £ 000.00 KM
Market Place £ 000.00 KM
Hill Crest £ 299,99500.00 KM
The Beeches £ 000.00 KM
New Road £ 240,00000.00 KM

Nearby Transport

NameNLCTLCDistance
Ambergate1678AMB2.52 KM
Whatstandwell1585WTS3.04 KM
Belper1679BLP6.61 KM
Cromford1822CMF8.70 KM
Matlock Bath1582MTB9.90 KM

Nearby Listings

AddressPriceTypeScoreDistance
Springfield Close, Crich, Matlock £ 340,000BUY7 / 100.00 KM
Springfield Close, DE4 £ 325,000BUY6 / 100.04 KM
Dimple Cottage & Barn, Dimple Lane, Crich £ 1,200,000BUY7 / 100.05 KM
Culland View, Crich, Matlock, Derbyshire. DE4 5DA £ 325,000BUY6 / 100.15 KM
Culland View, Crich, Matlock £ 400,000BUY7 / 100.16 KM

Nearby Properties

AddressPriceDistance
12 Springfield Close £ 225,0000.04 KM
10 Springfield Close £ 235,0000.04 KM
4 Springfield Close £ 235,0000.04 KM
8 Springfield Close £ 234,0000.04 KM
5 Springfield Close £ 235,0000.04 KM