Crescent Road, Brighton
By Knight & Knoxley
£ 1,295,000
Reviews
3 out of 5 stars
Knight & Knoxley says ..
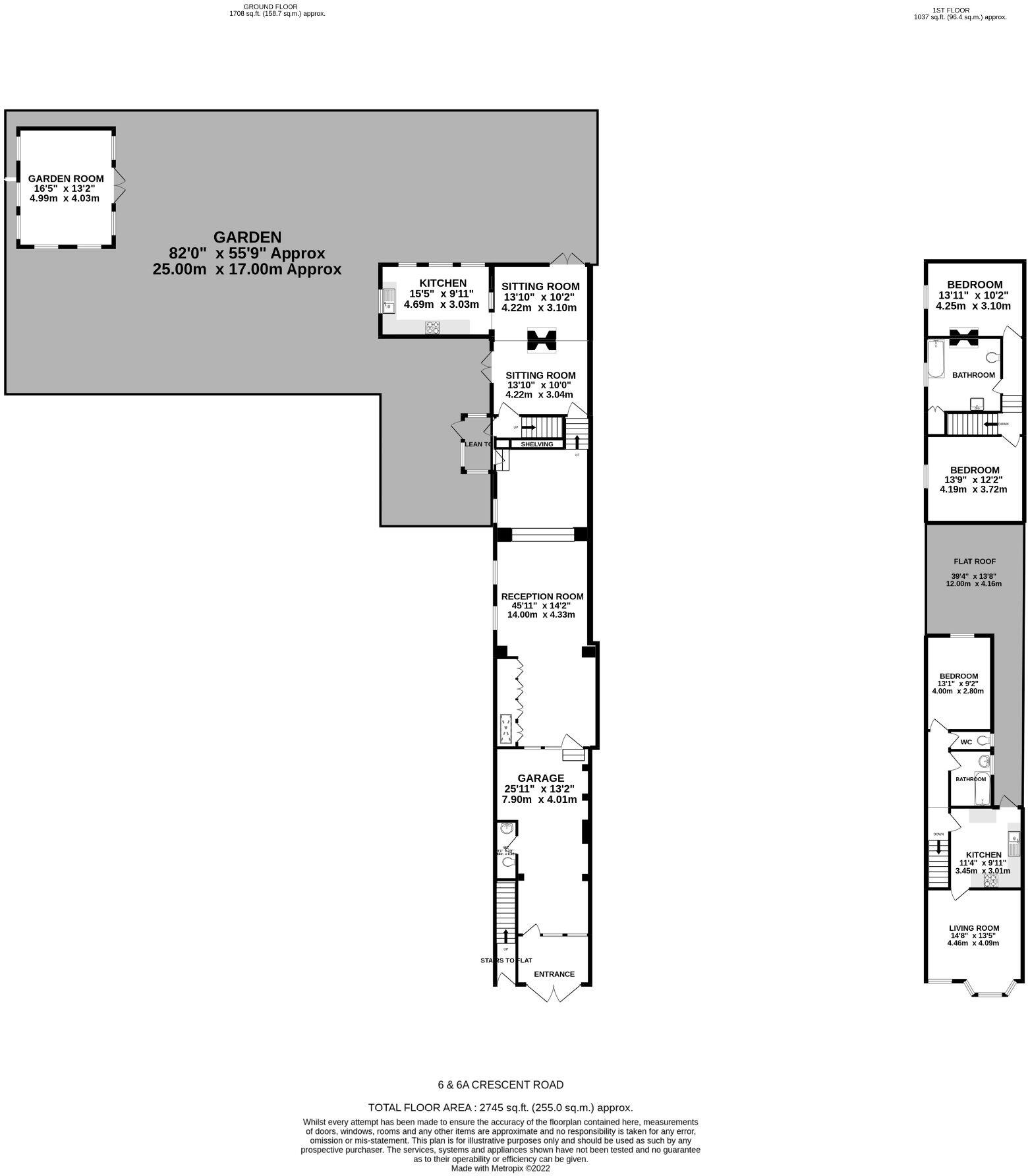
Exciting opportunity to purchase an absolutely unique property in Crescent Road, currently arranged as a house with extensive gardens, and self-contained flat. Extraordinary six-metre reception room.
Property Oracle says ..
This property is located in a popular area of Brighton, close to good schools and transport links. The property itself is a character property with a good size garden. While the property shows some signs of age, it is generally well maintained and in good condition. The list price is high compared to the average price per sqft in the area, but this is likely due to the property’s character, size, and location. Overall, this is a desirable property that would likely appeal to a wide range of buyers.
Therefore, we give this property 7 / 10. *Disclaimer: This is our option and does constitute a recommendation or financial advice. Do your own research. *
- Price
- 6
- Condition
- 7
- Location
- 9
- Land
- 8
- Bedrooms
- 3
- Bathrooms
- 2
- Sqft (est)
- 2,755.56
- Lot (est)
- 2,744.80
The heatmap indicates the level of crime in the area. The color of the heatmap indicates the crime severity and recency.
Metrics Year-on-Year
- Average area value
- 453,371.00 £Increased by 5.22 %
- Est sale value
- 1,992,269.88 £Increased by 35.39 %
- Average area rental value
- 1,827.00 £/moIncreased by 2.93 %
- Est letting value
- 5,511.12 £/moUnchanged by 0.00 %
- Est rental Yield
- 4.84 %Decreased by 2.02 %
- Crime Rate
- 1.00 %Unchanged by 0.00 %
Agent Activity
Knight & Knoxley created the listing.
Nearby Schools
| Name | Type | Ofsted | Distance |
|---|---|---|---|
| Downs Infant School | Community School | Outstanding | 0.26 KM |
| Downs Junior School | Community School | Outstanding | 0.43 KM |
| Preston Park Children'S Centre | Children's Centre Linked Site | 0.67 KM | |
| Fairlight Primary School | Community School | Good | 0.73 KM |
| Kings Brighton | Other Independent School | Good | 0.77 KM |
Images
Nearby Streets
| Name | Average Price | Average Sqft | Distance |
|---|---|---|---|
| St Paul's Street | £ 0 | 0 | 0.00 KM |
| Saint Paul's Street | £ 220,000 | 0 | 0.00 KM |
| St Martin's Place | £ 0 | 0 | 0.00 KM |
| St Andrews Close | £ 0 | 0 | 0.00 KM |
| Adams Close | £ 600,000 | 0 | 0.00 KM |
Nearby Transport
| Name | NLC | TLC | Distance |
|---|---|---|---|
| London Road (Brighton) | 5281 | LRB | 0.55 KM |
| Brighton | 5268 | BTN | 1.37 KM |
| Moulsecoomb | 5312 | MCB | 1.80 KM |
| Preston Park | 5285 | PRP | 2.81 KM |
| Hove | 5273 | HOV | 4.33 KM |
Nearby Listings
| Address | Price | Type | Score | Distance |
|---|---|---|---|---|
| Crescent Road, Brighton | £ 1,295,000 | BUY | 7 / 10 | 0.00 KM |
| Crescent Road, Brighton | £ 400,000 | BUY | 6 / 10 | 0.02 KM |
| Princes Road, Brighton | £ 575,000 | BUY | 6 / 10 | 0.03 KM |
| Crescent Road, Brighton | £ 275,000 | BUY | 6 / 10 | 0.03 KM |
| Crescent Road, BN2 | £ 395,000 | BUY | 6 / 10 | 0.05 KM |
Nearby Properties
| Address | Price | Distance |
|---|---|---|
| 17 Princes Road | £ 555,000 | 0.05 KM |
| 47 Princes Road | £ 265,000 | 0.05 KM |
| 29 Princes Road | £ 380,000 | 0.05 KM |
| 36c Princes Road | £ 492,000 | 0.05 KM |
| 10 Princes Road | £ 282,000 | 0.05 KM |