Addington Road, SOUTH CROYDON, Surrey, CR2
CH

Addington Road, SOUTH CROYDON, Surrey, CR2

By Choices

£ 578,950

Reviews

3 out of 5 stars

Choices says ..

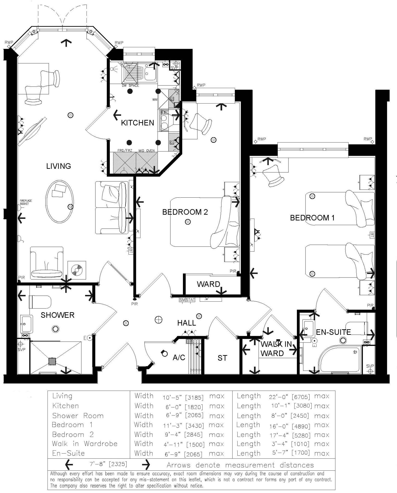
PRICES FROM £578,950 Exclusively for the over 60’s - a selection of BRAND NEW two bedroom RETIREMENT apartments, set in a charming development of 37 one and two bedroom retirement apartments with a beautiful secluded communal garden. Located in the heart of Selsdon, close t...

Property Oracle says ..

The property is a modern, well-maintained two-bedroom retirement apartment in a desirable location with good transport links and access to a communal garden. The list price requires further analysis of comparable retirement properties to determine its reasonableness.

Therefore, we give this property 7 / 10. *Disclaimer: This is our option and does constitute a recommendation or financial advice. Do your own research. *

Price
7
Condition
9
Location
8
Land
7
Bedrooms
2
Bathrooms
2
Sqft (est)
16,545.00

The heatmap indicates the level of crime in the area. The color of the heatmap indicates the crime severity and recency.

Metrics Year-on-Year

Average area value
1,268,750.00 £
Increased by 29.81 %
from 977,391.00 £
Est sale value
26,223,825.00 £
Increased by 115.35 %
from 12,177,120.00 £
Average area rental value
2,317.00 £/mo
Increased by 19.00 %
from 1,947.00 £/mo
Est letting value
33,090.00 £/mo
Increased by 100.00 %
from 16,545.00 £/mo
Est rental Yield
2.19 %
Decreased by 8.37 %
from 2.39 %
Crime Rate
5.00 %
Unchanged by 0.00 %
from 5.00 %

Agent Activity

  • Choices created the listing.

Nearby Schools

NameTypeOfstedDistance
Croydon High SchoolOther Independent School0.50 KM
Selsdon Primary And Nursery SchoolFoundation SchoolGood1.29 KM
Gresham Primary SchoolCommunity SchoolGood1.55 KM
Greenvale Primary SchoolCommunity SchoolGood1.61 KM
Sanderstead Children'S CentreChildren's Centre Linked Site1.63 KM

Images

Picture No. 16 Picture No. 11 Picture No. 24 Picture No. 12 Picture No. 18 Picture No. 09 Picture No. 14 Picture No. 13 Picture No. 27 Picture No. 22 Picture No. 17 Picture No. 19 Picture No. 20 Picture No. 10 Picture No. 15 Picture No. 28 Picture No. 26 Picture No. 23 Picture No. 25 Picture No. 23 Picture No. 25 Picture No. 21 Picture No. 22 Picture No. 24 Picture No. 27

Nearby Streets

NameAverage PriceAverage SqftDistance
Ferns Close £ 578,95000.00 KM
Addington Road £ 305,86500.00 KM
Mountwood Close £ 312,14300.00 KM
Cowley Close £ 000.00 KM
Pear Tree Close £ 425,00000.00 KM

Nearby Transport

NameNLCTLCDistance
Sanderstead5433SNR3.12 KM
Purley Oaks5430PUO3.66 KM
Riddlesdown5432RDD3.80 KM
South Croydon5410SCY3.84 KM
Whyteleafe5396WHY3.88 KM

Nearby Listings

AddressPriceTypeScoreDistance
Addington Road, SOUTH CROYDON, Surrey, CR2 £ 578,950BUY7 / 100.00 KM
Addington Road, South Croydon, CR2 8AY £ 499,950BUYUnknown0.00 KM
Addington Road, SOUTH CROYDON, Surrey, CR2 £ 374,950BUYUnknown0.00 KM
Addington Road, South Croydon, CR2 8AY £ 578,950BUY7 / 100.00 KM
Addington Road, South Croydon, CR2 £ 340,000BUYUnknown0.03 KM

Nearby Properties

AddressPriceDistance
67 Addington Road £ 415,0000.03 KM
3 Upper Selsdon Road £ 409,0000.13 KM
13 Upper Selsdon Road £ 300,0000.13 KM
17 Upper Selsdon Road £ 410,0000.13 KM
19 Upper Selsdon Road £ 405,0000.13 KM