Northenden Road, Sale, Manchester, M33
By Philip James Kennedy
£ 2,750,000
Reviews
2 out of 5 stars
Philip James Kennedy says ..
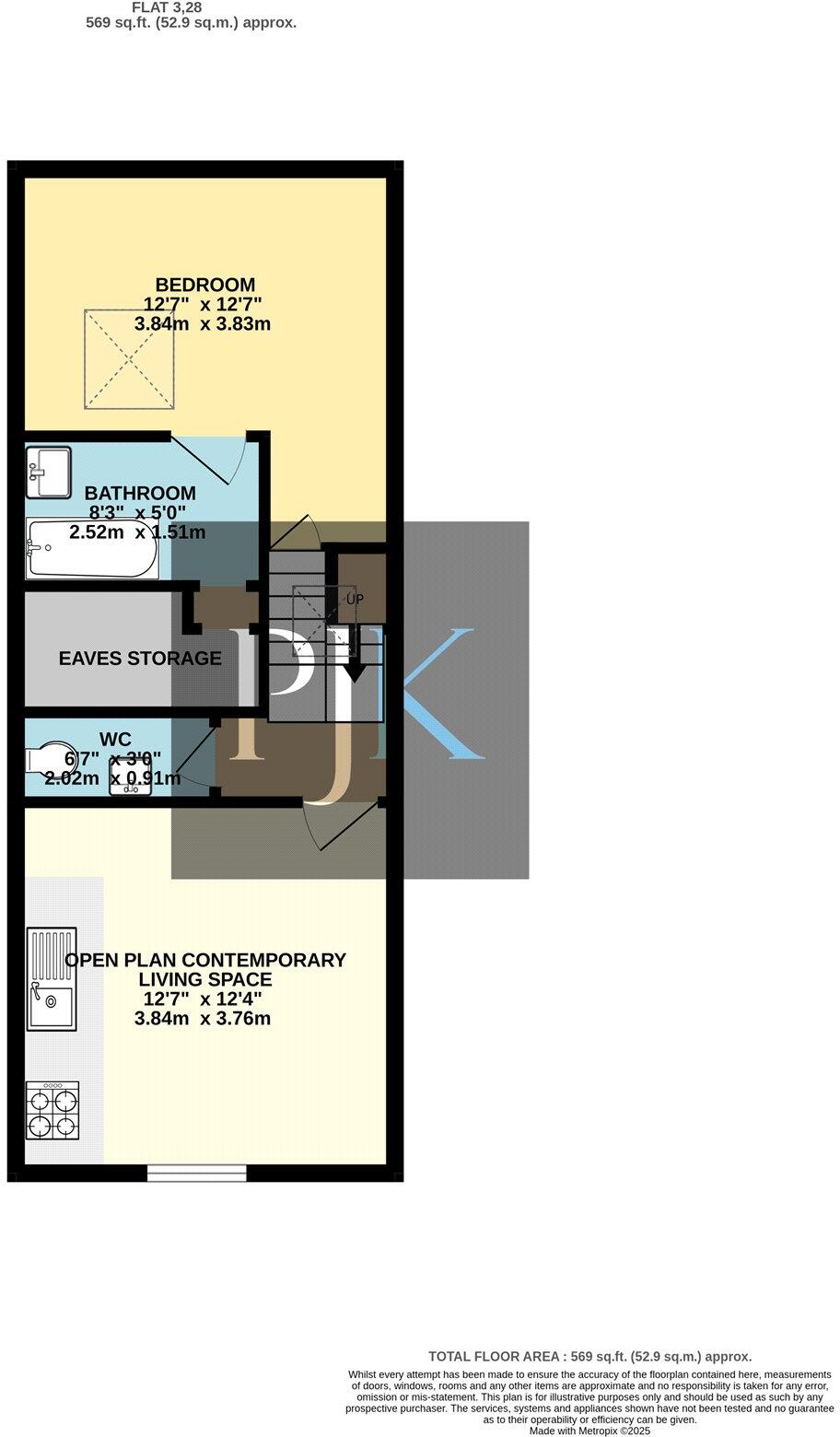
A FANTASTIC OPPORTUNITY to acquire a PRIME DEVELOPMENT consisting of FOUR, THREE-STOREY HOUSES that have been CONVERTED TO PROVIDE TWELVE APARTMENTS, with additional UNCONVERTED CELLARS, spanning the foot print of the buildings, currently achieving a yearly rental income of £107,316, with O...
Property Oracle says ..
Therefore, we give this property 5 / 10. *Disclaimer: This is our option and does constitute a recommendation or financial advice. Do your own research. *
- Price
- 1
- Condition
- 3
- Location
- 8
- Land
- 8
- Bedrooms
- 18
- Bathrooms
- 12
- Sqft (est)
- 1,104.00
The heatmap indicates the level of crime in the area. The color of the heatmap indicates the crime severity and recency.
Metrics Year-on-Year
- Average area value
- 456,240.00 £Increased by 13.67 %
- Est sale value
- 407,376.00 £Decreased by 7.29 %
- Average area rental value
- 1,149.00 £/moDecreased by 10.09 %
- Est letting value
- 0.00 £/moDecreased by 100.00 %
- Est rental Yield
- 3.02 %Decreased by 20.94 %
- Crime Rate
- 0.00 %
from 401,367.00 £
from 439,392.00 £
from 1,278.00 £/mo
from 1,104.00 £/mo
from 3.82 %
from 0.00 %
Agent Activity
Philip James Kennedy created the listing.
Nearby Schools
| Name | Type | Ofsted | Distance |
|---|---|---|---|
| St Joseph'S Catholic Primary School | Voluntary Aided School | Outstanding | 0.34 KM |
| Springfield Primary School | Community School | Outstanding | 0.47 KM |
| Sale Grammar School | Academy Converter | 0.61 KM | |
| St Anne'S Cofe Primary School | Voluntary Aided School | Good | 0.91 KM |
| Templemoor Infant And Nursery School | Community School | Outstanding | 1.44 KM |
Images
Nearby Streets
| Name | Average Price | Average Sqft | Distance |
|---|---|---|---|
| Euan Place | £ 0 | 0 | 0.00 KM |
| Brook Street | £ 0 | 0 | 0.00 KM |
| Bank Street | £ 220,000 | 0 | 0.00 KM |
| Highfield | £ 0 | 0 | 0.00 KM |
| Albert Road | £ 0 | 0 | 0.00 KM |
Nearby Transport
| Name | NLC | TLC | Distance |
|---|---|---|---|
| Humphrey Park | 2937 | HUP | 3.44 KM |
| Trafford Park | 2969 | TRA | 3.54 KM |
| Navigation Road | 2940 | NVR | 4.34 KM |
| Urmston | 2938 | URM | 4.99 KM |
| Manchester United Football Ground | 2996 | MUF | 5.15 KM |
Nearby Listings
| Address | Price | Type | Score | Distance |
|---|---|---|---|---|
| Northenden Road, Sale, Manchester, M33 | £ 2,750,000 | BUY | 5 / 10 | 0.00 KM |
| Bakersfield Place, Sale | £ 215,000 | BUY | 5 / 10 | 0.09 KM |
| 1 Bakersfield Place, Sale | £ 160,000 | BUY | 6 / 10 | 0.09 KM |
| Bakersfield Place, Sale, Greater Manchester, M33 | £ 215,000 | BUY | 6 / 10 | 0.09 KM |
| 1 Bakersfield Place, Sale | £ 175,000 | BUY | 6 / 10 | 0.10 KM |
Nearby Properties
| Address | Price | Distance |
|---|---|---|
| 38 Northenden Road | £ 250,000 | 0.03 KM |
| 40 Northenden Road | £ 405,000 | 0.03 KM |
| 2 Stamford Place | £ 115,000 | 0.11 KM |
| 2a Stamford Place | £ 575,000 | 0.11 KM |
| 1 Stamford Place | £ 210,000 | 0.11 KM |