DEVELOPMENT OPPORTUNITY | DURSLEY
HO

DEVELOPMENT OPPORTUNITY | DURSLEY

By Hollis Morgan Auctions

£ 235,000

Reviews

2 out of 5 stars

Hollis Morgan Auctions says ..

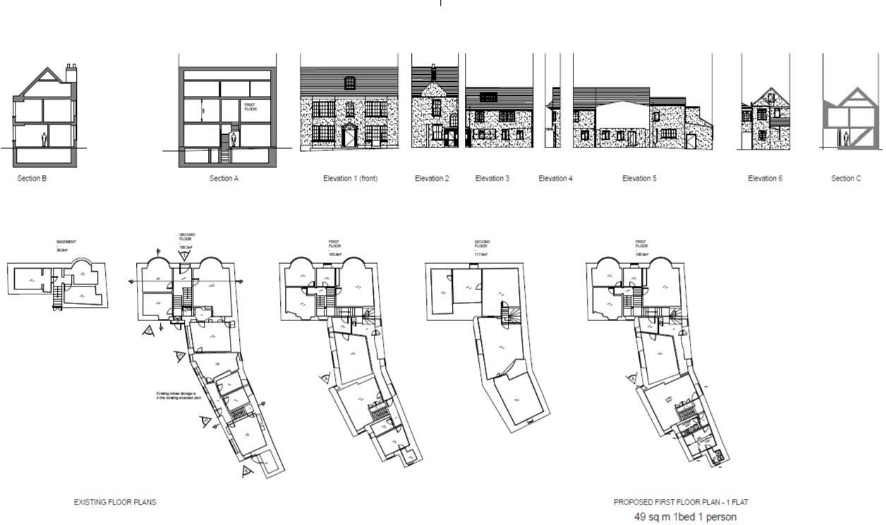
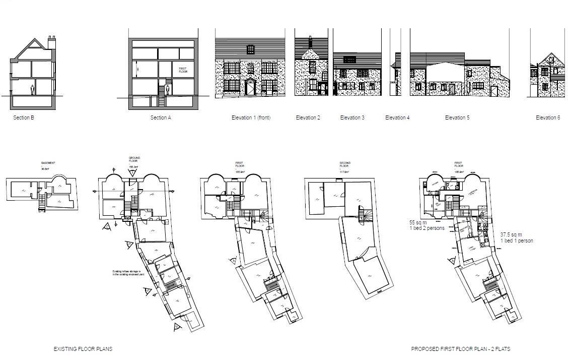
Hollis Morgan – APRIL LIVE ONLINE AUCTION – A Freehold DEVELOPMENT OPPORTUNITY comprising GRADE II LISTED PROPERTY ( 4774 Sq Ft ) with RESI PLANNING for FLAT CONVERSION.

Property Oracle says ..

The property is located on Long Street, Dursley, Gloucestershire, which is in the South West district of England. Dursley itself benefits from a relatively central location within Gloucestershire, with good access to nearby towns and cities. The train station, Cam and Dursley, is approximately 4.06km away offering a rail connection. Several schools are within a reasonable distance, including Rednock School and Dursley Church of England Primary Academy, both rated ‘Good’ by Ofsted. However, Peak Academy is noted as having ‘Serious Weaknesses’, which may be a factor for some buyers. The proximity to local amenities and transport links suggests a reasonably convenient location.

Based on the provided images, the property appears to be in need of significant renovation. The interior shows dated fixtures, worn carpets, and some signs of damage to walls and ceilings. The exterior, while showing some period features, also suggests a need for updating and maintenance. The overall condition is far from excellent, indicating substantial work would be required to bring it up to modern standards.

The plot size is listed as 0.00 sqft, suggesting there is very little or no outdoor space associated with the property. This is a significant drawback, especially considering the average plot size in the area.

The list price of £235,000 is slightly below the average house price in the area (£245,826). However, considering the property’s condition and lack of land, the price may appear slightly high. The average price per square foot in the area is £251, but the lack of plot size information for comparable properties makes a definitive price per square foot comparison difficult. The property needs substantial renovation, which would add significantly to the overall cost. Therefore, while the list price is near the average, the necessary renovations could make the property less attractive from a value-for-money perspective. A thorough survey and cost estimate for renovations are essential before determining the true value.

Therefore, we give this property 4 / 10. *Disclaimer: This is our option and does constitute a recommendation or financial advice. Do your own research. *

Price
5
Condition
3
Location
7
Land
1
Bedrooms
5
Bathrooms
5
Sqft (est)
527.43

The heatmap indicates the level of crime in the area. The color of the heatmap indicates the crime severity and recency.

Metrics Year-on-Year

Average area value
251,538.00 £
Increased by 21.55 %
from 206,948.00 £
Est sale value
109,178.01 £
Decreased by 4.17 %
from 113,924.88 £
Average area rental value
754.00 £/mo
Decreased by 18.22 %
from 922.00 £/mo
Est letting value
0.00 £/mo
from 0.00 £/mo
Est rental Yield
3.60 %
Decreased by 32.71 %
from 5.35 %
Crime Rate
62.00 %
Unchanged by 0.00 %
from 62.00 %

Agent Activity

  • Hollis Morgan Auctions created the listing.

Nearby Schools

NameTypeOfstedDistance
Rednock SchoolFoundation SchoolGood0.69 KM
Peak AcademyAcademy Special Sponsor LedSerious Weaknesses0.93 KM
Treetops Children'S CentreChildren's Centre1.26 KM
Dursley Church Of England Primary AcademyAcademy Sponsor LedGood1.26 KM
Cam Everlands Primary SchoolCommunity SchoolGood1.60 KM

Images

26 Long Street, Dursley GL11 4JA | Freehold Develo 26 Long Street, Dursley GL11 4JA | Freehold Develo 26 Long Street, Dursley GL11 4JA | Freehold Develo 26 Long Street, Dursley GL11 4JA | Freehold Develo 26 Long Street, Dursley GL11 4JA | Freehold Develo 26 Long Street, Dursley GL11 4JA | Freehold Develo 26 Long Street, Dursley GL11 4JA | Freehold Develo 26 Long Street, Dursley GL11 4JA | Freehold Develo 26 Long Street, Dursley GL11 4JA | Freehold Develo 26 Long Street, Dursley GL11 4JA | Freehold Develo 26 Long Street, Dursley GL11 4JA | Freehold Develo 26 Long Street, Dursley GL11 4JA | Freehold Develo 26 Long Street, Dursley GL11 4JA | Freehold Develo 26 Long Street, Dursley GL11 4JA | Freehold Develo C26 Long Street, Dursley GL11 4JA | Freehold Devel 26 Long Street, Dursley GL11 4JA | Freehold Develo 26 Long Street, Dursley GL11 4JA | Freehold Develo 26 Long Street, Dursley GL11 4JA | Freehold Develo 26 Long Street, Dursley GL11 4JA | Freehold Develo 26 Long Street, Dursley GL11 4JA | Freehold Develo 26 Long Street, Dursley GL11 4JA | Freehold Develo 26 Long Street, Dursley GL11 4JA | Freehold Develo 26 Long Street, Dursley GL11 4JA | Freehold Develo 26 Long Street, Dursley GL11 4JA | Freehold Develo 26 Long Street, Dursley GL11 4JA | Freehold Develo 26 Long Street, Dursley GL11 4JA | Freehold Develo 26 Long Street, Dursley GL11 4JA | Freehold Develo 26 Long Street, Dursley GL11 4JA | Freehold Develo 26 Long Street, Dursley GL11 4JA | Freehold Develo 26 Long Street, Dursley GL11 4JA | Freehold Develo 26 Long Street, Dursley GL11 4JA | Freehold Develo 26 Long Street, Dursley GL11 4JA | Freehold Develo 26 Long Street, Dursley GL11 4JA | Freehold Develo 26 Long Street, Dursley GL11 4JA | Freehold Develo 26 Long Street, Dursley GL11 4JA | Freehold Develo 26 Long Street, Dursley GL11 4JA | Freehold Develo 26 Long Street, Dursley GL11 4JA | Freehold Develo 26 Long Street, Dursley GL11 4JA | Freehold Develo 26 Long Street, Dursley GL11 4JA | Freehold Develo 26 Long Street, Dursley GL11 4JA | Freehold Develo 26 Long Street, Dursley GL11 4JA | Freehold Develo 26 Long Street, Dursley GL11 4JA | Freehold Develo 26 Long Street, Dursley GL11 4JA | Freehold Develo 26 Long Street, Dursley GL11 4JA | Freehold Develo 26 Long Street, Dursley GL11 4JA | Freehold Develo Hollis Morgan Live Online Auctions How to Register Hollis Morgan Live Online Land and Property Auctio

Nearby Streets

NameAverage PriceAverage SqftDistance
Foundry Rise £ 377,99500.00 KM
Bull Pitch £ 231,50000.00 KM
Champions Court £ 75,00000.00 KM
Castle Street £ 000.00 KM
Victoria Close £ 49,00000.00 KM

Nearby Transport

NameNLCTLCDistance
Cam And Dursley3238CDU4.06 KM

Nearby Listings

AddressPriceTypeScoreDistance
DEVELOPMENT OPPORTUNITY | DURSLEY £ 235,000BUY4 / 100.00 KM
Long Street, Dursley £ 110,000BUY6 / 100.05 KM
Hill Court, Silver Street, Dursley, GL11 4ND £ 230,000BUY6 / 100.08 KM
Broadwell, Dursley, GL11 £ 350,000BUY5 / 100.10 KM
DEVELOPMENT OPPORTUNITY | DURSLEY £ 185,000BUYUnknown0.14 KM

Nearby Properties

AddressPriceDistance
39a Long Street £ 293,0000.07 KM
59 Long Street £ 235,0000.07 KM
5 Broadwell £ 230,0000.09 KM
The Old Tavern £ 197,0000.10 KM
29 Silver Street £ 189,0000.10 KM