WO
Palmerston Street, Romsey, Hampshire, SO51
By Woolley & Wallis
£ 1,600,000
Reviews
4 out of 5 stars
Woolley & Wallis says ..
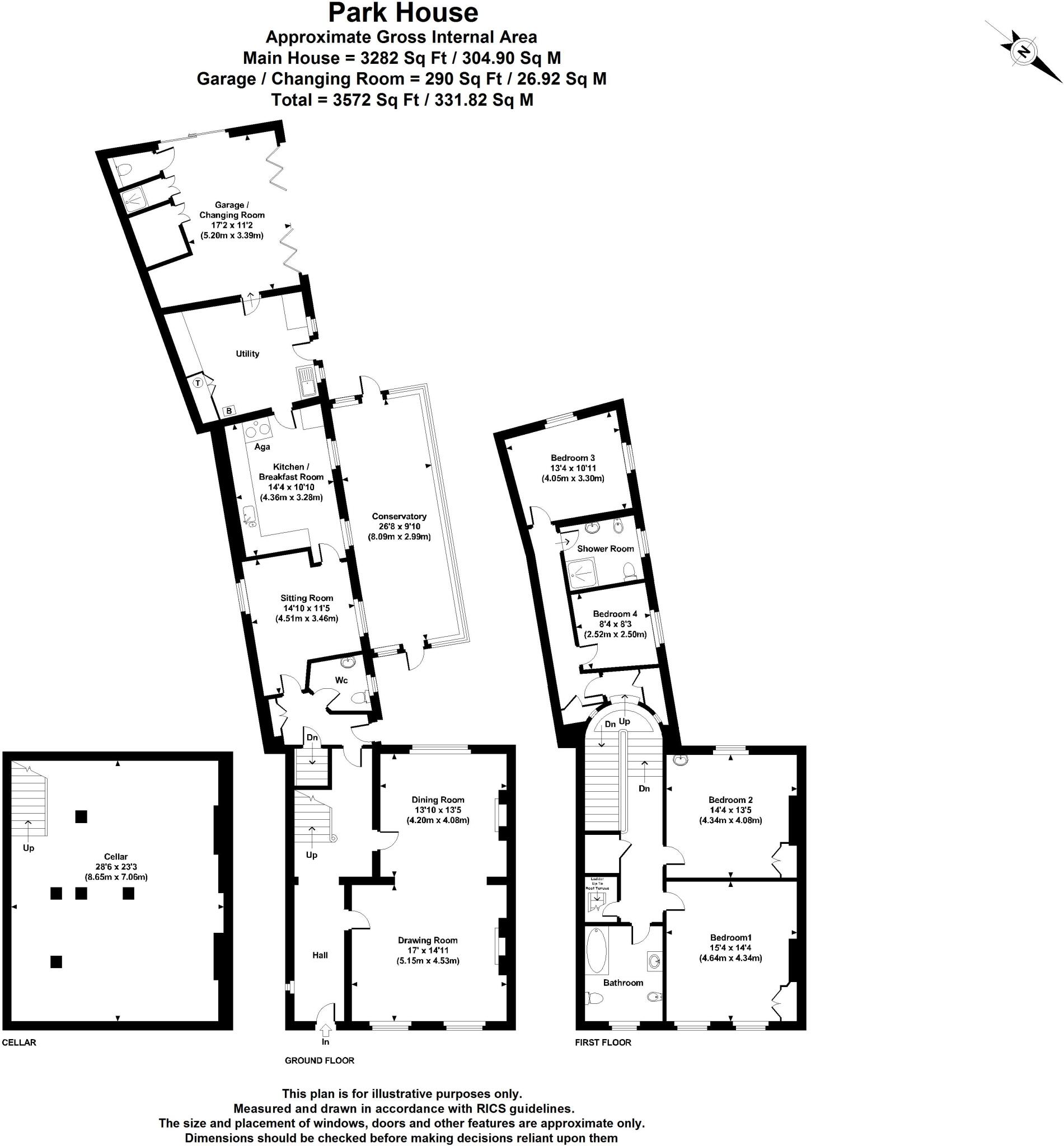
Unarguably, one of Romsey's finest, most substantial detached houses. A landmark Grade II Listed home with a generous, private walled garden and extensive parking options.
Property Oracle says ..
Therefore, we give this property 8 / 10. *Disclaimer: This is our option and does constitute a recommendation or financial advice. Do your own research. *
- Price
- 8
- Condition
- 8
- Location
- 9
- Land
- 7
- Bedrooms
- 4
- Bathrooms
- 2
- Sqft (est)
- 3,572.00
The heatmap indicates the level of crime in the area. The color of the heatmap indicates the crime severity and recency.
Metrics Year-on-Year
- Average area value
- 448,750.00 £Increased by 2.42 %
- Est sale value
- 1,696,700.00 £Increased by 3.94 %
- Average area rental value
- 1,316.00 £/moDecreased by 2.37 %
- Est letting value
- 3,572.00 £/moUnchanged by 0.00 %
- Est rental Yield
- 3.52 %Decreased by 4.61 %
- Crime Rate
- 29.00 %Unchanged by 0.00 %
from 438,143.00 £
from 1,632,404.00 £
from 1,348.00 £/mo
from 3,572.00 £/mo
from 3.69 %
from 29.00 %
Agent Activity
Woolley & Wallis created the listing.
Nearby Schools
| Name | Type | Ofsted | Distance |
|---|---|---|---|
| Romsey Abbey Church Of England Primary School | Voluntary Aided School | Good | 0.73 KM |
| The Romsey School | Academy Converter | Good | 0.82 KM |
| Romsey Primary School | Community School | Good | 1.30 KM |
| Little Oaks And Sunshine Children'S Centre | Children's Centre | 1.37 KM | |
| Cupernham Junior School | Community School | Good | 2.23 KM |
Images
Nearby Streets
| Name | Average Price | Average Sqft | Distance |
|---|---|---|---|
| Tee Court Arcade | £ 165,000 | 0 | 0.00 KM |
| Jubilee Road | £ 318,750 | 0 | 0.00 KM |
| Tadbourne Walk | £ 111,875 | 0 | 0.00 KM |
| Station Approach | £ 0 | 0 | 0.00 KM |
| Green Hill View | £ 0 | 0 | 0.00 KM |
Nearby Transport
| Name | NLC | TLC | Distance |
|---|---|---|---|
| Romsey | 5943 | ROM | 0.58 KM |
| Mottisfont And Dunbridge | 5944 | DBG | 7.59 KM |
| Totton | 5921 | TTN | 7.97 KM |
| Redbridge | 5912 | RDB | 8.12 KM |
Nearby Listings
| Address | Price | Type | Score | Distance |
|---|---|---|---|---|
| Palmerston Street, Romsey, Hampshire, SO51 | £ 1,600,000 | BUY | 8 / 10 | 0.00 KM |
| Palmerston Street, Romsey, SO51 | £ 1,495,000 | BUY | 8 / 10 | 0.01 KM |
| Palmerston Street, Romsey Town Centre, Hampshire | £ 415,000 | BUY | 6 / 10 | 0.04 KM |
| The Hundred, Romsey, Hampshire, SO51 | £ 550,000 | BUY | 6 / 10 | 0.05 KM |
| Broadwater Road, Romsey, Hampshire, SO51 | £ 495,950 | BUY | Unknown | 0.06 KM |
Nearby Properties
| Address | Price | Distance |
|---|---|---|
| 3 - 5 Palmerston Street | £ 200,000 | 0.01 KM |
| 1 Palmerston Street | £ 295,000 | 0.01 KM |
| 13 Palmerston Street | £ 558,000 | 0.01 KM |
| 55 The Hundred | £ 250,000 | 0.07 KM |
| 2 Palmerston Street | £ 278,000 | 0.08 KM |