Calder Road, Blackpool, Lancashire, FY2
By Independent Estate Agency
£ 205,000
Reviews
3 out of 5 stars
Independent Estate Agency says ..
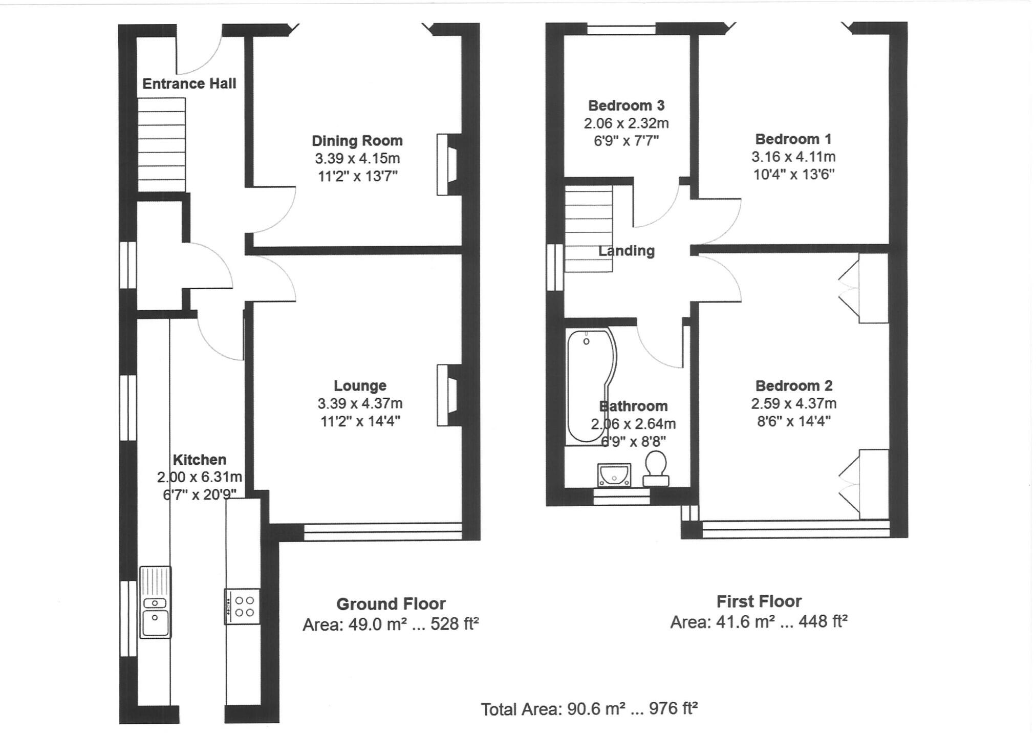
Extremely Well Presented Semi Detached Family Home, 3 Bedrooms, Lounge, 20ft Modern Breakfast Kitchen, Dining Room, Modern Bathroom, 'Combi' Gas Central Heating, UPVC Double Glazing, Driveway Parking, Well Maintained Garden Areas to Front & Rear, Good Established Residential Location.
Property Oracle says ..
This is a 3-bedroom semi-detached property located on Calder Road, Blackpool. The property is in good condition, with a modern interior and a well-maintained garden. The property is located close to local schools and transport links. The listing price seems reasonable given the property’s condition, location, and size.
Therefore, we give this property 7 / 10. *Disclaimer: This is our option and does constitute a recommendation or financial advice. Do your own research. *
- Price
- 8
- Condition
- 8
- Location
- 7
- Land
- 7
- Bedrooms
- 3
- Bathrooms
- 1
- Sqft (est)
- 975.21
The heatmap indicates the level of crime in the area. The color of the heatmap indicates the crime severity and recency.
Metrics Year-on-Year
- Average area value
- 184,997.00 £Increased by 10.26 %
- Est sale value
- 200,893.26 £Increased by 42.07 %
- Average area rental value
- 800.00 £/moIncreased by 8.55 %
- Est letting value
- 0.00 £/mo
- Est rental Yield
- 5.19 %Decreased by 1.52 %
- Crime Rate
- 0.00 %
Agent Activity
Independent Estate Agency created the listing.
Nearby Schools
| Name | Type | Ofsted | Distance |
|---|---|---|---|
| Langdale Free School | Free Schools | Good | 0.53 KM |
| Holy Family Catholic Primary School | Voluntary Aided School | Good | 0.61 KM |
| Unity College Blackpool Children'S Centre | Children's Centre Linked Site | 0.66 KM | |
| Unity Academy Blackpool | Academy Sponsor Led | Good | 0.69 KM |
| Westminster Primary Academy | Academy Converter | 0.99 KM |
Images
Nearby Streets
| Name | Average Price | Average Sqft | Distance |
|---|---|---|---|
| Argyll Court | £ 172,500 | 0 | 0.00 KM |
| Tower View | £ 0 | 0 | 0.00 KM |
| Regency Gardens | £ 227,500 | 0 | 0.00 KM |
| Westminster Road | £ 0 | 0 | 0.00 KM |
| Carlton Grove | £ 0 | 0 | 0.00 KM |
Nearby Transport
| Name | NLC | TLC | Distance |
|---|---|---|---|
| Layton (Lancs) | 2669 | LAY | 1.74 KM |
| Blackpool North | 2739 | BPN | 1.86 KM |
| Blackpool South | 2740 | BPS | 4.41 KM |
| Blackpool Pleasure Beach | 2738 | BPB | 5.66 KM |
| Poulton-Le-Fylde | 2671 | PFY | 6.17 KM |
Nearby Listings
| Address | Price | Type | Score | Distance |
|---|---|---|---|---|
| Calder Road, Blackpool, Lancashire, FY2 | £ 205,000 | BUY | 7 / 10 | 0.00 KM |
| Calder Road, North Shore, FY2 | £ 219,950 | BUY | 7 / 10 | 0.04 KM |
| Pierston Avenue, Bispham | £ 179,950 | BUY | 6 / 10 | 0.14 KM |
| Shaftesbury Avenue, Blackpool, Lancashire, FY2 | £ 279,950 | BUY | 6 / 10 | 0.15 KM |
| Pierston Avenue, North Shore, FY2 | £ 175,000 | BUY | Unknown | 0.16 KM |
Nearby Properties
| Address | Price | Distance |
|---|---|---|
| 59 Calder Road | £ 145,000 | 0.00 KM |
| 44 Calder Road | £ 155,000 | 0.00 KM |
| 49 Calder Road | £ 185,000 | 0.00 KM |
| 48 Calder Road | £ 160,000 | 0.00 KM |
| 60 Calder Road | £ 147,500 | 0.00 KM |