Yopa says ..
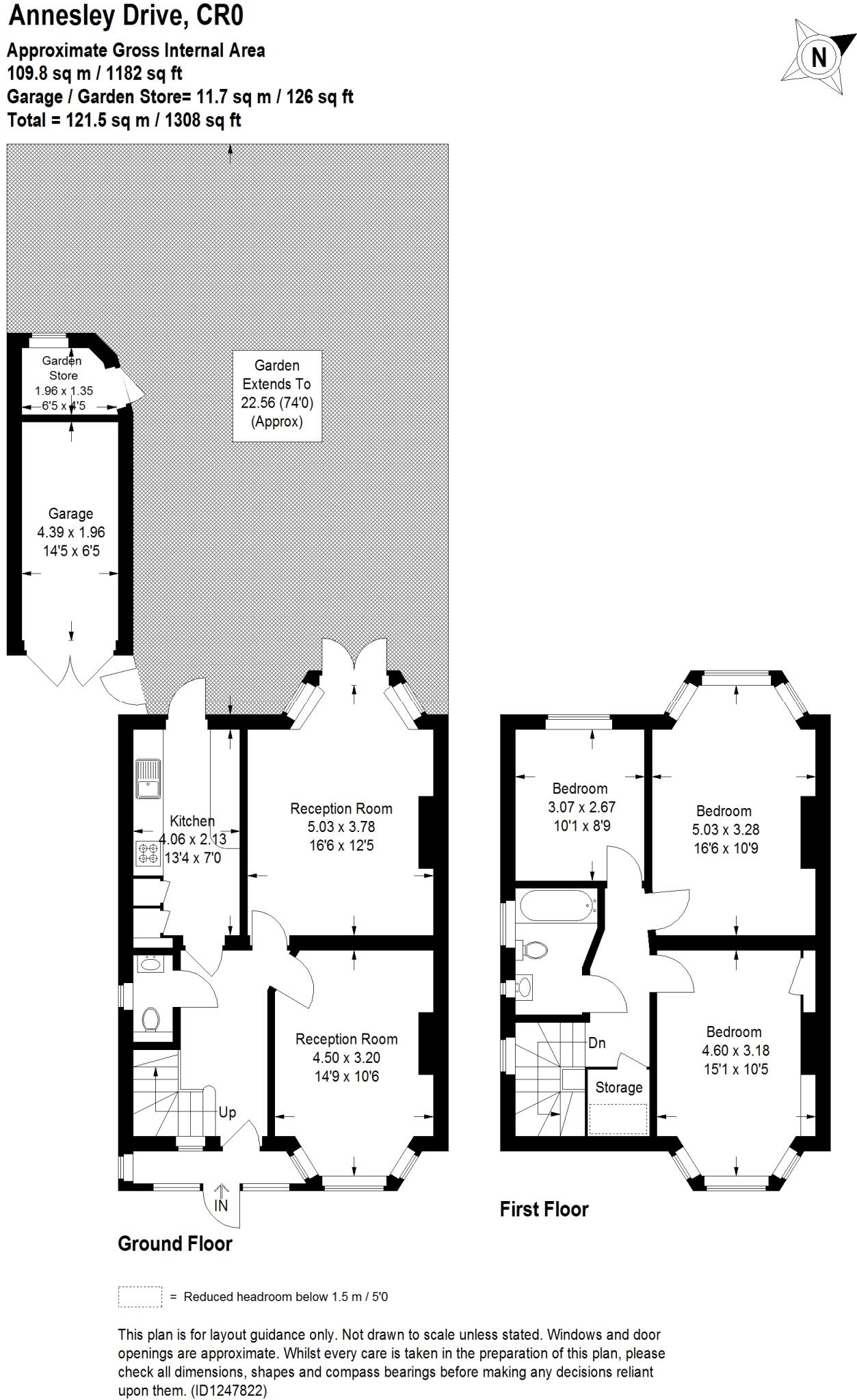
Do not miss out on this 1930s semi in sought-after South Shirley - An upgraded family home with potential: entrance hall, downstairs WC, 2 receptions, modern kitchen, 3 bedrooms upstairs, modern shower room. A spacious garden, garage and parking for 3 cars on a super quiet residential road.
Property Oracle says ..
This is a three-bedroom semi-detached house located in Shirley South, Croydon. The property is in good condition, with modern fixtures and fittings. It benefits from a decent-sized garden and is located close to several schools. The property is listed for £650,000, which is slightly above the average for the area. Overall, this is a well-presented property in a desirable location.
Therefore, we give this property 7 / 10. *Disclaimer: This is our option and does constitute a recommendation or financial advice. Do your own research. *
- Price
- 6
- Condition
- 8
- Location
- 7
- Land
- 7
- Bedrooms
- 3
- Bathrooms
- 1
- Sqft (est)
- 1,181.88
- Lot (est)
- 1,307.82
The heatmap indicates the level of crime in the area. The color of the heatmap indicates the crime severity and recency.
Metrics Year-on-Year
- Average area value
- 543,800.00 £Increased by 17.00 %
- Est sale value
- 634,669.56 £Increased by 32.27 %
- Average area rental value
- 1,669.00 £/moDecreased by 26.99 %
- Est letting value
- 1,181.88 £/moDecreased by 50.00 %
- Est rental Yield
- 3.68 %Decreased by 37.63 %
- Crime Rate
- 4.00 %Unchanged by 0.00 %
Agent Activity
Yopa created the listing.
Nearby Schools
| Name | Type | Ofsted | Distance |
|---|---|---|---|
| Shirley Children'S Centre | Children's Centre | 0.46 KM | |
| Forest Academy | Academy Converter | Requires improvement | 0.57 KM |
| Harris Primary Academy Benson | Academy Sponsor Led | Good | 0.90 KM |
| Beckmead Park Academy | Academy Special Converter | 1.41 KM | |
| Shirley High School Performing Arts College | Academy Converter | Requires improvement | 1.65 KM |
Images
Nearby Streets
| Name | Average Price | Average Sqft | Distance |
|---|---|---|---|
| Douglas Drive | £ 700,000 | 0 | 0.00 KM |
| Popes Grove | £ 0 | 0 | 0.00 KM |
| Worcester Close | £ 0 | 0 | 0.00 KM |
| Graham Close | £ 595,000 | 0 | 0.00 KM |
| Lake Road | £ 0 | 0 | 0.00 KM |
Nearby Transport
| Name | NLC | TLC | Distance |
|---|---|---|---|
| Eden Park | 5056 | EDN | 2.59 KM |
| West Wickham | 5054 | WWI | 2.65 KM |
| Elmers End | 5049 | ELE | 3.75 KM |
| Clock House | 5048 | CLK | 4.54 KM |
| Birkbeck | 5401 | BIK | 4.61 KM |
Nearby Listings
| Address | Price | Type | Score | Distance |
|---|---|---|---|---|
| Annesley Drive, Croydon, CR0 | £ 650,000 | BUY | 7 / 10 | 0.00 KM |
| Annesley Drive, Shirley | £ 575,000 | BUY | 6 / 10 | 0.06 KM |
| Lime Tree Grove, Shirley | £ 600,000 | BUY | 7 / 10 | 0.11 KM |
| Palace View, Croydon, CR0 | £ 660,000 | BUY | 6 / 10 | 0.13 KM |
| Palace View, Croydon | £ 650,000 | BUY | 6 / 10 | 0.13 KM |
Nearby Properties
| Address | Price | Distance |
|---|---|---|
| 13 Annesley Drive | £ 137,000 | 0.01 KM |
| 27 Annesley Drive | £ 565,000 | 0.01 KM |
| 19 Annesley Drive | £ 530,000 | 0.01 KM |
| 16 Annesley Drive | £ 282,500 | 0.01 KM |
| 17 Annesley Drive | £ 385,000 | 0.01 KM |