1-59 Merchant Avenue, Exmouth, Devon, EX8 2GG
MC

1-59 Merchant Avenue, Exmouth, Devon, EX8 2GG

By McCarthy Stone

£ 127,500

Reviews

3 out of 5 stars

McCarthy Stone says ..

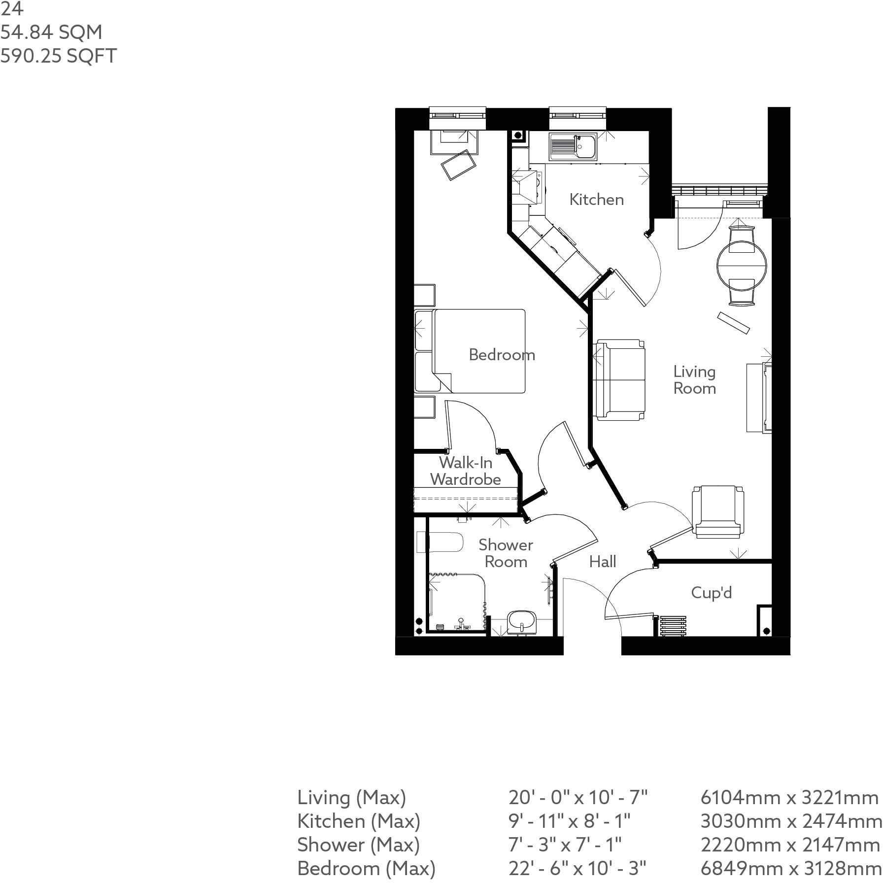
Apartment 24 is a beautiful one-bedroom apartment at our stunning The Curlews development in Exmouth.

Property Oracle says ..

The property is a well-maintained retirement property located in a desirable area of Exmouth, Devon. The condition of the property appears excellent, based on the provided images. While the plot size is relatively small, the property benefits from access to communal green spaces. The list price seems reasonable in comparison to other similar retirement properties in the area, considering its condition and location, although a precise valuation is difficult without knowing the property’s square footage.

Therefore, we give this property 7 / 10. *Disclaimer: This is our option and does constitute a recommendation or financial advice. Do your own research. *

Price
7
Condition
10
Location
8
Land
6
Bedrooms
1
Bathrooms
0
Lot (est)
590.25

The heatmap indicates the level of crime in the area. The color of the heatmap indicates the crime severity and recency.

Metrics Year-on-Year

Average area value
322,940.00 £
Decreased by 9.74 %
from 357,789.00 £
Average area rental value
1,284.00 £/mo
Increased by 22.29 %
from 1,050.00 £/mo
Est rental Yield
4.77 %
Increased by 35.51 %
from 3.52 %
Crime Rate
8.00 %
Unchanged by 0.00 %
from 8.00 %

Agent Activity

  • McCarthy Stone created the listing.

Nearby Schools

NameTypeOfstedDistance
Bassetts Farm Primary SchoolFoundation SchoolGood0.68 KM
Littleham Church Of England Primary SchoolVoluntary Controlled SchoolRequires improvement0.97 KM
Marpool Primary SchoolFoundation SchoolGood1.13 KM
Exmouth & District Children'S CentreChildren's Centre1.31 KM
Brixington Primary AcademyAcademy Sponsor LedRequires improvement1.59 KM

Images

Show home living room Show home walk-in wardrobe Show home kitchen EPC The Curlews Exterior Show home living room Show home bedroom Show home shower room Guest suite Communal gardens Bistro Wellbeing suite Communal lounge Show home bedroom Show home kitchen Show home shower room Exterior Communal gardens Show home living room Show home living room Show home walk-in wardrobe Communal lounge Bistro Domestic support and personal care available Domestic support and personal care available EPC EPC

Nearby Streets

NameAverage PriceAverage SqftDistance
Wade Close £ 000.00 KM
The Crescent £ 000.00 KM
Copperfield Close £ 385,00000.00 KM
Buckeridge Road £ 264,00000.00 KM
Sutton Road £ 279,95000.00 KM

Nearby Transport

NameNLCTLCDistance
Exmouth5756EXM3.48 KM
Lympstone Village5761LYM5.65 KM
Starcross3413SCS7.03 KM
Dawlish Warren3409DWW7.33 KM
Lympstone Commando5762LYC7.33 KM

Nearby Listings

AddressPriceTypeScoreDistance
1-59 Merchant Avenue, Exmouth, Devon, EX8 2GG £ 364,000BUY7 / 100.00 KM
1-59 Merchant Avenue, Exmouth, Devon, EX8 2GG £ 302,500BUY8 / 100.00 KM
1-59 Merchant Avenue, Exmouth, Devon, EX8 2GG £ 127,500BUY7 / 100.00 KM
1-59 Merchant Avenue, Exmouth, Devon, EX8 2GG £ 182,500BUY7 / 100.00 KM
1-59 Merchant Avenue, Exmouth, Devon, EX8 2GG £ 449,500BUY6 / 100.01 KM

Nearby Properties

AddressPriceDistance
100 Salterton Road £ 223,4500.13 KM
146c Salterton Road £ 166,0000.13 KM
154 Salterton Road £ 145,0000.13 KM
106 Salterton Road £ 275,0000.13 KM
146 Salterton Road £ 170,0000.13 KM