Hillview Drive, Hucclecote, Gloucester
By Naylor Powell
£ 300,000
Reviews
3 out of 5 stars
Naylor Powell says ..
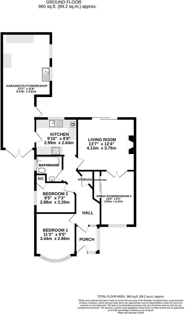
This well-presented property benefits from off-road parking, a good-sized, well tended south-facing garden, and being chain-free. One of the standout features of this property is the larger than average garage, which also doubles up as a workshop and utility room. Situated in a popular location, ...
Property Oracle says ..
This semi-detached bungalow in Hucclecote, Gloucester is listed at £300,000. The property has two bedrooms and one bathroom, and is 842.21 square feet in size. It is situated on a plot of 960 square feet. The average price for properties in the area is £337,041, with an average price per square foot of £289. Considering the property’s size and condition, the list price appears to be relatively reasonable compared to other nearby properties. The property benefits from being close to several well-regarded schools, including Hillview Primary School, Dinglewell Junior School, and Dinglewell Infant School, all within a short distance. The location also offers convenient access to Gloucester city centre which is approximately 5.56 km away. The property includes a garden, which adds to its appeal.
Therefore, we give this property 7 / 10. *Disclaimer: This is our option and does constitute a recommendation or financial advice. Do your own research. *
- Price
- 7
- Condition
- 7
- Location
- 8
- Land
- 6
- Bedrooms
- 2
- Bathrooms
- 1
- Sqft (est)
- 842.21
- Lot (est)
- 960.00
The heatmap indicates the level of crime in the area. The color of the heatmap indicates the crime severity and recency.
Metrics Year-on-Year
- Average area value
- 290,495.00 £Decreased by 11.63 %
- Est sale value
- 273,718.25 £Increased by 0.31 %
- Average area rental value
- 1,124.00 £/moIncreased by 4.46 %
- Est letting value
- 842.21 £/moUnchanged by 0.00 %
- Est rental Yield
- 4.64 %Increased by 18.07 %
- Crime Rate
- 15.00 %Unchanged by 0.00 %
Agent Activity
Naylor Powell marked this listing as sold.
Naylor Powell created the listing.
Nearby Schools
| Name | Type | Ofsted | Distance |
|---|---|---|---|
| Hillview Primary School | Community School | Good | 0.24 KM |
| Dinglewell Junior School | Community School | Good | 0.82 KM |
| Dinglewell Infant School | Community School | Good | 0.82 KM |
| Abbeymead Primary School | Community School | Good | 1.66 KM |
| Coopers Edge School | Foundation School | Good | 1.98 KM |
Images
Nearby Streets
| Name | Average Price | Average Sqft | Distance |
|---|---|---|---|
| Saint Philips Close | £ 0 | 0 | 0.00 KM |
| Fircroft Close | £ 403,333 | 0 | 0.00 KM |
| Conway Road | £ 312,475 | 0 | 0.00 KM |
| Mogridge Close | £ 399,950 | 0 | 0.00 KM |
| Saint Margarets Road | £ 0 | 0 | 0.00 KM |
Nearby Transport
| Name | NLC | TLC | Distance |
|---|---|---|---|
| Gloucester | 4760 | GCR | 5.56 KM |
Nearby Listings
| Address | Price | Type | Score | Distance |
|---|---|---|---|---|
| Hillview Drive, Hucclecote, Gloucester | £ 300,000 | BUY | 7 / 10 | 0.00 KM |
| Hillview Drive, Gloucester | £ 285,000 | BUY | 7 / 10 | 0.03 KM |
| Wilkes Avenue, Hucclecote, Gloucester, Gloucestershire, GL3 | £ 290,000 | BUY | Unknown | 0.10 KM |
| Larkhay Road, Hucclecote | £ 425,000 | BUY | 7 / 10 | 0.16 KM |
| Wilkes Avenue, Hucclecote, Gloucester | £ 250,000 | BUY | 6 / 10 | 0.17 KM |
Nearby Properties
| Address | Price | Distance |
|---|---|---|
| 5 Hillview Drive | £ 279,000 | 0.03 KM |
| 20 Hillview Drive | £ 210,000 | 0.03 KM |
| 8 Hillview Drive | £ 217,000 | 0.04 KM |
| 15 Hillview Drive | £ 162,100 | 0.04 KM |
| 26 Hillview Drive | £ 179,950 | 0.04 KM |