ST
Rider Haggard Road, Norwich
By Starkings & Watson
£ 240,000
Reviews
3 out of 5 stars
Starkings & Watson says ..
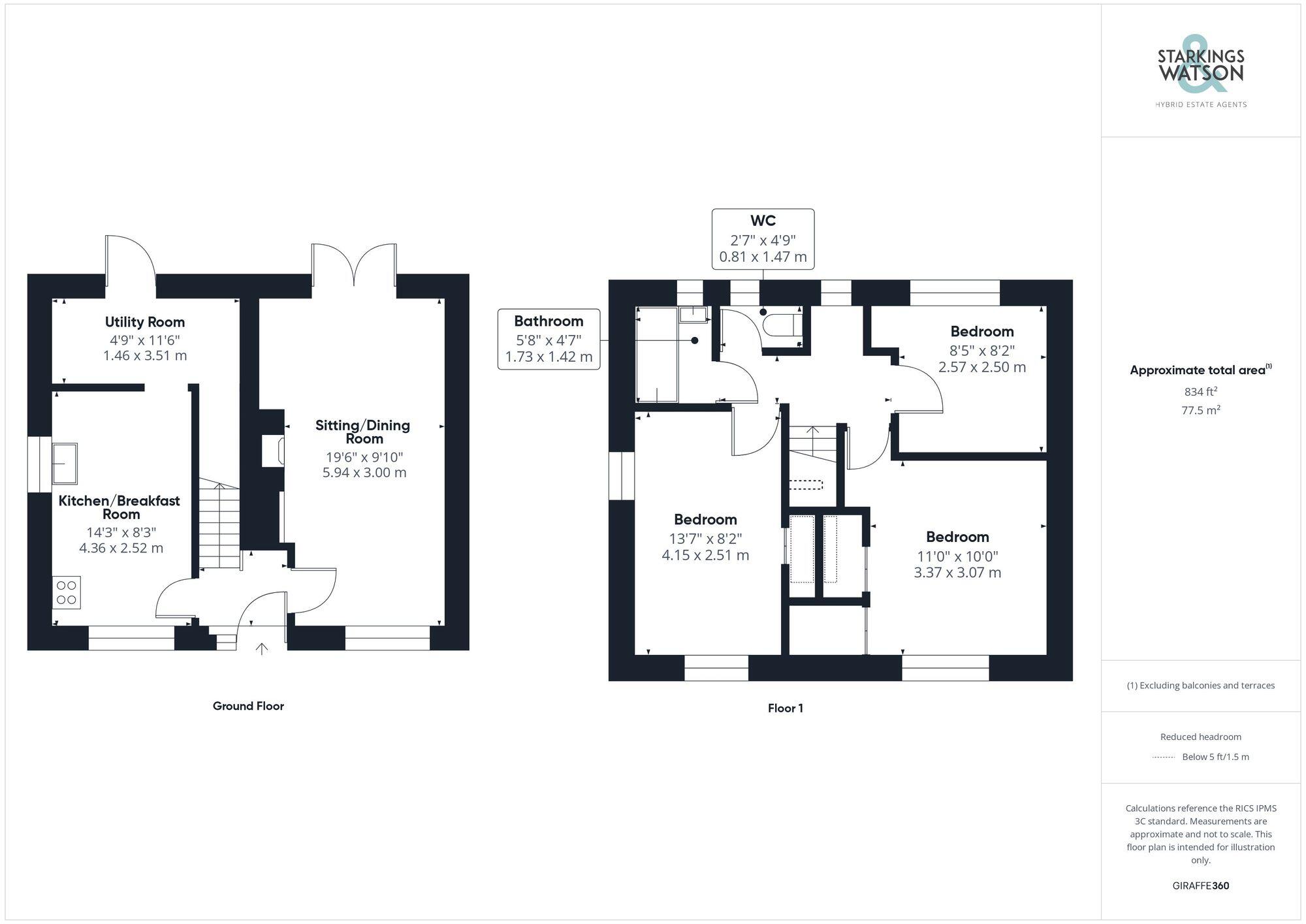
Situated on the outskirts of Norwich city centre within easy access of main arterial routes sits this SEMI-DETACHED HOUSE situated on a GENEROUS PLOT all being sat back from the street. The current owners have recently replaced all windows to uPVC double glazed units with a new GAS COMBINATION BO...
Property Oracle says ..
Therefore, we give this property 6 / 10. *Disclaimer: This is our option and does constitute a recommendation or financial advice. Do your own research. *
- Price
- 5
- Condition
- 6
- Location
- 7
- Land
- 7
- Bedrooms
- 3
- Bathrooms
- 1
- Sqft (est)
- 834.00
The heatmap indicates the level of crime in the area. The color of the heatmap indicates the crime severity and recency.
Metrics Year-on-Year
- Average area value
- 280,714.00 £Increased by 16.69 %
- Est sale value
- 293,568.00 £Increased by 24.82 %
- Average area rental value
- 1,200.00 £/moIncreased by 4.08 %
- Est letting value
- 834.00 £/moUnchanged by 0.00 %
- Est rental Yield
- 5.13 %Decreased by 10.78 %
- Crime Rate
- 9.00 %Unchanged by 0.00 %
from 240,560.00 £
from 235,188.00 £
from 1,153.00 £/mo
from 834.00 £/mo
from 5.75 %
from 9.00 %
Agent Activity
Starkings & Watson created the listing.
Nearby Schools
| Name | Type | Ofsted | Distance |
|---|---|---|---|
| Heartsease Primary Academy | Academy Converter | Outstanding | 0.46 KM |
| Dussindale Children'S Centre | Children's Centre | 0.65 KM | |
| The Open Academy | Academy Sponsor Led | Requires improvement | 0.71 KM |
| Falcon Junior School | Community School | Good | 0.95 KM |
| St William'S Primary School | Community School | Good | 0.99 KM |
Images
Nearby Streets
| Name | Average Price | Average Sqft | Distance |
|---|---|---|---|
| Gunn Road | £ 0 | 0 | 0.00 KM |
| Finch Close | £ 0 | 0 | 0.00 KM |
| Orchard Close | £ 300,833 | 0 | 0.00 KM |
| Vancouver Road | £ 0 | 0 | 0.00 KM |
| Witard Road | £ 0 | 0 | 0.00 KM |
Nearby Transport
| Name | NLC | TLC | Distance |
|---|---|---|---|
| Norwich | 7309 | NRW | 3.33 KM |
| Salhouse | 7318 | SAH | 7.48 KM |
| Brundall Gardens | 7006 | BGA | 9.82 KM |
Nearby Listings
| Address | Price | Type | Score | Distance |
|---|---|---|---|---|
| Rider Haggard Road, Norwich | £ 240,000 | BUY | 6 / 10 | 0.00 KM |
| Rider Haggard Road, Norwich | £ 270,000 | BUY | 6 / 10 | 0.11 KM |
| Rider Haggard Road, Norwich | £ 155,000 | BUY | 6 / 10 | 0.12 KM |
| Rider Haggard Road, Norwich, Norfolk | £ 250,000 | BUY | 8 / 10 | 0.13 KM |
| 68 Rider Haggard Road, Norwich, Norfolk NR7 9UG | £ 200,000 | BUY | Unknown | 0.15 KM |
Nearby Properties
| Address | Price | Distance |
|---|---|---|
| 74 Rider Haggard Road | £ 175,000 | 0.07 KM |
| 10 Manby Road | £ 252,000 | 0.15 KM |
| 9 Manby Road | £ 190,000 | 0.15 KM |
| 17 Clancy Road | £ 120,000 | 0.16 KM |
| 2 Clancy Road | £ 105,000 | 0.16 KM |