Woolmans Lodge, Shirley, Solihull
By Stratton & King Ltd
£ 160,000
Reviews
3 out of 5 stars
Stratton & King Ltd says ..
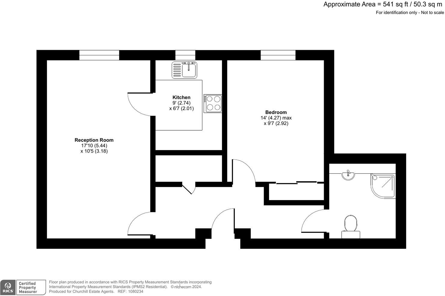
**ONE BEDROOM FIRST FLOOR RETIREMENT APARTMENT** Churchill Sales & Lettings are pleased to be marketing this lovely one bedroom first floor apartment overlooking the communal gardens. The property offers is conveniently located for the stairs and is presented in good order. The...
Property Oracle says ..
This is a one-bedroom retirement property located in Shirley, Solihull. The apartment appears to be in good condition, with modern fixtures and fittings. It benefits from communal gardens and is located in a convenient area with access to local amenities and transport links. The property is located close to a number of schools. The price seems reasonable for a retirement property of this size and condition in this location.
Therefore, we give this property 7 / 10. *Disclaimer: This is our option and does constitute a recommendation or financial advice. Do your own research. *
- Price
- 7
- Condition
- 8
- Location
- 7
- Land
- 6
- Bedrooms
- 1
- Bathrooms
- 1
- Sqft (est)
- 134.01
The heatmap indicates the level of crime in the area. The color of the heatmap indicates the crime severity and recency.
Metrics Year-on-Year
- Average area value
- 419,000.00 £Increased by 9.74 %
- Est sale value
- 55,614.15 £Increased by 2.22 %
- Average area rental value
- 1,467.00 £/moDecreased by 6.50 %
- Est letting value
- 134.01 £/moUnchanged by 0.00 %
- Est rental Yield
- 4.20 %Decreased by 14.81 %
- Crime Rate
- 4.00 %Unchanged by 0.00 %
Agent Activity
Stratton & King Ltd created the listing.
Nearby Schools
| Name | Type | Ofsted | Distance |
|---|---|---|---|
| Kingswood School | Other Independent School | Outstanding | 0.60 KM |
| Tudor Grange Primary Academy, St James | Academy Sponsor Led | Outstanding | 0.62 KM |
| Blossomfield Infant And Nursery School | Community School | Outstanding | 0.71 KM |
| Streetsbrook Infant And Early Years Academy | Academy Converter | 0.81 KM | |
| Shirley Heath Children'S Centre (Shirley South) | Children's Centre | 0.86 KM |
Images
Nearby Streets
| Name | Average Price | Average Sqft | Distance |
|---|---|---|---|
| Sutherland Avenue | £ 425,000 | 0 | 0.00 KM |
| School Road | £ 0 | 0 | 0.00 KM |
| School Road | £ 404,967 | 0 | 0.00 KM |
| Union Road | £ 230,829 | 0 | 0.00 KM |
| Danbury Road | £ 365,000 | 0 | 0.00 KM |
Nearby Transport
| Name | NLC | TLC | Distance |
|---|---|---|---|
| Shirley | 4526 | SRL | 2.59 KM |
| Yardley Wood | 4537 | YRD | 3.66 KM |
| Olton | 4533 | OLT | 3.70 KM |
| Whitlocks End | 4539 | WTE | 3.80 KM |
| Hall Green | 4521 | HLG | 3.83 KM |
Nearby Listings
| Address | Price | Type | Score | Distance |
|---|---|---|---|---|
| Woolmans Lodge, Shirley, Solihull | £ 160,000 | BUY | 7 / 10 | 0.00 KM |
| Solihull Road, Shirley, Solihull | £ 135,000 | BUY | 7 / 10 | 0.00 KM |
| Woolmans Lodge, Shirley | £ 142,500 | BUY | Unknown | 0.10 KM |
| Wayfield Close, Shirley, Solihull | £ 399,950 | BUY | 8 / 10 | 0.17 KM |
| Woolmans Lodge, Shirley | £ 199,995 | BUY | Unknown | 0.17 KM |
Nearby Properties
| Address | Price | Distance |
|---|---|---|
| 70 Cropthorne Road | £ 305,000 | 0.09 KM |
| 6 Cropthorne Road | £ 325,000 | 0.09 KM |
| 58 Cropthorne Road | £ 335,000 | 0.09 KM |
| 18 Cropthorne Road | £ 373,000 | 0.09 KM |
| 44 Cropthorne Road | £ 409,000 | 0.10 KM |