BR
Selborne Avenue, Aldershot, Hampshire, GU11
By Bridges Estate Agents
£ 330,000
Reviews
3 out of 5 stars
Bridges Estate Agents says ..
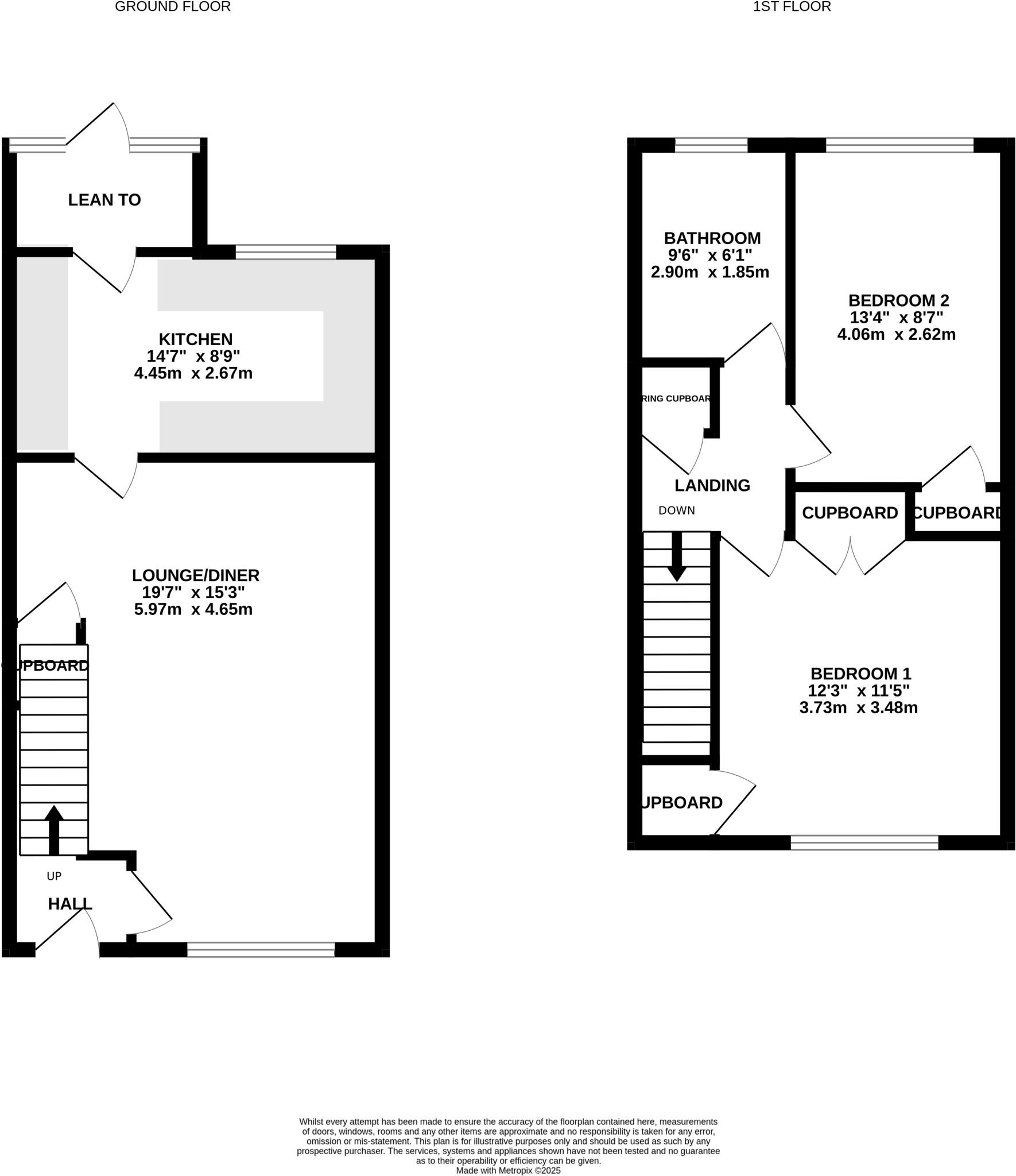
A delightful property positioned on the fringes of 'Tices Meadow Nature Reserve'. The property has been the subject of many improvements, which can be seen in abundance throughout. Set over two floors and with internal accommodation presented in a good order throughout. The property benefit...
Property Oracle says ..
Therefore, we give this property 6 / 10. *Disclaimer: This is our option and does constitute a recommendation or financial advice. Do your own research. *
- Price
- 7
- Condition
- 6
- Location
- 7
- Land
- 5
- Bedrooms
- 2
- Bathrooms
- 1
The heatmap indicates the level of crime in the area. The color of the heatmap indicates the crime severity and recency.
Metrics Year-on-Year
- Average area value
- 250,000.00 £Increased by 29.42 %
- Average area rental value
- 833.00 £/moDecreased by 23.08 %
- Est rental Yield
- 4.00 %Decreased by 40.56 %
- Crime Rate
- 17.00 %Unchanged by 0.00 %
from 193,175.00 £
from 1,083.00 £/mo
from 6.73 %
from 17.00 %
Agent Activity
Bridges Estate Agents created the listing.
Nearby Schools
| Name | Type | Ofsted | Distance |
|---|---|---|---|
| Sunflowers Children'S Centre | Children's Centre Linked Site | 0.30 KM | |
| Park Primary School | Community School | Good | 0.47 KM |
| St Michael'S Church Of England Controlled Infant School | Voluntary Controlled School | Outstanding | 0.54 KM |
| St Michael'S Church Of England Controlled Junior School | Voluntary Controlled School | Requires improvement | 0.69 KM |
| Badshot Lea Village Infant School | Community School | Good | 0.89 KM |
Images
Nearby Streets
| Name | Average Price | Average Sqft | Distance |
|---|---|---|---|
| Church Road | £ 395,000 | 0 | 0.00 KM |
| Croft Road | £ 0 | 0 | 0.00 KM |
| Orchard Way | £ 400,000 | 0 | 0.00 KM |
| The Alders | £ 0 | 0 | 0.00 KM |
| Churchill Avenue | £ 566,667 | 0 | 0.00 KM |
Nearby Transport
| Name | NLC | TLC | Distance |
|---|---|---|---|
| Aldershot | 5623 | AHT | 1.46 KM |
| Farnham | 5545 | FNH | 4.76 KM |
| Ash | 5641 | ASH | 5.04 KM |
| North Camp | 5636 | NCM | 5.38 KM |
| Ash Vale | 5547 | AHV | 5.68 KM |
Nearby Listings
| Address | Price | Type | Score | Distance |
|---|---|---|---|---|
| Selborne Avenue, Aldershot, Hampshire, GU11 | £ 330,000 | BUY | 6 / 10 | 0.00 KM |
| Selborne Avenue, Aldershot, Hampshire | £ 375,000 | BUY | Unknown | 0.06 KM |
| Morland Road, Aldershot, Hampshire | £ 375,000 | BUY | 6 / 10 | 0.11 KM |
| Selborne Avenue, Aldershot, Hampshire, GU11 | £ 325,000 | BUY | 6 / 10 | 0.12 KM |
| Cadnam Close, Aldershot, GU11 | £ 315,000 | BUY | 6 / 10 | 0.17 KM |
Nearby Properties
| Address | Price | Distance |
|---|---|---|
| 64 Selborne Avenue | £ 238,000 | 0.06 KM |
| 65 Selborne Avenue | £ 255,000 | 0.06 KM |
| 63 Selborne Avenue | £ 260,000 | 0.06 KM |
| 62 Selborne Avenue | £ 325,000 | 0.06 KM |
| 74 Selborne Avenue | £ 165,000 | 0.06 KM |