Munnings Drive, Clacton-on-Sea
By Blake & Thickbroom
£ 335,000
Reviews
3 out of 5 stars
Blake & Thickbroom says ..
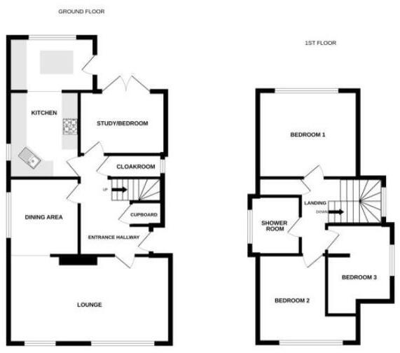
NO ONWARD CHAIN Blake & Thickbroom are pleased to present this well-maintained four-bedroom detached family home, ideally located on the highly regarded Cann Hall development. This spacious property boasts a desirable southerly-facing rear garden and offers generous living accommodation througho...
Property Oracle says ..
This is a detached property in Clacton-on-Sea, Essex. It has four bedrooms and one bathroom, with a total square footage of 1,020. The property is located in a residential area, close to schools and transportation. The property appears to be in good condition, with a modern kitchen and bathroom. It also benefits from a garden. The listing price of £335,000 seems reasonable for the area and the property type. It presents a good opportunity for families looking for a home in Clacton-on-Sea.
Therefore, we give this property 7 / 10. *Disclaimer: This is our option and does constitute a recommendation or financial advice. Do your own research. *
- Price
- 8
- Condition
- 7
- Location
- 7
- Land
- 6
- Bedrooms
- 4
- Bathrooms
- 1
- Sqft (est)
- 1,020.00
The heatmap indicates the level of crime in the area. The color of the heatmap indicates the crime severity and recency.
Metrics Year-on-Year
- Average area value
- 439,656.00 £Increased by 12.48 %
- Est sale value
- 455,940.00 £Increased by 5.18 %
- Average area rental value
- 2,161.00 £/moIncreased by 12.61 %
- Est letting value
- 2,040.00 £/moUnchanged by 0.00 %
- Est rental Yield
- 5.90 %Increased by 0.17 %
- Crime Rate
- 2.00 %Unchanged by 0.00 %
Agent Activity
Blake & Thickbroom created the listing.
Nearby Schools
| Name | Type | Ofsted | Distance |
|---|---|---|---|
| Cann Hall Primary School | Academy Sponsor Led | Good | 0.39 KM |
| White Hall Academy | Academy Sponsor Led | Good | 0.67 KM |
| Clacton Coastal Academy | Academy Sponsor Led | Requires improvement | 0.70 KM |
| St Clare'S Catholic Primary School | Academy Sponsor Led | Good | 1.55 KM |
| Oakwood Infant And Nursery School | Community School | Good | 1.65 KM |
Images
Nearby Streets
| Name | Average Price | Average Sqft | Distance |
|---|---|---|---|
| Sheppard Close | £ 0 | 0 | 0.00 KM |
| Pathfields Road | £ 0 | 0 | 0.00 KM |
| Norwich Close | £ 0 | 0 | 0.00 KM |
| A133 | £ 0 | 0 | 0.00 KM |
| Epsom Close | £ 0 | 0 | 0.00 KM |
Nearby Transport
| Name | NLC | TLC | Distance |
|---|---|---|---|
| Clacton-On-Sea | 6850 | CLT | 1.80 KM |
| Thorpe-Le-Soken | 6857 | TLS | 5.11 KM |
| Weeley | 6859 | WEE | 6.08 KM |
| Kirby Cross | 6862 | KBX | 8.93 KM |
| Great Bentley | 6855 | GRB | 9.99 KM |
Nearby Listings
| Address | Price | Type | Score | Distance |
|---|---|---|---|---|
| Munnings Drive, Clacton-on-Sea | £ 335,000 | BUY | 7 / 10 | 0.00 KM |
| Munnings Drive, Clacton-On-Sea | £ 350,000 | BUY | 6 / 10 | 0.05 KM |
| Munnings Drive, Clacton-On-Sea | £ 275,000 | BUY | 6 / 10 | 0.07 KM |
| Constable Avenue, Clacton-On-Sea, Essex, CO16 | £ 230,000 | BUY | 5 / 10 | 0.08 KM |
| Constable Avenue, Clacton-on-Sea | £ 325,000 | BUY | 7 / 10 | 0.08 KM |
Nearby Properties
| Address | Price | Distance |
|---|---|---|
| 11 Munnings Drive | £ 175,000 | 0.00 KM |
| 16 Munnings Drive | £ 245,000 | 0.00 KM |
| 19 Munnings Drive | £ 381,000 | 0.00 KM |
| 26 Munnings Drive | £ 212,000 | 0.00 KM |
| 17 Munnings Drive | £ 160,000 | 0.00 KM |