North Wall says ..
Chain free home in Maghull features spacious lounge, dining area, integrated kitchen, three bedrooms, family bathroom, rear garden with summer house. Ideal for family living with off-road parking.
Property Oracle says ..
Therefore, we give this property 7 / 10. *Disclaimer: This is our option and does constitute a recommendation or financial advice. Do your own research. *
- Price
- 9
- Condition
- 8
- Location
- 8
- Land
- 6
- Bedrooms
- 3
- Bathrooms
- 1
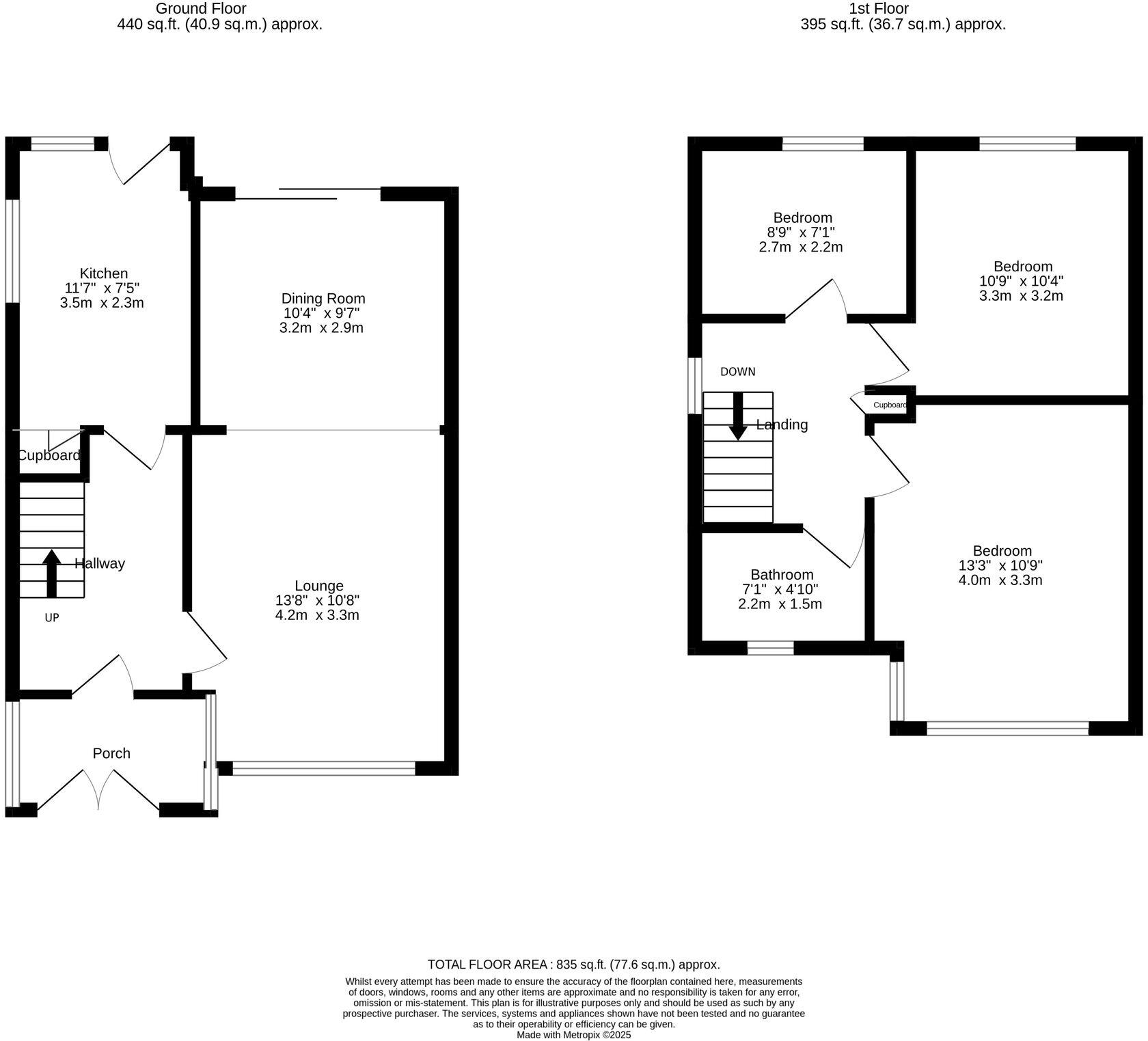
- Sqft (est)
- 835.00
The heatmap indicates the level of crime in the area. The color of the heatmap indicates the crime severity and recency.
Metrics Year-on-Year
- Average area value
- 257,222.00 £Decreased by 8.17 %
- Est sale value
- 207,080.00 £Increased by 16.43 %
- Average area rental value
- 1,100.00 £/moIncreased by 7.32 %
- Est letting value
- 835.00 £/mo
- Est rental Yield
- 5.13 %Increased by 16.86 %
- Crime Rate
- 10.00 %Unchanged by 0.00 %
from 280,098.00 £
from 177,855.00 £
from 1,025.00 £/mo
from 0.00 £/mo
from 4.39 %
from 10.00 %
Agent Activity
North Wall created the listing.
Nearby Schools
| Name | Type | Ofsted | Distance |
|---|---|---|---|
| Northway Primary School | Community School | Good | 0.57 KM |
| St Andrews Church Of England Primary School, Maghull | Academy Converter | 0.85 KM | |
| Deyes High School | Academy Converter | Good | 0.86 KM |
| Maricourt Catholic High School | Voluntary Aided School | Requires improvement | 1.08 KM |
| St Thomas Church Of England Primary School, Lydiate | Academy Converter | 1.16 KM |
Images
Nearby Streets
| Name | Average Price | Average Sqft | Distance |
|---|---|---|---|
| Langdale Drive | £ 315,000 | 0 | 0.00 KM |
| Fir Cotes | £ 0 | 0 | 0.00 KM |
| Laburnum Grove | £ 0 | 0 | 0.00 KM |
| Twyford Close | £ 0 | 0 | 0.00 KM |
| Aldykes | £ 209,950 | 0 | 0.00 KM |
Nearby Transport
| Name | NLC | TLC | Distance |
|---|---|---|---|
| Maghull | 2155 | MAG | 1.07 KM |
| Maghull North | 6576 | MNS | 1.28 KM |
| Old Roan | 2258 | ORN | 3.80 KM |
| Town Green | 2283 | TWN | 4.34 KM |
| Kirkby (Merseyside) | 2124 | KIR | 4.68 KM |
Nearby Listings
| Address | Price | Type | Score | Distance |
|---|---|---|---|---|
| Kendal Drive, Maghull, L31 | £ 250,000 | BUY | 7 / 10 | 0.00 KM |
| Thirlmere Close, Maghull, Liverpool | £ 260,000 | BUY | 6 / 10 | 0.10 KM |
| Kendal Drive, Maghull | £ 235,000 | BUY | Unknown | 0.11 KM |
| Cartmel Avenue, Maghull | £ 400,000 | BUY | 6 / 10 | 0.12 KM |
| Kendal Drive, Maghull | £ 250,000 | BUY | 6 / 10 | 0.13 KM |
Nearby Properties
| Address | Price | Distance |
|---|---|---|
| 70 Kendal Drive | £ 180,000 | 0.08 KM |
| 66 Kendal Drive | £ 215,000 | 0.08 KM |
| 78 Kendal Drive | £ 144,000 | 0.08 KM |
| 72 Kendal Drive | £ 220,000 | 0.08 KM |
| 62 Kendal Drive | £ 158,000 | 0.08 KM |