The Avenue, Harrogate
By Nicholls Tyreman
£ 170,000
Nicholls Tyreman says ..
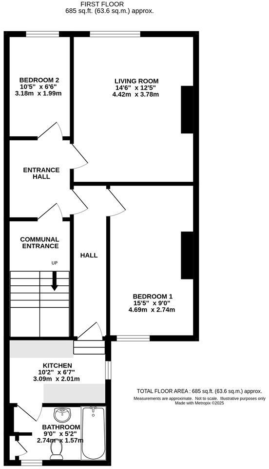
A first floor flat situated in this popular residential area just off the High Street in Starbeck. Extremely close to Starbeck train station offering easy access to Leeds, York and Harrogate.
- Bedrooms
- 2
- Bathrooms
- 1
- Lot (est)
- 685.00
The heatmap indicates the level of crime in the area. The color of the heatmap indicates the crime severity and recency.
Metrics Year-on-Year
- Average area value
- 332,475.00 £Increased by 34.32 %
- Average area rental value
- 1,275.00 £/moIncreased by 2.00 %
- Est rental Yield
- 4.60 %Decreased by 24.09 %
- Crime Rate
- 29.00 %Unchanged by 0.00 %
from 247,524.00 £
from 1,250.00 £/mo
from 6.06 %
from 29.00 %
Agent Activity
Nicholls Tyreman created the listing.
Nearby Schools
| Name | Type | Ofsted | Distance |
|---|---|---|---|
| Starbeck Primary Academy | Academy Sponsor Led | 0.22 KM | |
| Springwater School | Community Special School | Outstanding | 0.26 KM |
| Henshaws College | Special Post 16 Institution | Good | 1.02 KM |
| Hookstone Chase Primary School | Academy Converter | Good | 1.20 KM |
| Harrogate Town Children'S Centre | Children's Centre | 1.92 KM |
Images
Nearby Streets
| Name | Average Price | Average Sqft | Distance |
|---|---|---|---|
| Belmont Grove | £ 163,333 | 0 | 0.00 KM |
| Hillbank Road | £ 0 | 0 | 0.00 KM |
| First Avenue | £ 0 | 0 | 0.00 KM |
| Globe Street | £ 0 | 0 | 0.00 KM |
| Prospect Close | £ 0 | 0 | 0.00 KM |
Nearby Transport
| Name | NLC | TLC | Distance |
|---|---|---|---|
| Starbeck | 8221 | SBE | 0.37 KM |
| Knaresborough | 8214 | KNA | 3.21 KM |
| Hornbeam Park | 8212 | HBP | 3.91 KM |
| Harrogate | 8213 | HGT | 4.43 KM |
| Pannal | 8479 | PNL | 6.11 KM |
Nearby Listings
| Address | Price | Type | Score | Distance |
|---|---|---|---|---|
| The Avenue, Harrogate | £ 170,000 | BUY | Unknown | 0.00 KM |
| High Street, Harrogate, North Yorkshire, HG2 | £ 750,000 | BUY | Unknown | 0.04 KM |
| High Street, Starbeck, Harrogate | £ 130,000 | BUY | 6 / 10 | 0.04 KM |
| High Street, Beech House, HG2 | £ 120,000 | BUY | 6 / 10 | 0.05 KM |
| The Avenue, Harrogate | £ 150,000 | BUY | Unknown | 0.05 KM |
Nearby Properties
| Address | Price | Distance |
|---|---|---|
| 69 High Street | £ 215,000 | 0.04 KM |
| 97 High Street | £ 235,000 | 0.04 KM |
| 99 High Street | £ 245,000 | 0.04 KM |
| 14 Avenue Close | £ 81,500 | 0.12 KM |
| 29 Avenue Close | £ 167,000 | 0.12 KM |