KE
Dryden Road, Welling, DA16
By Key Property Consultants
£ 475,000
Reviews
3 out of 5 stars
Key Property Consultants says ..
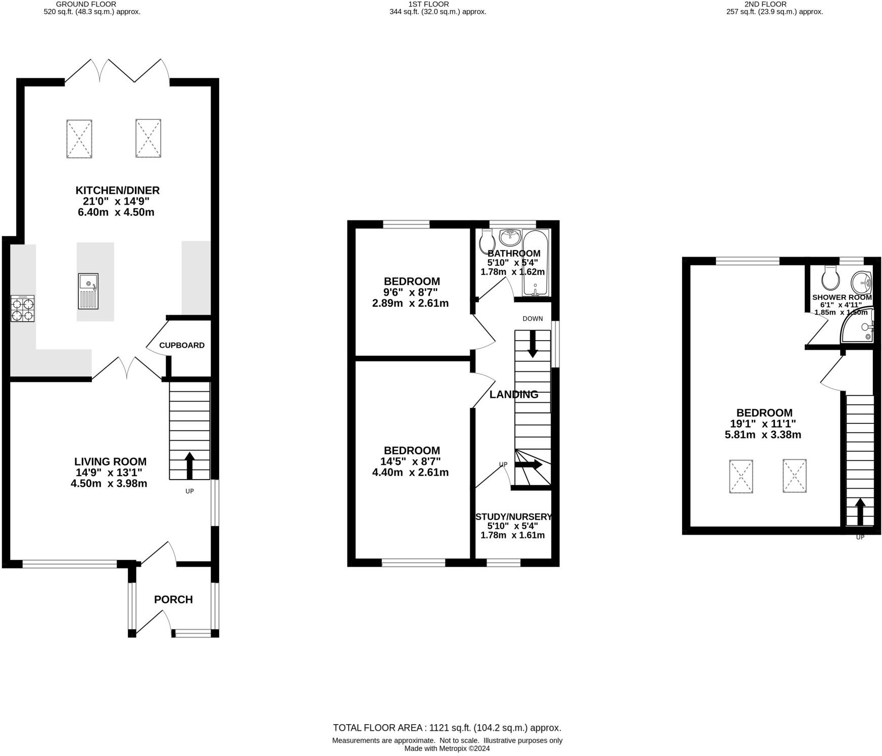
A WELL PRESENTED EXTENDED THREE BEROOM SEMI DETACHED ARRANGED OVER THREE FLOORS. WITH EN- SUITE SHOWER ROOM IN THE ATTIC BEDROOM. BATHROOM AND TWO BEDROOMS ON THE FIRST FLOOR. THE GROUND FLOOR HAS AN EXTENDED KITCHEN/DINER AND A LIVING ROOM ACCESSED VIA DOUBLE DOORS. EXTERNALLY HAVING A SUMMERHOUSE.
Property Oracle says ..
Therefore, we give this property 7 / 10. *Disclaimer: This is our option and does constitute a recommendation or financial advice. Do your own research. *
- Price
- 6
- Condition
- 8
- Location
- 7
- Land
- 7
- Bedrooms
- 3
- Bathrooms
- 2
- Sqft (est)
- 1,018.40
The heatmap indicates the level of crime in the area. The color of the heatmap indicates the crime severity and recency.
Metrics Year-on-Year
- Average area value
- 450,500.00 £Decreased by 1.88 %
- Est sale value
- 456,243.20 £Increased by 6.16 %
- Average area rental value
- 1,880.00 £/moDecreased by 0.48 %
- Est letting value
- 1,018.40 £/moUnchanged by 0.00 %
- Est rental Yield
- 5.01 %Increased by 1.42 %
- Crime Rate
- 3.00 %Unchanged by 0.00 %
from 459,130.00 £
from 429,764.80 £
from 1,889.00 £/mo
from 1,018.40 £/mo
from 4.94 %
from 3.00 %
Agent Activity
Key Property Consultants created the listing.
Nearby Schools
| Name | Type | Ofsted | Distance |
|---|---|---|---|
| Willow Dene School | Academy Special Converter | Good | 0.33 KM |
| Timbercroft Primary School | Academy Converter | Good | 0.64 KM |
| Rockliffe Manor Primary School | Academy Converter | Good | 0.65 KM |
| East Wickham Primary Academy | Academy Converter | Good | 1.01 KM |
| Greenslade Primary School | Community School | Good | 1.15 KM |
Images
Nearby Streets
| Name | Average Price | Average Sqft | Distance |
|---|---|---|---|
| Radnor Crescent | £ 0 | 0 | 0.00 KM |
| Prestwood Close | £ 465,000 | 0 | 0.00 KM |
| Yew Tree Close | £ 455,000 | 0 | 0.00 KM |
| Belmont Avenue | £ 0 | 0 | 0.00 KM |
| Radial Path | £ 0 | 0 | 0.00 KM |
Nearby Transport
| Name | NLC | TLC | Distance |
|---|---|---|---|
| Welling | 5128 | WLI | 1.22 KM |
| Plumstead | 5208 | PLU | 2.19 KM |
| Falconwood | 5137 | FCN | 2.22 KM |
| Woolwich Arsenal | 5152 | WWA | 3.35 KM |
| Abbey Wood | 5131 | ABW | 3.65 KM |
Nearby Listings
| Address | Price | Type | Score | Distance |
|---|---|---|---|---|
| Dryden Road, Welling, Kent, DA16 | £ 475,000 | BUY | Unknown | 0.00 KM |
| Dryden Road, Welling, DA16 | £ 475,000 | BUY | 7 / 10 | 0.00 KM |
| Milton Road, Welling, Kent, DA16 | £ 475,000 | BUY | 7 / 10 | 0.06 KM |
| Tennyson Close, Welling, Kent, DA16 | £ 400,000 | BUY | Unknown | 0.21 KM |
| Combeside, LONDON, London, SE18 | £ 750,000 | BUY | 7 / 10 | 0.23 KM |
Nearby Properties
| Address | Price | Distance |
|---|---|---|
| 19 Dryden Road | £ 187,000 | 0.03 KM |
| 28 Dryden Road | £ 135,000 | 0.03 KM |
| 30 Dryden Road | £ 229,000 | 0.03 KM |
| 52 Dryden Road | £ 200,000 | 0.03 KM |
| 76 Dryden Road | £ 235,000 | 0.03 KM |