JU
Imogen Gardens, Heathcote, Warwick
By Julie Philpot
£ 695,000
Reviews
3 out of 5 stars
Julie Philpot says ..
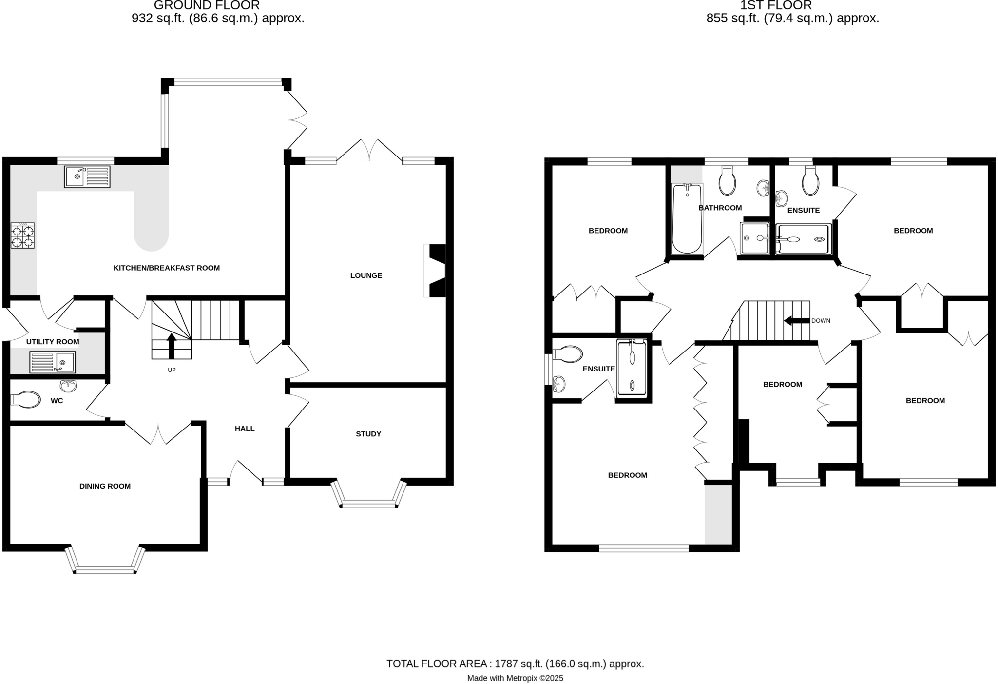
An ideal opportunity to purchase this very spacious, well presented and well planned home with five generous size bedrooms, two of which are en-suite, along with three reception rooms and a large open plan kitchen/diner/family room. This is a lovely light and airy home with a sunny garden, a matu...
Property Oracle says ..
Therefore, we give this property 7 / 10. *Disclaimer: This is our option and does constitute a recommendation or financial advice. Do your own research. *
- Price
- 6
- Condition
- 7
- Location
- 8
- Land
- 8
- Bedrooms
- 5
- Bathrooms
- 3
- Sqft (est)
- 1,787.00
The heatmap indicates the level of crime in the area. The color of the heatmap indicates the crime severity and recency.
Metrics Year-on-Year
- Average area value
- 362,200.00 £Decreased by 11.07 %
- Est sale value
- 607,580.00 £Decreased by 19.62 %
- Average area rental value
- 1,540.00 £/moIncreased by 7.09 %
- Est letting value
- 1,787.00 £/moUnchanged by 0.00 %
- Est rental Yield
- 5.10 %Increased by 20.28 %
- Crime Rate
- 3.00 %Unchanged by 0.00 %
from 407,273.00 £
from 755,901.00 £
from 1,438.00 £/mo
from 1,787.00 £/mo
from 4.24 %
from 3.00 %
Agent Activity
Julie Philpot created the listing.
Nearby Schools
| Name | Type | Ofsted | Distance |
|---|---|---|---|
| Heathcote Primary School | Free Schools | 0.69 KM | |
| St Patrick'S Catholic Primary School | Voluntary Aided School | Good | 1.71 KM |
| Kingsway Community Primary School | Academy Sponsor Led | 1.72 KM | |
| Kingsway Children'S Centre | Children's Centre | 1.92 KM | |
| Bishops Tachbrook Cofe Primary School | Voluntary Controlled School | Good | 1.94 KM |
Images
Nearby Streets
| Name | Average Price | Average Sqft | Distance |
|---|---|---|---|
| Walker Close | £ 0 | 0 | 0.00 KM |
| Radcliffe Road | £ 487,500 | 0 | 0.00 KM |
| Healey Road | £ 0 | 0 | 0.00 KM |
| Sunset Close | £ 136,000 | 0 | 0.00 KM |
| Earl Rivers Avenue | £ 265,000 | 0 | 0.00 KM |
Nearby Transport
| Name | NLC | TLC | Distance |
|---|---|---|---|
| Leamington Spa | 4597 | LMS | 2.44 KM |
| Warwick | 4600 | WRW | 4.78 KM |
| Warwick Parkway | 8530 | WRP | 7.82 KM |
| Kenilworth | 7985 | KNW | 9.25 KM |
Nearby Listings
| Address | Price | Type | Score | Distance |
|---|---|---|---|---|
| Imogen Gardens, Heathcote, Warwick | £ 695,000 | BUY | 7 / 10 | 0.00 KM |
| Miranda Drive, Warwick Gates, CV34 | £ 525,000 | BUY | Unknown | 0.13 KM |
| Lady Grey Avenue, Heathcote, Warwick | £ 700,000 | BUY | 7 / 10 | 0.21 KM |
| Earl Rivers Avenue, Warwick Gates, CV34 | £ 500,000 | BUY | 7 / 10 | 0.23 KM |
| Falstaff Grove, Warwick | £ 350,000 | BUY | 7 / 10 | 0.23 KM |
Nearby Properties
| Address | Price | Distance |
|---|---|---|
| 1 Romeo Arbour | £ 429,000 | 0.08 KM |
| 3 Romeo Arbour | £ 308,000 | 0.08 KM |
| 8 Romeo Arbour | £ 269,950 | 0.08 KM |
| 6 Romeo Arbour | £ 139,950 | 0.08 KM |
| 2 Romeo Arbour | £ 415,000 | 0.08 KM |