Vine Mews, Located off Abbotsbury Road, Weymouth
By Beaumont Jones Estate Agents
£ 300,000
Reviews
3 out of 5 stars
Beaumont Jones Estate Agents says ..
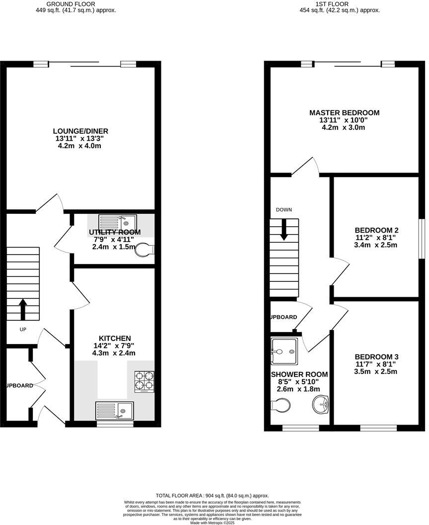
Offered with no onward chain, we are delighted to offer a modern three bedroom terraced home situated within a small private development located off Abbotsbury Road. The property sits within walking distance of town offering a spacious hallway, kitchen/diner, generous sized living room, utility/c...
Property Oracle says ..
This property is a three-bedroom terraced house located in Weymouth, Dorset. The location benefits from relatively close proximity to several primary schools, with options ranging from ‘Requires improvement’ to ‘Good’ Ofsted ratings. Weymouth train station is also within reasonable travelling distance. The property itself appears modern and well-maintained based on the provided images. It includes a small, paved rear garden. While the plot size is listed as 0.00 sqft, the images show a usable outdoor space. The list price of £300,000 is higher than the average price for the area (£234,228), but the property appears to be in good condition and is larger than the average size (904 sqft vs 857 sqft). More information on the plot size would be beneficial to fully assess the value for money.
Therefore, we give this property 6 / 10. *Disclaimer: This is our option and does constitute a recommendation or financial advice. Do your own research. *
- Price
- 6
- Condition
- 9
- Location
- 7
- Land
- 3
- Bedrooms
- 3
- Bathrooms
- 1
- Sqft (est)
- 904.00
The heatmap indicates the level of crime in the area. The color of the heatmap indicates the crime severity and recency.
Metrics Year-on-Year
- Average area value
- 239,444.00 £Decreased by 12.65 %
- Est sale value
- 320,920.00 £Increased by 9.23 %
- Average area rental value
- 950.00 £/moDecreased by 19.29 %
- Est letting value
- 904.00 £/moUnchanged by 0.00 %
- Est rental Yield
- 4.76 %Decreased by 7.57 %
- Crime Rate
- 7.00 %Unchanged by 0.00 %
Agent Activity
Beaumont Jones Estate Agents created the listing.
Nearby Schools
| Name | Type | Ofsted | Distance |
|---|---|---|---|
| Beechcroft St Pauls Cofe Primary School | Academy Converter | Requires improvement | 0.52 KM |
| Sure Start Weymouth And Portland | Children's Centre | 0.95 KM | |
| Holy Trinity Church Of England Vc Primary School & Community Nursery | Voluntary Controlled School | Good | 1.18 KM |
| The Compass | Pupil Referral Unit | Good | 1.19 KM |
| St Augustine'S Catholic Primary School, Weymouth | Academy Converter | Good | 1.33 KM |
Images
Nearby Streets
| Name | Average Price | Average Sqft | Distance |
|---|---|---|---|
| Milton Road | £ 210,000 | 0 | 0.00 KM |
| Salisbury Road | £ 217,500 | 0 | 0.00 KM |
| Rodwell Trail | £ 105,000 | 0 | 0.00 KM |
| Maple Grove | £ 0 | 0 | 0.00 KM |
| Swannery Bridge | £ 0 | 0 | 0.00 KM |
Nearby Transport
| Name | NLC | TLC | Distance |
|---|---|---|---|
| Weymouth | 5965 | WEY | 1.20 KM |
| Upwey | 5967 | UPW | 4.06 KM |
Nearby Listings
| Address | Price | Type | Score | Distance |
|---|---|---|---|---|
| Vine Mews, Located off Abbotsbury Road, Weymouth | £ 300,000 | BUY | 6 / 10 | 0.00 KM |
| Abbotsbury Road, Weymouth | £ 185,000 | BUY | 7 / 10 | 0.02 KM |
| Kellaway Terrace, Weymouth | £ 385,000 | BUY | Unknown | 0.04 KM |
| Essex Road, Weymouth | £ 160,000 | BUY | 4 / 10 | 0.07 KM |
| Kellaway Terrace, Weymouth | £ 370,000 | BUY | 6 / 10 | 0.07 KM |
Nearby Properties
| Address | Price | Distance |
|---|---|---|
| 68 Abbotsbury Road | £ 230,000 | 0.03 KM |
| 56 Abbotsbury Road | £ 173,000 | 0.03 KM |
| 54 Abbotsbury Road | £ 120,500 | 0.03 KM |
| 66 Abbotsbury Road | £ 68,500 | 0.03 KM |
| 64 Abbotsbury Road | £ 328,000 | 0.03 KM |