JLL says ..
An opportunity to purchase an immaculate property located within a private gated development just a short walk from London Bridge and The City of London.
Property Oracle says ..
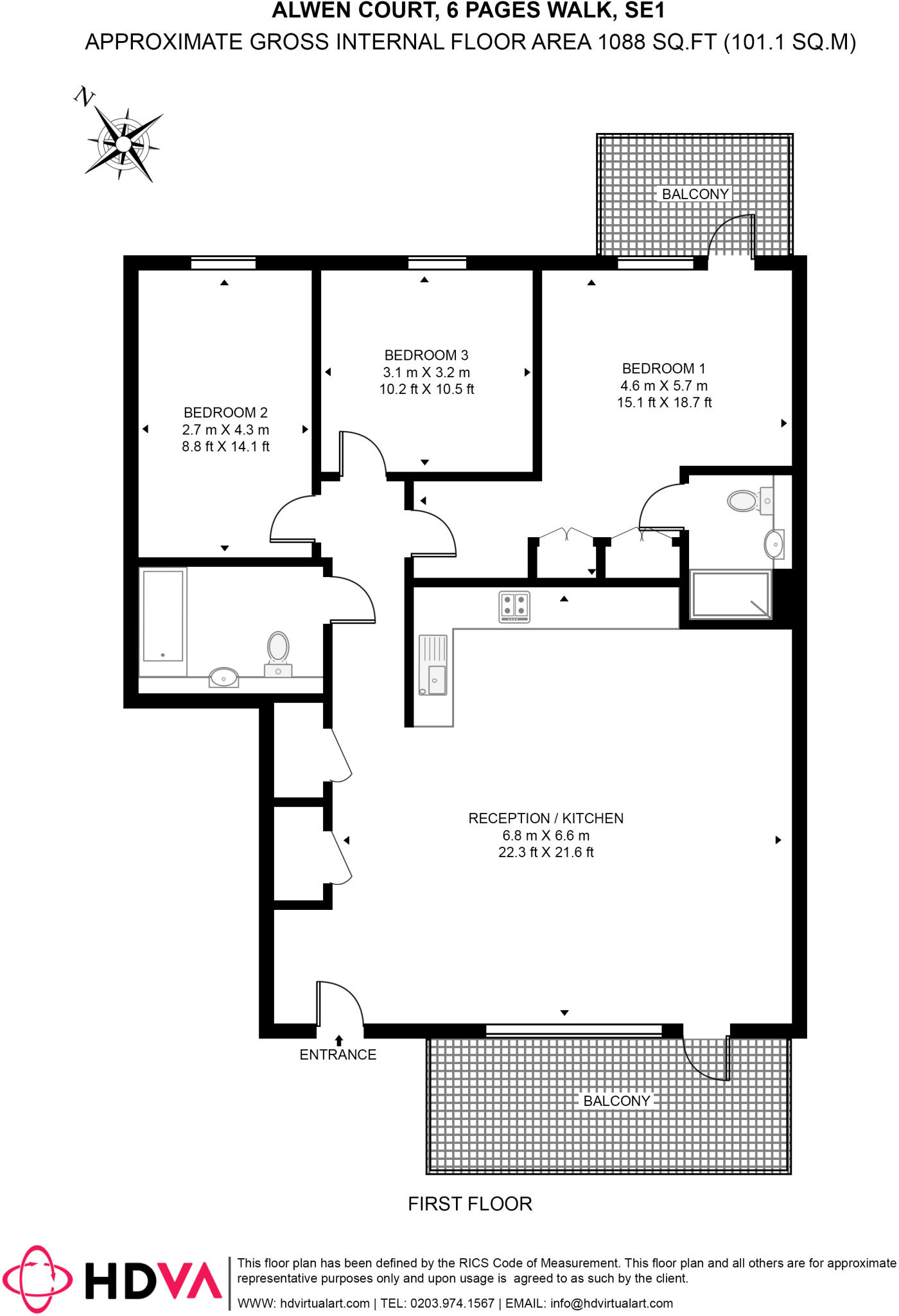
This is a modern 3-bedroom flat in Alwen Court, London. The property is in good condition and benefits from a balcony and access to a communal garden. It is located in a desirable area with good transport links and local amenities. The property is within walking distance of Grange Primary School. The flat offers three bathrooms and a spacious 1,088 sqft of living space. The price appears reasonable compared to similar properties in the area.
Therefore, we give this property 7 / 10. *Disclaimer: This is our option and does constitute a recommendation or financial advice. Do your own research. *
- Price
- 7
- Condition
- 8
- Location
- 7
- Land
- 6
- Bedrooms
- 3
- Bathrooms
- 3
- Sqft (est)
- 1,088.00
The heatmap indicates the level of crime in the area. The color of the heatmap indicates the crime severity and recency.
Metrics Year-on-Year
- Average area value
- 949,412.00 £Increased by 6.78 %
- Est sale value
- 1,166,336.00 £Increased by 25.23 %
- Average area rental value
- 2,558.00 £/moIncreased by 5.05 %
- Est letting value
- 2,176.00 £/moUnchanged by 0.00 %
- Est rental Yield
- 3.23 %Decreased by 1.82 %
- Crime Rate
- 5.00 %Unchanged by 0.00 %
Agent Activity
JLL created the listing.
Nearby Schools
| Name | Type | Ofsted | Distance |
|---|---|---|---|
| Grange Primary School | Community School | Good | 0.09 KM |
| The Bridge Special Education Needs School | Other Independent Special School | 0.51 KM | |
| Townsend Primary School | Community School | Good | 0.54 KM |
| Kintore Way Children'S Centre | Children's Centre | 0.59 KM | |
| Kintore Way Nursery School And Children'S Centre | Local Authority Nursery School | Outstanding | 0.59 KM |
Images
Nearby Streets
| Name | Average Price | Average Sqft | Distance |
|---|---|---|---|
| Grange Road | £ 0 | 0 | 0.00 KM |
| Swan Mead | £ 0 | 0 | 0.00 KM |
| Bermondsey Street | £ 0 | 0 | 0.00 KM |
| Long Walk | £ 618,750 | 0 | 0.00 KM |
| Leather Place | £ 0 | 0 | 0.00 KM |
Nearby Transport
| Name | NLC | TLC | Distance |
|---|---|---|---|
| London Bridge | 5148 | LBG | 1.17 KM |
| Fenchurch Street | 7490 | FST | 1.80 KM |
| Elephant And Castle | 5246 | EPH | 1.94 KM |
| Cannon Street | 5142 | CST | 2.01 KM |
| Liverpool Street | 6965 | LST | 2.48 KM |
Nearby Listings
| Address | Price | Type | Score | Distance |
|---|---|---|---|---|
| Alwen Court London SE1 | £ 950,000 | BUY | 7 / 10 | 0.00 KM |
| Alwen Court, Pages Walk, Bermondsey, London, SE1 | £ 560,000 | BUY | Unknown | 0.00 KM |
| Pages Walk, London | £ 545,000 | BUY | 6 / 10 | 0.01 KM |
| Alwen Court, Pages Walk, SE1 | £ 565,000 | BUY | 7 / 10 | 0.01 KM |
| Pages Walk, Bermondsey | £ 785,000 | BUY | 6 / 10 | 0.05 KM |
Nearby Properties
| Address | Price | Distance |
|---|---|---|
| 10 Grange Road | £ 395,000 | 0.09 KM |
| 82a Tower Bridge Road | £ 494,000 | 0.12 KM |
| 82 - 84 Tower Bridge Road | £ 125,000 | 0.12 KM |
| 206 Grange Road | £ 330,000 | 0.15 KM |
| 4 Bermondsey Square | £ 1,825,000 | 0.16 KM |