Goudhurst Road, Marden, Tonbridge, Kent, TN12
By Savills
£ 475,000
Reviews
3 out of 5 stars
Savills says ..
Build Plot - Land with planning permission for a contemporary home
Property Oracle says ..
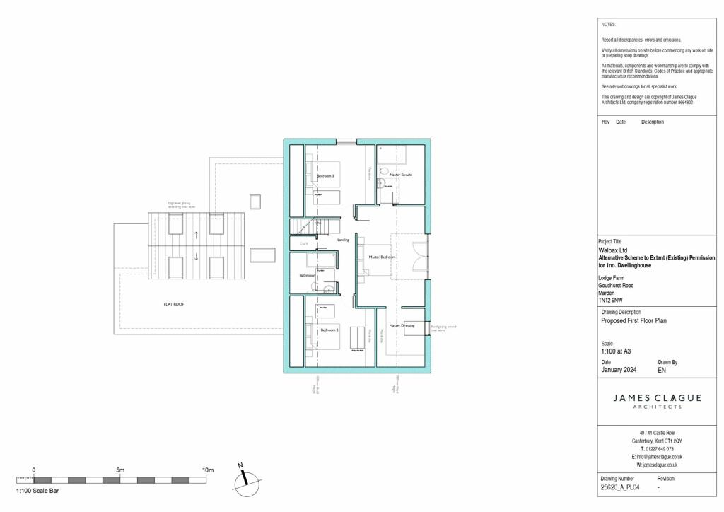
This property listing presents a unique opportunity to purchase a new build, four-bedroom detached house in the desirable village of Marden, Kent. Situated on Goudhurst Road, the location provides a balance of rural peace and convenient access to local amenities, including the nearby Marden Primary Academy and the mainline railway station at Marden (Kent). The house is designed with a modern, contemporary aesthetic, as evidenced by the architectural plans and artist’s renderings. The plans showcase a spacious layout including three bathrooms, a sizable kitchen/diner, and what appears to be a large garden. The property includes additional land beyond the garden, though the exact size is unspecified. While the images are artist’s impressions and not photographs of a completed structure, they clearly portray a high quality and well-designed home. The absence of square footage details in the listing prevents a definitive assessment of the price per square foot in relation to local averages. However, considering the location, design, and inclusion of additional land, the listed price of £475,000 seems reasonably aligned with comparable properties within the area, particularly considering the fact this is a plot with planning permission. Potential buyers should confirm the precise plot size and square footage of the finished home with the selling agent (Savills) before proceeding.
Therefore, we give this property 7 / 10. *Disclaimer: This is our option and does constitute a recommendation or financial advice. Do your own research. *
- Price
- 7
- Condition
- 8
- Location
- 7
- Land
- 6
- Bedrooms
- 4
- Bathrooms
- 3
The heatmap indicates the level of crime in the area. The color of the heatmap indicates the crime severity and recency.
Metrics Year-on-Year
- Average area value
- 465,167.00 £Decreased by 23.15 %
- Average area rental value
- 1,248.00 £/moDecreased by 11.36 %
- Est rental Yield
- 3.22 %Increased by 15.41 %
- Crime Rate
- 0.00 %
Agent Activity
Savills created the listing.
Nearby Schools
| Name | Type | Ofsted | Distance |
|---|---|---|---|
| Marden Primary Academy | Academy Converter | 0.62 KM | |
| Bethany School | Other Independent School | 3.53 KM | |
| St Margaret'S, Collier Street Church Of England Voluntary Controlled School | Voluntary Controlled School | Good | 4.15 KM |
| Colliers Green Church Of England Primary School | Voluntary Aided School | Good | 5.92 KM |
| Hunton Church Of England Primary School | Voluntary Aided School | Good | 6.27 KM |
Images
Nearby Streets
| Name | Average Price | Average Sqft | Distance |
|---|---|---|---|
| Gravel Pit Lane | £ 85,000 | 0 | 0.00 KM |
| Church Green | £ 995,000 | 0 | 0.00 KM |
| The Wickets | £ 0 | 0 | 0.00 KM |
| South Road | £ 0 | 0 | 0.00 KM |
Nearby Transport
| Name | NLC | TLC | Distance |
|---|---|---|---|
| Marden (Kent) | 5223 | MRN | 1.11 KM |
| Staplehurst | 5228 | SPU | 7.11 KM |
| East Farleigh | 5234 | EFL | 9.72 KM |
Nearby Listings
| Address | Price | Type | Score | Distance |
|---|---|---|---|---|
| Goudhurst Road, Marden, Tonbridge, Kent, TN12 | £ 475,000 | BUY | 7 / 10 | 0.00 KM |
| Goudhurst Road, Marden | £ 425,000 | BUY | 6 / 10 | 0.12 KM |
| Goudhurst Road, Marden | £ 395,000 | BUY | 5 / 10 | 0.12 KM |
| Goudhurst Road, Marden | £ 375,000 | BUY | 7 / 10 | 0.26 KM |
| Challenger Way, Marden, Marden, Kent | £ 520,000 | BUY | 7 / 10 | 0.30 KM |
Nearby Properties
| Address | Price | Distance |
|---|---|---|
| Oast Cottage | £ 742,500 | 0.11 KM |
| The Lodge | £ 495,000 | 0.11 KM |
| Spring Grove | £ 14,000 | 0.11 KM |
| Moleside | £ 137,500 | 0.11 KM |
| Branns Farmhouse | £ 725,000 | 0.19 KM |