Miles & Barr says ..
SPACIOUS SIX BEDROOM FAMILY HOME WITHIN YARDS OF THE SEAFRONT! Miles & Barr are extremely pleased to be offering this spacious six bedroom semi-detached period home located in the ever popular Cliffe Avenue, Westbrook. Ideally situated with the golden sandy Westbrook Bay...
Property Oracle says ..
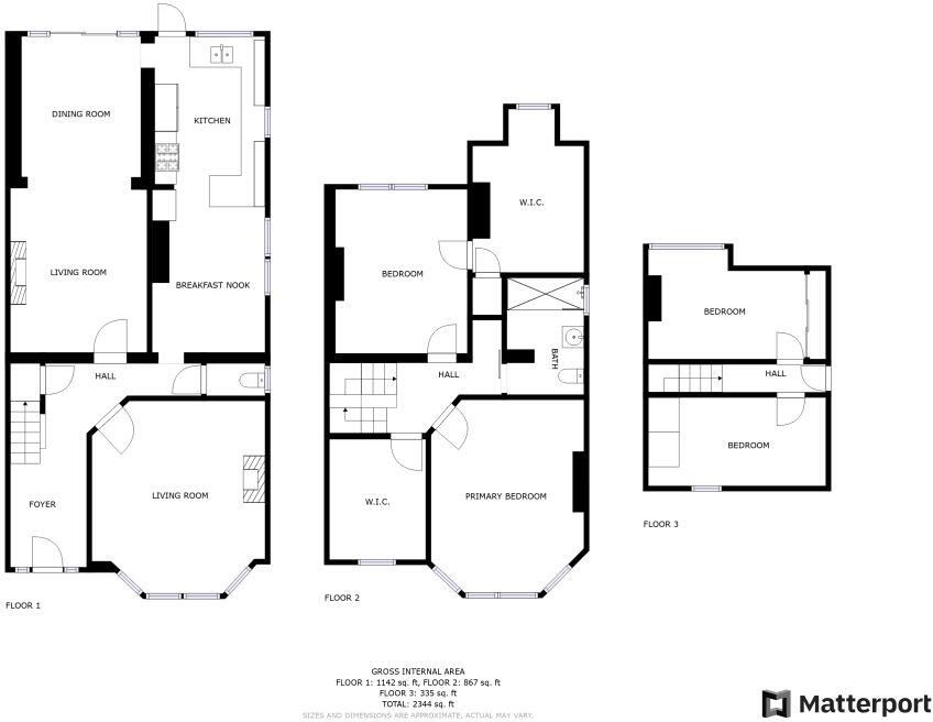
This property is a 6-bedroom, 1-bathroom semi-detached house located on Cliffe Avenue in Westbrook, Margate. The house is situated in a desirable location close to the beach and has good transport links to Margate and other towns. The property benefits from a good-sized garden. While the property has had some modernisation (modern kitchen), some areas appear dated and could benefit from further modernisation. The list price of £500,000 seems high compared to the average price in the area, but comparable properties in the area are more expensive. This could be due to the number of bedrooms and the location of the property. Overall, the property presents a good opportunity for a family looking for a large house in a desirable location, but potential buyers should be prepared for some modernisation work.
Therefore, we give this property 7 / 10. *Disclaimer: This is our option and does constitute a recommendation or financial advice. Do your own research. *
- Price
- 6
- Condition
- 7
- Location
- 9
- Land
- 7
- Bedrooms
- 6
- Bathrooms
- 1
- Sqft (est)
- 2,344.00
The heatmap indicates the level of crime in the area. The color of the heatmap indicates the crime severity and recency.
Metrics Year-on-Year
- Average area value
- 357,707.00 £Decreased by 10.10 %
- Est sale value
- 1,066,520.00 £Increased by 2.71 %
- Average area rental value
- 1,362.00 £/moIncreased by 5.75 %
- Est letting value
- 2,344.00 £/moUnchanged by 0.00 %
- Est rental Yield
- 4.57 %Increased by 17.78 %
- Crime Rate
- 7.00 %Unchanged by 0.00 %
Agent Activity
Miles & Barr created the listing.
Nearby Schools
| Name | Type | Ofsted | Distance |
|---|---|---|---|
| Garlinge Primary School And Nursery | Foundation School | Good | 0.67 KM |
| Cherry Tree | Other Independent Special School | Good | 0.75 KM |
| Garlinge Children'S Centre | Children's Centre | 0.76 KM | |
| Hartsdown Academy | Academy Converter | Requires improvement | 1.19 KM |
| Chartfield School | Other Independent School | Good | 2.25 KM |
Images
Nearby Streets
| Name | Average Price | Average Sqft | Distance |
|---|---|---|---|
| Pembroke Avenue | £ 450,000 | 0 | 0.00 KM |
| Waverley Road | £ 0 | 0 | 0.00 KM |
| Meadow Road | £ 775,000 | 0 | 0.00 KM |
| Bridge Road | £ 0 | 0 | 0.00 KM |
| Brook Close | £ 265,000 | 0 | 0.00 KM |
Nearby Transport
| Name | NLC | TLC | Distance |
|---|---|---|---|
| Margate | 5018 | MAR | 1.40 KM |
| Westgate-On-Sea | 5195 | WGA | 2.35 KM |
| Birchington-On-Sea | 5163 | BCH | 6.46 KM |
| Ramsgate | 5023 | RAM | 7.08 KM |
| Minster | 5019 | MSR | 7.68 KM |
Nearby Listings
| Address | Price | Type | Score | Distance |
|---|---|---|---|---|
| Cliffe Avenue, Margate, CT9 | £ 500,000 | BUY | 7 / 10 | 0.00 KM |
| Cliffe Avenue, Westbrook, Margate, Kent | £ 135,000 | BUY | 4 / 10 | 0.07 KM |
| Cliffe Avenue, Westbrook | £ 570,000 | BUY | Unknown | 0.07 KM |
| Westcliff Gardens,, Margate, CT9 | £ 699,995 | BUY | 8 / 10 | 0.09 KM |
| Westbrook Avenue, Margate | £ 475,000 | BUY | 6 / 10 | 0.14 KM |
Nearby Properties
| Address | Price | Distance |
|---|---|---|
| 22 Westcliff Gardens | £ 600,000 | 0.06 KM |
| Oakley | £ 225,000 | 0.06 KM |
| 20 Westcliff Gardens | £ 331,000 | 0.07 KM |
| 21 Westcliff Gardens | £ 228,000 | 0.07 KM |
| 25 Westcliff Gardens | £ 249,995 | 0.07 KM |