Acorn says ..
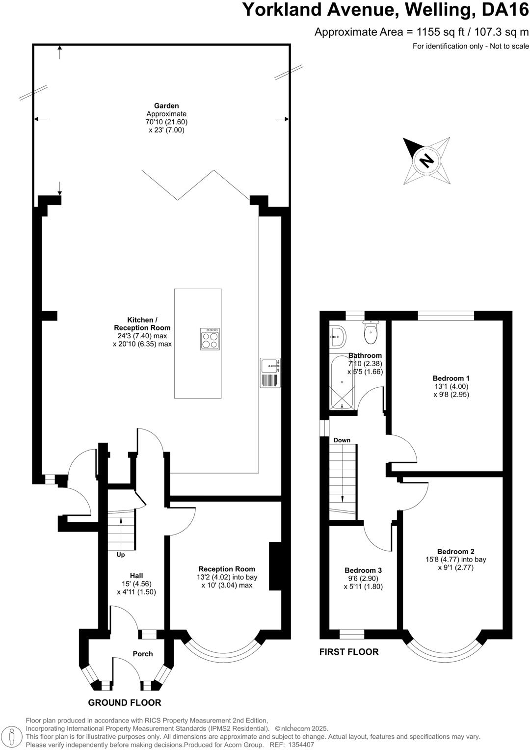
Acorn are delighted to welcome to the market this beautifully extended three bedroom end of terrace family home, located in a popular road in South Welling. Internally the property has been extended and refurbished to a high standard offering a stunning 24ft by 20ft kitchen/dining/ente...
Property Oracle says ..
This end-of-terrace property on Yorkland Avenue, Welling, offers a blend of modern interior finishes and convenient location. The renovated kitchen and bathroom are attractive features, while the proximity to schools and transportation enhances its appeal for families and commuters. While the exterior and garden require some attention, the property presents a solid opportunity in the Bexley market.
Therefore, we give this property 6 / 10. *Disclaimer: This is our option and does constitute a recommendation or financial advice. Do your own research. *
- Price
- 6
- Condition
- 7
- Location
- 7
- Land
- 6
- Bedrooms
- 3
- Bathrooms
- 1
- Sqft (est)
- 1,154.33
The heatmap indicates the level of crime in the area. The color of the heatmap indicates the crime severity and recency.
Metrics Year-on-Year
- Average area value
- 396,111.00 £Decreased by 12.15 %
- Est sale value
- 459,423.34 £Decreased by 3.86 %
- Average area rental value
- 1,783.00 £/moDecreased by 6.60 %
- Est letting value
- 1,154.33 £/moUnchanged by 0.00 %
- Est rental Yield
- 5.40 %Increased by 6.30 %
- Crime Rate
- 4.00 %Unchanged by 0.00 %
Agent Activity
Acorn created the listing.
Nearby Schools
| Name | Type | Ofsted | Distance |
|---|---|---|---|
| Falconwood & Welling Children'S Centre | Children's Centre Linked Site | 0.61 KM | |
| Hook Lane Primary School | Academy Converter | 0.71 KM | |
| Danson Primary School | Community School | Good | 0.89 KM |
| Bexley Grammar School | Academy Converter | 0.94 KM | |
| Days Lane Primary School | Academy Converter | Good | 1.06 KM |
Images
Nearby Streets
| Name | Average Price | Average Sqft | Distance |
|---|---|---|---|
| Kent Avenue | £ 508,332 | 0 | 0.00 KM |
| Newton Road | £ 660,000 | 0 | 0.00 KM |
| Hawthorn Terrace | £ 0 | 0 | 0.00 KM |
| Lime Tree terrace | £ 0 | 0 | 0.00 KM |
| Maple Crescent | £ 0 | 0 | 0.00 KM |
Nearby Transport
| Name | NLC | TLC | Distance |
|---|---|---|---|
| Welling | 5128 | WLI | 0.94 KM |
| Falconwood | 5137 | FCN | 2.14 KM |
| Sidcup | 5125 | SID | 2.63 KM |
| New Eltham | 5119 | NEH | 3.74 KM |
| Albany Park | 5132 | AYP | 3.84 KM |
Nearby Listings
| Address | Price | Type | Score | Distance |
|---|---|---|---|---|
| Yorkland Avenue, Welling | £ 525,000 | BUY | 6 / 10 | 0.00 KM |
| Yorkland Avenue, Welling | £ 465,000 | BUY | 6 / 10 | 0.06 KM |
| Yorkland Avenue, Welling, Kent, DA16 | £ 400,000 | BUY | Unknown | 0.06 KM |
| Yorkland Avenue, Welling, Kent, DA16 | £ 450,000 | BUY | 7 / 10 | 0.06 KM |
| Yorkland Avenue, Welling | £ 550,000 | BUY | Unknown | 0.06 KM |
Nearby Properties
| Address | Price | Distance |
|---|---|---|
| 145 Yorkland Avenue | £ 174,000 | 0.05 KM |
| 149 Yorkland Avenue | £ 200,000 | 0.05 KM |
| 159 Yorkland Avenue | £ 287,000 | 0.05 KM |
| 171 Yorkland Avenue | £ 350,000 | 0.05 KM |
| 101 Yorkland Avenue | £ 335,000 | 0.05 KM |